Löggiltir fasteignasalar innan Félags fasteignasala:
Sigurður Maack Gunnarsson
Svanþór Einarsson
Theodór Emil Karlsson
Steingrímur Benediktsson
Vista
fjölbýlishús

Hulduhlíð 28

270 Mosfellsbær

77.900.000 kr.

837.634 þ.kr./m2
Fasteignanúmer

F2238224

Fasteignamat

75.800.000 kr.

Brunabótamat

47.250.000 kr.

Áhvílandi

0 kr.

Arion banki – Reikna lán
Upplýsingar
Verðsaga
svg
Byggt 1998
svg
93 m²
svg
4 herb.
svg
1 baðherb.
svg
3 svefnh.
svg
Þvottahús
svg
Sérinngangur

Lýsing

** Hafðu samband og bókaðu tíma fyrir skoðun - Svanþór Einarsson, löggiltur fasteignasali - svanthor@fastmos.is eða 698-8555 - Theodór Emil Karlsson, löggiltur fasteignasali - teddi@fastmos.is eða 690-8040 - Steingrímur Benediktsson, löggiltur fasteignasali - steingrimur@fastmos.is eða 862-9416 ** 

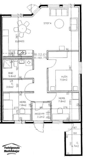
Fasteignasala Mosfellsbæjar kynnir: Vel skipulögð 93,0 m2, 4ra herbergja, íbúð á 2. hæð með sérinngang af opnum stigapalli við Hulduhlíð 28 í Mosfellsbæ. Íbúðin skiptist í þrjú svefnherbergi, forstofu, baðherbergi/þvottahús, eldhús og stofu. Við hlið inngangs í íbúðina er geymsla. Tvö bílastæði merkt íbúðinni á bílastæði fyrir framan húsið. Eignin er skráð 93,0 m2, þar af íbúð 88,8 m2 og geymsla 4,2 m2. Frábær staðsetning í Mosfellsbæ, rétt við skóla, leikskóla, sundlaug og golfvöll. Stutt í verslun og alla helstu þjónustu.

Smelltu hér til að fá söluyfirlit sent strax.


Nánari lýsing:
Forstofa er með flísum á gólfi.

Stofa er með parketi á gólfi. Úr stofu er gengið út svalir í suðurátt
Eldhús er með flísum á gólfi og viðarinnréttingu með helluborði og ofni. Gert er ráð fyrir uppþvottavél og ísskáp í innréttingu. 
Svefnherbergi nr. 1 (hjónaherbergi) er með fataskápum og dúk á gólfi.
Svefnherbergi nr. 2 er með dúk á gólfi.
Svefnherbergi nr. 3 er með fataskáp og parketi á gólfi.
Baðherbergi/Þvottahús er með dúk á gólfi. Á baði er baðkar með sturtu aðstöðu, salerni og innréttingu.Tengi er fyrir þvottavél og þurrkara.
Af gangi er aðgengi upp á stórt háaloft sem er yfir íbúðinni sem er í dag notað sem geymsluloft.
Sérgeymsla er við hlið inngangs í íbúðina. Er skráð 4,2 m2

Verð kr. 77.900.000,-



Um skoðunar- og aðgæsluskyldu:
Í lögum um fasteignakaup nr. 40/2002 er kveðið á um ríka skoðunarskyldu kaupenda á fasteignum. Fasteignasala Mosfellsbæjar skorar því á væntanlega kaupendur að kynna sér vel ástand fasteigna fyrir kauptilboðsgerð og leita til þar til bærra sérfræðinga um nánari skoðun ef með þarf.

Forsendur söluyfirlits:
Söluyfirlit er samið af fasteignasala í samræmi við ákvæði laga nr. 70/2015. Þær upplýsingar sem fram koma í söluyfirliti þessu eru sóttar í opinberar skrár, til seljanda sjálfs og eftir atvikum til húsfélags. Seljandi veitir upplýsingar um eign í samræmi við upplýsingaskyldu laga um fasteignakaup nr. 40/2002. Fasteignasali sannreynir að þær upplýsingar séu réttar með sjónskoðun á eigninni.
Fasteignasali getur ekki fullyrt um ástand og eiginleika þeirra hluta fasteigna sem ekki eru aðgengilegir og sjást ekki berum augum, t.d. lagnir, dren, skólp og þak.

Gjöld sem kaupandi þarf að greiða vegna kaupa:
1. Stimpilgjald af kaupsamningi sem er hlutfall af fasteignamati. Stimpilgjald er 0,8% fyrir einstaklinga (0,4% við fyrstu kaup) og 1,6% fyrir lögaðila.
2. Þinglýsingargjald af kaupsamningi, veðskuldabréfum, veðleyfum o.fl. Þinglýsingargjald er kr. 2.700,- fyrir hvert skjal.
3. Lántökugjald lánastofnunar - er skv. gjaldskrá viðkomandi lánastofnunar.
4. Umsýslugjald til fasteignasölu skv. kauptilboði.
5. Þegar um nýbyggingu er að ræða greiðir kaupandi skipulagsgjald, 0,3% af endanlegu brunabótamáti, þegar það er lagt á af viðkomandi sveitarfélagi.

img
Svanþór Einarsson
Lögg.fasteignasali innan félags fasteignasala
Fasteignasala Mosfellsbæjar
Þverholti 2, 270 Mosfellsbæ
Fasteignasala Mosfellsbæjar

Fasteignasala Mosfellsbæjar

Þverholti 2, 270 Mosfellsbæ
phone
img

Svanþór Einarsson

Þverholti 2, 270 Mosfellsbæ
Ár
Fasteignamat
Kaupverð
Stærð
Fermetraverð
17. apr. 2019
40.800.000 kr.
42.000.000 kr.
93 m²
451.613 kr.
26. jan. 2016
26.600.000 kr.
29.900.000 kr.
93 m²
321.505 kr.
7. mar. 2014
23.100.000 kr.
26.500.000 kr.
93 m²
284.946 kr.
Byggt á upplýsingum úr Þjóðskrá Íslands frá 2006-2026
Fasteignasala Mosfellsbæjar

Fasteignasala Mosfellsbæjar

Þverholti 2, 270 Mosfellsbæ
phone

Svanþór Einarsson

Þverholti 2, 270 Mosfellsbæ