Löggiltir fasteignasalar innan Félags fasteignasala:
Sverrir Kristinsson
Kjartan Hallgeirsson
Guðlaugur Ingi Guðlaugsson
Daði Hafþórsson
Gunnar Helgi Einarsson
Gunnar Bergmann Jónsson
Lilja Guðmundsdóttir
Jenný Sandra Gunnarsdóttir
Kári Sighvatsson
Vista
svg

57

svg

53  Skoðendur

svg

Skráð  4. jan. 2026

fjölbýlishús

Baughamar 1- íbúð 501

221 Hafnarfjörður

88.900.000 kr.

805.254 þ.kr./m2
Fasteignanúmer

F2534630

Fasteignamat

304.150.000 kr.

Brunabótamat

0 kr.

Áhvílandi

0 kr.

Arion banki – Reikna lán
Upplýsingar
svg
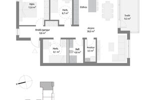
110,4 m²
svg
4 herb.
svg
1 baðherb.
svg
3 svefnh.
svg
Sameiginl. inngangur
svg
Bílastæði
svg
Lyfta

Lýsing

Eignamiðlun kynnir:

Eignamiðlun kynnir nýjar eignir við Baughamar 1 í glæsilegu fjölbýlishúsi í Svansvottuðu ferli í Hamranesi í Hafnarfirði. Í húsunum eru 33 íbúðir, allt frá tveggja til fjögurra herbergja íbúða. Íbúðirnar eru bjartar og nútímalegar með hagnýtu skipulagi. Glæsilegt hverfi í nágrenni við stórkostlega náttúru, Hvaleyrarvatn, Helgafell, Kleifarvatn o.fl. Íbúðirnar verða til afhendingar í febrúar/mars 2025.

NÁNARI UPPLÝSINGAR GEFUR: Rögnvaldur Örn Jónsson, Löggiltur fasteignasali  í síma 6603452 eða rognvaldur@eignamidlun.is

**Sækja söluyfirlit**

Heimasíða verkefnisins


Baughamar 1- íbúð 501 , íbúð 01-01 er 110.4 fm 5 herb.íbúð í nýju glæsilegu lyftuhúsi á mjög góðum stað í Hafnarfirði. Stæði í bílageymslu merkt B2-04 fylgir íbúðinni.
Opinber skráning eignarinnar: Birt flatarmál er 110.4 fm, með geymslu í sameign.

Bókið skoðun hjá sölumönnum Eignamiðlunar.
Magnús Þórir Matthíasson í síma 895-1427 eða magnus@eignamidlun.is
Lilja Guðmundsdóttir í síma 649-3868 eða lilja@eignamidlun.is
Kári Sighvatsson í síma 899-8815 eða kari@eignamidlun.is
Rögnvaldur Örn Jónsson í síma 660-3452 eða rognvaldur@eignamidlun.is
Oddný María Kristinsdóttir í síma 777-3711 eða oddny@eignamidlun.is

Nánari lýsing:
Íbúðirnar afhendast fullbúnar án gólfefna. Votrými eru flísalögð. Lögð er áhersla á vandaðar íbúðir með góða hljóðvist og góðum loftgæðum. Eldhúsinnréttingar eru frá þýska framleiðandanum Nobilia, umboðsaðili er GKS. Eldhús er fullbúið tækjum eins og helluborði, viftu, innbyggðum ísskáp, innbyggðri uppþottavél og ofni. Mikil áhersla er lögð á vandaðan frágang utanhúss. Merkt bílastæði fylgir íbúð á lóð eða í lokuðu bílastæðahúsi.

Kaupendur greiða skipulagsgjald þ.e 0,3% af endanlegu brunabótamati þegar það verður innheimt. 

***
Ábyrg þjónusta í áratugi. Eignamiðlun var stofnuð 1957 og er elsta starfandi fasteignasala á Íslandi. Reynsla, heiðarleiki og þekking á fasteignamarkaðnum eru grunnur að farsælum viðskiptum. 

Eignamiðlun Grensásvegi 11, 108 Reykjavík - Opið frá kl. 9-17 mánudaga til fimmtudaga og 9-16 á föstudögum.

Heimasíða Eignamiðlunar

Eignamiðlun á Facebook

Eignamiðlun

Eignamiðlun

Grensásvegi 11, 108 Reykjavík
Eignamiðlun

Eignamiðlun

Grensásvegi 11, 108 Reykjavík