Upplýsingar
Verðsaga
Byggt 1963
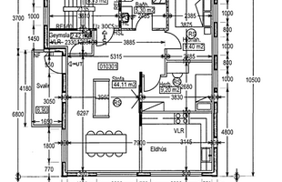
132,9 m²
3 herb.
1 baðherb.
2 svefnh.
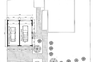
Bílskúr
Útsýni
Laus strax
Lýsing
Ragnar Guðmundsson löggiltur fasteignasali hjá TORG fasteignasölu kynnir: Mikið endurnýjuð sérhæð (efsta hæð) með bílskúr í suðurhlíðum Kópavogs við Birkihvamm 9. Eignin er skráð 132,9fm þar af 30,4fm bílskúr. Búið er að innrétta bílskúrinn sem íbúð. Hæðin sjálf telur 2 svefnherbergi, stofu og borðstofu, geymslu, eldhús, baðherbergi og yfirbyggðar svalir. Yndislegt útsýni yfir Kópavog. Allar nánari upplýsingar veitir Ragnar fasteignasali í S: 844-6516 eða ragnar@fstorg.is
***Eignin getur verið laus við kaupsamning. ***
Nánari lýsing:
Að sögn seljanda hefur eignin að miklu leyti verið endurnýjuð að innan; Gólfhiti er í allri íbúðinni nema á svölum. Gluggar voru endurnýjaðir 2023. Neysluvatns og frárennslislagnir endurnýjaðar 2024. Rafmagn og þrýstijafnari í lagnarými endurnýjað 2024/2025. Gólfefni endurnýjuð, parket á aðalrýmum og herbergjum, flísar á baði. Baðherbergi endurnýjað að öllu leyti, tengi fyrir þvottavél. Eldhús endurnýjað, innbyggð eldhústæki, ísskápur, örbylgjuofn og uppþvottavél.
Í kjallara hússins er sameiginlegt rými sem hægt er að nota sem þvottahús eða geymslu.
Bílskúr: Bílskúrinn er skráður sem bílskúr. Árið 2023 var bílskúrinn innréttaður sem íbúð.
Samantekt: Spennandi eign með mikla möguleika á þessum eftirsótta stað í Suðurhlíðunum þar sem stutt er í alla helstu þjónustu, skóla, leikskóla og íþróttastarf. Allar nánari upplýsingar veitir Ragnar fasteignasali í S: 844-6516 eða ragnar@fstorg.is
***Eignin getur verið laus við kaupsamning. ***
Nánari lýsing:
Að sögn seljanda hefur eignin að miklu leyti verið endurnýjuð að innan; Gólfhiti er í allri íbúðinni nema á svölum. Gluggar voru endurnýjaðir 2023. Neysluvatns og frárennslislagnir endurnýjaðar 2024. Rafmagn og þrýstijafnari í lagnarými endurnýjað 2024/2025. Gólfefni endurnýjuð, parket á aðalrýmum og herbergjum, flísar á baði. Baðherbergi endurnýjað að öllu leyti, tengi fyrir þvottavél. Eldhús endurnýjað, innbyggð eldhústæki, ísskápur, örbylgjuofn og uppþvottavél.
Í kjallara hússins er sameiginlegt rými sem hægt er að nota sem þvottahús eða geymslu.
Bílskúr: Bílskúrinn er skráður sem bílskúr. Árið 2023 var bílskúrinn innréttaður sem íbúð.
Samantekt: Spennandi eign með mikla möguleika á þessum eftirsótta stað í Suðurhlíðunum þar sem stutt er í alla helstu þjónustu, skóla, leikskóla og íþróttastarf. Allar nánari upplýsingar veitir Ragnar fasteignasali í S: 844-6516 eða ragnar@fstorg.is
Ár
Fasteignamat
Kaupverð
Stærð
Fermetraverð
20. jún. 2022
54.100.000 kr.
60.200.000 kr.
132.9 m²
452.972 kr.
Byggt á upplýsingum úr Þjóðskrá Íslands frá 2006-2026