Löggiltir fasteignasalar innan Félags fasteignasala:
Hannes Steindórsson
Bogi Molby Pétursson
Guðrún Antonsdóttir
Heimir Hallgrímsson
Hrafnkell P. H. Pálmason
Viðar Marinósson
Elías Haraldsson
Kristján Þórir Hauksson
Albert Bjarni Úlfarsson
Ragnar Þorsteinsson
Þórey Ólafsdóttir
Andri Freyr Halldórsson
Upplýsingar
Verðsaga
Byggt 1961
129,9 m²
4 herb.
1 baðherb.
3 svefnh.
Þvottahús
Útsýni
Sameiginl. inngangur
Laus strax
Lýsing
LIND fasteignasala og Helga Pálsdóttir löggiltur fasteignasali kynna virkilega skemmtilega, bjarta og rúmgóða 129,9 m2 hæð í fjórbýlishúsi við Borgarholtsbraut 71 á Kársnesinu í Kópavogi. Tvennar svalir, aðrar þeirra með svalalokun. Fallegt útsýni er til sjávar. Staðsetningin er frábær, stutt í leik- og grunnskóla, Sundlaug Kópavogs og alla helstu þjónustu.
Nánari lýsing
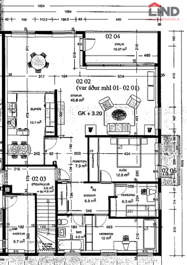
Gengið er inn á stigagang á jarðhæð. Nýtt teppi er á stigaganginum og er hann sameiginlegur með annarri íbúð.
Íbúðin er á 2. hæð og er komið inn í forstofu/hol með teppalögðu gólfi.
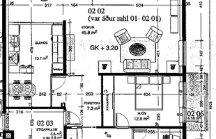
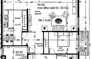
Stofa og borðstofa eru rúmgóðar og teppalagðar. Stórir gluggar eru til suðurs og vesturs sem gefa fallega birtu i rýmið. Útgengt er frá stofum út á flísalagðar, yfirbyggðar svalir til suðurs.
Eldhúsið er rúmgott með snyrtilegri eldri innréttingu með efri og neðri skápum, keramik helluborði, viftuháf og bakarofni í vinnuhæð. Gert er ráð fyrir ísskáp og uppþvottavél í innréttingu. Dúkflísar eru á gólfi.
Svefnherbergishol er teppalagt og með opnu fatahengi.
Hjónaherbergi er með linolium dúk á gólfi og eldri fataskáp með rennihurðum, útgengi út á svalir til vesturs.
Tvö barnaherbergi með linolium dúk á gólfi og fataskáp í öðru þeirra.
Baðherbergi er með flísalögðu gólfi og veggjum, sturtuklefa, innréttingum og vaski.
Sér þvottahús er á jarðhæð (á stigagangi, en er séreign) með tengi fyrir þvottavél og þurrkara. Vaskaborð er í þvottahúsinu og gólf er málað. Mögulegt er að gera breytingar á skipulagi íbúðarinnar, t.d. gera þvottahús/geymslu innan hennar. Opna frá eldhúsi inn í stofu o.s.f.v.
Allar upplýsingar um eignina veitir Helga Pálsdóttir fasteignasali í síma 822 2123 eða helga@fastlind.is
Nánari lýsing
Gengið er inn á stigagang á jarðhæð. Nýtt teppi er á stigaganginum og er hann sameiginlegur með annarri íbúð.
Íbúðin er á 2. hæð og er komið inn í forstofu/hol með teppalögðu gólfi.
Stofa og borðstofa eru rúmgóðar og teppalagðar. Stórir gluggar eru til suðurs og vesturs sem gefa fallega birtu i rýmið. Útgengt er frá stofum út á flísalagðar, yfirbyggðar svalir til suðurs.
Eldhúsið er rúmgott með snyrtilegri eldri innréttingu með efri og neðri skápum, keramik helluborði, viftuháf og bakarofni í vinnuhæð. Gert er ráð fyrir ísskáp og uppþvottavél í innréttingu. Dúkflísar eru á gólfi.
Svefnherbergishol er teppalagt og með opnu fatahengi.
Hjónaherbergi er með linolium dúk á gólfi og eldri fataskáp með rennihurðum, útgengi út á svalir til vesturs.
Tvö barnaherbergi með linolium dúk á gólfi og fataskáp í öðru þeirra.
Baðherbergi er með flísalögðu gólfi og veggjum, sturtuklefa, innréttingum og vaski.
Sér þvottahús er á jarðhæð (á stigagangi, en er séreign) með tengi fyrir þvottavél og þurrkara. Vaskaborð er í þvottahúsinu og gólf er málað. Mögulegt er að gera breytingar á skipulagi íbúðarinnar, t.d. gera þvottahús/geymslu innan hennar. Opna frá eldhúsi inn í stofu o.s.f.v.
Allar upplýsingar um eignina veitir Helga Pálsdóttir fasteignasali í síma 822 2123 eða helga@fastlind.is
Ár
Fasteignamat
Kaupverð
Stærð
Fermetraverð
15. jún. 2023
53.300.000 kr.
3.015.000 kr.
315.4 m²
9.559 kr.
Byggt á upplýsingum úr Þjóðskrá Íslands frá 2006-2026