Upplýsingar
Verðsaga
Byggt 2025
226,7 m²
5 herb.
2 baðherb.
4 svefnh.
Þvottahús
Bílskúr
Sérinngangur
Lýsing
Fasteignasalan Heimaland kynnir, Láland 21 á Selfossi.
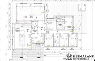
Um er að ræða 226,7fm einbýlishús í byggingu á Selfossi. Skiptist í 177,6fm íbúð og 49,1 fm bílskúr.
Húsið er timburhús, klætt að utan með litaðri álklæðningu og báru í bland. Dúkur á þaki. Gluggar og hurðar eru ál/tré.
Samkvæmt teikningu telur húsið andyrri, stórt alrými sem samanstendur af eldhúsi, borðstofu og stofu, sjónvarpshol, 4 rúmgóð svefnherbergi, fataherbergi og snyrting inn af einu svefnherberginu, baðherbergi, þvottahús og bílskúr.
Mjög vel skipulagt einbýlishús í nýju hverfi á Selfossi.
Húsið selst fullbúið að utan, lóð er þökulögð og mulningur er í bílaplani, steypt ruslatunnuskýli fylgir.
Að innan skilast húsið full einangrað, rakasperra frágengin og inntök rafmagns og hita eru greidd.
Hægt er að fá húsið afhent lengra komið eftir nánara samkomulagi.
Allar nánari upplýsingar veita:
Snorri Sigurðarson, löggiltur fasteigna og skipasali, sími 897-7027, snorri@heimaland.is
Elísa Dagmar Björgvinsdóttir, aðstoðarmaður fasteignasala í löggildingarnámi, sími 868-7938, elisa@heimaland.is
Gjöld sem kaupandi þarf að greiða vegna kaupa:
1. Stimpilgjald af kaupsamningi er 0,8% af heildarfasteignamati hjá einstaklingum. Sé um fyrstu kaup að ræða er stimpilgjald af kaupsamningi 0,4% af heildarfasteignamati.
2. Stimpilgjald af kaupsamningi - 1,6% af heildarfasteignamati hjá lögaðilum.
3. Þinglýsingargjald af kaupsamningi, afsali, veðskuldabréfi, mögulegu veðleyfi o.fl. - kr. 2.700 af hverju skjali.
4. Lántökugjald lánastofnunar - samanber gjaldskrá viðkomandi lánastofnunar.
5. Umsýslugjald kaupanda er skv. verðskrá.
Í lögum um fasteignakaup nr. 40/2002 er kveðið á um ríka skoðunarskyldu kaupenda á fasteignum. Fasteignasalan Heimaland hvetur því viðskiptavini sína og væntanlega kaupendur af fasteignum að kynna sér vel ástand fasteigna fyrir tilboðsgerð eða eftir atvikum fyrir kaupsamningsgerð. Ef þurfa þykir ættu væntanlegir kaupendur að leita til þar til bærra sérfræðinga um aðstoð við slíka skoðun.
www.heimaland.is, Austurvegur 6, 800 Selfoss, Fasteignasalan Heimaland ehf.
Um er að ræða 226,7fm einbýlishús í byggingu á Selfossi. Skiptist í 177,6fm íbúð og 49,1 fm bílskúr.
Húsið er timburhús, klætt að utan með litaðri álklæðningu og báru í bland. Dúkur á þaki. Gluggar og hurðar eru ál/tré.
Samkvæmt teikningu telur húsið andyrri, stórt alrými sem samanstendur af eldhúsi, borðstofu og stofu, sjónvarpshol, 4 rúmgóð svefnherbergi, fataherbergi og snyrting inn af einu svefnherberginu, baðherbergi, þvottahús og bílskúr.
Mjög vel skipulagt einbýlishús í nýju hverfi á Selfossi.
Húsið selst fullbúið að utan, lóð er þökulögð og mulningur er í bílaplani, steypt ruslatunnuskýli fylgir.
Að innan skilast húsið full einangrað, rakasperra frágengin og inntök rafmagns og hita eru greidd.
Hægt er að fá húsið afhent lengra komið eftir nánara samkomulagi.
Allar nánari upplýsingar veita:
Snorri Sigurðarson, löggiltur fasteigna og skipasali, sími 897-7027, snorri@heimaland.is
Elísa Dagmar Björgvinsdóttir, aðstoðarmaður fasteignasala í löggildingarnámi, sími 868-7938, elisa@heimaland.is
Gjöld sem kaupandi þarf að greiða vegna kaupa:
1. Stimpilgjald af kaupsamningi er 0,8% af heildarfasteignamati hjá einstaklingum. Sé um fyrstu kaup að ræða er stimpilgjald af kaupsamningi 0,4% af heildarfasteignamati.
2. Stimpilgjald af kaupsamningi - 1,6% af heildarfasteignamati hjá lögaðilum.
3. Þinglýsingargjald af kaupsamningi, afsali, veðskuldabréfi, mögulegu veðleyfi o.fl. - kr. 2.700 af hverju skjali.
4. Lántökugjald lánastofnunar - samanber gjaldskrá viðkomandi lánastofnunar.
5. Umsýslugjald kaupanda er skv. verðskrá.
Í lögum um fasteignakaup nr. 40/2002 er kveðið á um ríka skoðunarskyldu kaupenda á fasteignum. Fasteignasalan Heimaland hvetur því viðskiptavini sína og væntanlega kaupendur af fasteignum að kynna sér vel ástand fasteigna fyrir tilboðsgerð eða eftir atvikum fyrir kaupsamningsgerð. Ef þurfa þykir ættu væntanlegir kaupendur að leita til þar til bærra sérfræðinga um aðstoð við slíka skoðun.
www.heimaland.is, Austurvegur 6, 800 Selfoss, Fasteignasalan Heimaland ehf.
Ár
Fasteignamat
Kaupverð
Stærð
Fermetraverð
5. mar. 2025
14.400.000 kr.
77.000.000 kr.
10101 m²
7.623 kr.
Byggt á upplýsingum úr Þjóðskrá Íslands frá 2006-2026