Upplýsingar
Verðsaga
Byggt 2018
105,5 m²
4 herb.
1 baðherb.
3 svefnh.
Sérinngangur
Lýsing
Kasa fasteignir 461-2010.
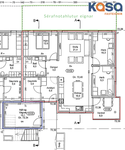
Geirþrúðarhagi 8b íbúð 102 - Björt og vel skipulögð 4 herbergja 105,5 fm neðri hæð í fjórbýli í Hagahverfi.
Eignin skiptist í forstofu, eldhús og stofu í opnu rými, þrjú svefnherbergi, baðherbergi með þvottaaðstöðu og geymslu ásamt verönd til norðurs.
Forstofa er með flísum á gólfi og tvöföldum fataskáp.
Eldhús, vönduð spónlögð eikar innrétting með góðu skápa og bekkjarplássi. Ísskápur og uppþvottavél eru innfelld í innréttingu og fylgja með við sölu eignar. Úr eldhúsi er gengið út á steypta verönd. Einnig er ný gerður timbur sólpallur bakvið hús.
Stofa og eldhús eru í opnu rými með ljósu harð parketi á gólfi. Í stofu er stór suður gluggi. Sjónvarpsskenkur fylgir með við sölu.
Svefnherbergin eru þrjú, öll með ljósu harð parketi á gólfi og spónlögðum eikar fataskápum.
Baðherbergi er flísalagt í bæði gólf og veggir og með vandaðri spónlagðri innréttingu. Upphengt salerni og sturta. Innrétting er inn á baðherbergi fyrir þvottavél og þurrkara.
Geymsla er við hliðina á forstofu, með harð parketi á gólfi og hillum.
Annað
- Nýlega er búið að gera sólpall bakvið hús.
- Gólfhiti er í allri íbúðinni
- Búið er að taka inn ljósleiðara
- Allar innréttingar og innihurðar eru úr eik.
- Harðparket er á öllum rýmum íbúðar fyrir utan forstofu og baðherbergi, þar eru flísar.
- Sameiginleg hjóla og vagna geymsla.
- Skemmtilega skipulögð og björt eign á frábærum stað.
Nánari upplýsingar í síma 461-2010 eða kasa@kasafasteignir.is
------------
Skoðunarskylda:
Í lögum um fasteignakaup nr. 40/2002 er kveðið á um ríka skoðunarskyldu kaupenda á fasteignum. Kasa fasteignir benda væntanlegum kaupendum á að kynna sér vel ástand fasteigna fyrir kauptilboðsgerð og leita til þar til bærra sérfræðinga um nánari skoðun ef þurfa þykir.
Forsendur söluyfirlits:
Söluyfirlit er samið af fasteignasala í samræmi við ákvæði laga nr. 70/2015. Þær upplýsingar sem fram koma í söluyfirliti þessu eru sóttar í opinberar skrár, til seljanda sjálfs og eftir atvikum til húsfélags. Seljandi veitir upplýsingar um eign í samræmi við upplýsingaskyldu laga um fasteignakaup nr. 40/2002. Fasteignasali sannreynir að þær upplýsingar séu réttar með sjónskoðun á eigninni. Fasteignasali getur ekki fullyrt um ástand og eiginleika þeirra hluta fasteigna sem ekki eru aðgengilegir og sjást ekki berum augum, t.d. lagnir, dren, skólp og þak.
Gjöld sem kaupandi þarf að standa straum af vegna kaupanna:
1. Stimpilgjald sýslumanns af kaupsamningi, fyrstu kaup (0,4%), almenn kaup (0,8%), lögaðilar (1,6%) af heildarfasteignamati eignar.
2. Þinglýsingargjald af kaupsamningi, veðskuldabréfi, mögulegu veðleyfi o.fl. - kr. 2.700 af hverju skjali.
3. Lántökugjald lánastofnunar er skv. verðskrá viðkomandi lánastofnunar. Nánari upplýsingar á t.d. heimasíðu lánastofnana.
4. Umsýslugjald til fasteignasölu skv. kauptilboði.
Geirþrúðarhagi 8b íbúð 102 - Björt og vel skipulögð 4 herbergja 105,5 fm neðri hæð í fjórbýli í Hagahverfi.
Eignin skiptist í forstofu, eldhús og stofu í opnu rými, þrjú svefnherbergi, baðherbergi með þvottaaðstöðu og geymslu ásamt verönd til norðurs.
Forstofa er með flísum á gólfi og tvöföldum fataskáp.
Eldhús, vönduð spónlögð eikar innrétting með góðu skápa og bekkjarplássi. Ísskápur og uppþvottavél eru innfelld í innréttingu og fylgja með við sölu eignar. Úr eldhúsi er gengið út á steypta verönd. Einnig er ný gerður timbur sólpallur bakvið hús.
Stofa og eldhús eru í opnu rými með ljósu harð parketi á gólfi. Í stofu er stór suður gluggi. Sjónvarpsskenkur fylgir með við sölu.
Svefnherbergin eru þrjú, öll með ljósu harð parketi á gólfi og spónlögðum eikar fataskápum.
Baðherbergi er flísalagt í bæði gólf og veggir og með vandaðri spónlagðri innréttingu. Upphengt salerni og sturta. Innrétting er inn á baðherbergi fyrir þvottavél og þurrkara.
Geymsla er við hliðina á forstofu, með harð parketi á gólfi og hillum.
Annað
- Nýlega er búið að gera sólpall bakvið hús.
- Gólfhiti er í allri íbúðinni
- Búið er að taka inn ljósleiðara
- Allar innréttingar og innihurðar eru úr eik.
- Harðparket er á öllum rýmum íbúðar fyrir utan forstofu og baðherbergi, þar eru flísar.
- Sameiginleg hjóla og vagna geymsla.
- Skemmtilega skipulögð og björt eign á frábærum stað.
Nánari upplýsingar í síma 461-2010 eða kasa@kasafasteignir.is
------------
Skoðunarskylda:
Í lögum um fasteignakaup nr. 40/2002 er kveðið á um ríka skoðunarskyldu kaupenda á fasteignum. Kasa fasteignir benda væntanlegum kaupendum á að kynna sér vel ástand fasteigna fyrir kauptilboðsgerð og leita til þar til bærra sérfræðinga um nánari skoðun ef þurfa þykir.
Forsendur söluyfirlits:
Söluyfirlit er samið af fasteignasala í samræmi við ákvæði laga nr. 70/2015. Þær upplýsingar sem fram koma í söluyfirliti þessu eru sóttar í opinberar skrár, til seljanda sjálfs og eftir atvikum til húsfélags. Seljandi veitir upplýsingar um eign í samræmi við upplýsingaskyldu laga um fasteignakaup nr. 40/2002. Fasteignasali sannreynir að þær upplýsingar séu réttar með sjónskoðun á eigninni. Fasteignasali getur ekki fullyrt um ástand og eiginleika þeirra hluta fasteigna sem ekki eru aðgengilegir og sjást ekki berum augum, t.d. lagnir, dren, skólp og þak.
Gjöld sem kaupandi þarf að standa straum af vegna kaupanna:
1. Stimpilgjald sýslumanns af kaupsamningi, fyrstu kaup (0,4%), almenn kaup (0,8%), lögaðilar (1,6%) af heildarfasteignamati eignar.
2. Þinglýsingargjald af kaupsamningi, veðskuldabréfi, mögulegu veðleyfi o.fl. - kr. 2.700 af hverju skjali.
3. Lántökugjald lánastofnunar er skv. verðskrá viðkomandi lánastofnunar. Nánari upplýsingar á t.d. heimasíðu lánastofnana.
4. Umsýslugjald til fasteignasölu skv. kauptilboði.
Ár
Fasteignamat
Kaupverð
Stærð
Fermetraverð
16. júl. 2024
57.850.000 kr.
68.000.000 kr.
20102 m²
3.383 kr.
15. okt. 2021
43.000.000 kr.
48.900.000 kr.
105.5 m²
463.507 kr.
15. maí. 2018
33.200.000 kr.
40.500.000 kr.
105.5 m²
383.886 kr.
18. ágú. 2017
2.550.000 kr.
113.700.000 kr.
316.5 m²
359.242 kr.
Byggt á upplýsingum úr Þjóðskrá Íslands frá 2006-2026