Löggiltir fasteignasalar innan Félags fasteignasala:
Hannes Steindórsson
Bogi Molby Pétursson
Guðrún Antonsdóttir
Heimir Hallgrímsson
Hrafnkell P. H. Pálmason
Viðar Marinósson
Elías Haraldsson
Kristján Þórir Hauksson
Albert Bjarni Úlfarsson
Ragnar Þorsteinsson
Þórey Ólafsdóttir
Andri Freyr Halldórsson
Upplýsingar
Verðsaga
Byggt 1932
108,7 m²
4 herb.
1 baðherb.
2 svefnh.
Þvottahús
Sameiginl. inngangur
Lýsing
LIND fasteignasala og Guðmundur Hallgrímsson lgfs kynna: Njálsgötu 35
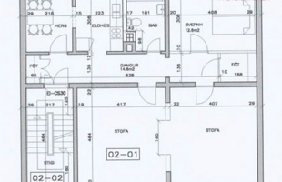
Falleg og björt íbúð á 2. hæð í steinsteyptu húsi á eftirsóttum stað í miðbæ Reykjavíkur.
Íbúðin hefur verið mikið endurnýjuð, m.a. gólfefni, baðherbergi og eldhús.
Eignin státar af mikilli lofthæð, um 2,90 m, sem gefur rýminu opið og létt yfirbragð.
Nánari lýsing:
· Gangur/forstofa: Með skápum.
· Stofa: Parket á gólfi og stórir gluggar.
· Borðstofa: Parket á gólfi og stórir gluggar.
· Hjónaherbergi: Parket á gólfi, stórir gluggar og fataskápur.
· Svefnherbergi II: Teppalagt gólf.
· Eldhús: Rúmgott með snyrtilegri, dökkri innréttingu og stórum glugga.
· Baðherbergi: Bjart, flísalagt að hluta með terrazzo gólfi, baðkari með sturtuaðstöðu og nýlegum blöndunartækjum.
· Á gangi er lítil geymsla / fataherbergi.
Í sameign:
· Sérgeymsla.
· Sameiginlegt þvottahús.
· Þurrkherbergi.
· Lóð með afgirtum sameiginlegum palli.
Helstu endurbætur og viðhald síðustu ára:
· 2012: Skipt um neyslulagnir í eldhúsi og baðherbergi. Baðherbergi gert upp (nýtt WC, blöndunartæki og vaskur frá Parka). Eldhús endurnýjað. Nýtt parket lagt á gang, stofur og eldhús.
· 2021: Ný blöndunartæki sett í eldhús.
· 2022: Nýtt teppi lagt á barnaherbergi. Parket í stofum, eldhúsi og gangi pússað upp. Nýtt kókosteppi í forstofu. Íbúðin öll máluð.
· 2023: Ný blöndunartæki sett í baðkar/sturtu. Innréttingar á baðherbergi lakkaðar. Gluggar lakkaðir að innan. Hurðakarmar lakkaðir og blettaðir eftir þörfum.
Endurbætur hússins að utan:
· 2021: Skipt um járn og pappa á þaki. Húsið sprunguviðgert, endursteinað og málað að utan.
· 2022: Útidyrahurð pússuð upp og lökkuð.
· Gluggar málaðir reglulega að utan (síðast 2022 fyrir þessa íbúð).
Samkvæmt HMS er eignin skráð 108,7 fm, þar af 101,1 fm íbúð og 7,6 fm sérgeymsla í sameign.
Glæsileg og björt íbúð með mikilli lofthæð á eftirsóttum stað í hjarta Reykjavíkur.
Allar frekari upplýsingar um eignina veitir
Guðmundur Hallgrímsson Löggiltur fasteignasali í síma 898-5115 / Gudmundur@fastlind.is
-Vegna mikillar eftirspurnar vantar allar tegundir eigna á skrá.
-Hafðu samband og við verðmetum eignina þína þér að kostnaðarlausu.
Gjöld sem kaupandi þarf að standa straum af vegna kaupanna:
1. Stimpilgjald af kaupsamningi - 0,4% (fyrstu kaup), 0,8%(einstaklingar) 1.6% (lögaðilar) af heildarfasteignamati.
2. Lántökugjald af veðskuldabréfi mishátt milli lánastofnuna. Nánari upplýsingar á t.d. heimasíðu lánastofnana.
3. Þinglýsingargjald af kaupsamningi, veðskuldabréfi, mögulegu veðleyfi o.fl. - kr. 3.800 af hverju skjali.
4. Umsýslugjald til fasteignasölu 74.900,
Falleg og björt íbúð á 2. hæð í steinsteyptu húsi á eftirsóttum stað í miðbæ Reykjavíkur.
Íbúðin hefur verið mikið endurnýjuð, m.a. gólfefni, baðherbergi og eldhús.
Eignin státar af mikilli lofthæð, um 2,90 m, sem gefur rýminu opið og létt yfirbragð.
Nánari lýsing:
· Gangur/forstofa: Með skápum.
· Stofa: Parket á gólfi og stórir gluggar.
· Borðstofa: Parket á gólfi og stórir gluggar.
· Hjónaherbergi: Parket á gólfi, stórir gluggar og fataskápur.
· Svefnherbergi II: Teppalagt gólf.
· Eldhús: Rúmgott með snyrtilegri, dökkri innréttingu og stórum glugga.
· Baðherbergi: Bjart, flísalagt að hluta með terrazzo gólfi, baðkari með sturtuaðstöðu og nýlegum blöndunartækjum.
· Á gangi er lítil geymsla / fataherbergi.
Í sameign:
· Sérgeymsla.
· Sameiginlegt þvottahús.
· Þurrkherbergi.
· Lóð með afgirtum sameiginlegum palli.
Helstu endurbætur og viðhald síðustu ára:
· 2012: Skipt um neyslulagnir í eldhúsi og baðherbergi. Baðherbergi gert upp (nýtt WC, blöndunartæki og vaskur frá Parka). Eldhús endurnýjað. Nýtt parket lagt á gang, stofur og eldhús.
· 2021: Ný blöndunartæki sett í eldhús.
· 2022: Nýtt teppi lagt á barnaherbergi. Parket í stofum, eldhúsi og gangi pússað upp. Nýtt kókosteppi í forstofu. Íbúðin öll máluð.
· 2023: Ný blöndunartæki sett í baðkar/sturtu. Innréttingar á baðherbergi lakkaðar. Gluggar lakkaðir að innan. Hurðakarmar lakkaðir og blettaðir eftir þörfum.
Endurbætur hússins að utan:
· 2021: Skipt um járn og pappa á þaki. Húsið sprunguviðgert, endursteinað og málað að utan.
· 2022: Útidyrahurð pússuð upp og lökkuð.
· Gluggar málaðir reglulega að utan (síðast 2022 fyrir þessa íbúð).
Samkvæmt HMS er eignin skráð 108,7 fm, þar af 101,1 fm íbúð og 7,6 fm sérgeymsla í sameign.
Glæsileg og björt íbúð með mikilli lofthæð á eftirsóttum stað í hjarta Reykjavíkur.
Allar frekari upplýsingar um eignina veitir
Guðmundur Hallgrímsson Löggiltur fasteignasali í síma 898-5115 / Gudmundur@fastlind.is
-Vegna mikillar eftirspurnar vantar allar tegundir eigna á skrá.
-Hafðu samband og við verðmetum eignina þína þér að kostnaðarlausu.
Gjöld sem kaupandi þarf að standa straum af vegna kaupanna:
1. Stimpilgjald af kaupsamningi - 0,4% (fyrstu kaup), 0,8%(einstaklingar) 1.6% (lögaðilar) af heildarfasteignamati.
2. Lántökugjald af veðskuldabréfi mishátt milli lánastofnuna. Nánari upplýsingar á t.d. heimasíðu lánastofnana.
3. Þinglýsingargjald af kaupsamningi, veðskuldabréfi, mögulegu veðleyfi o.fl. - kr. 3.800 af hverju skjali.
4. Umsýslugjald til fasteignasölu 74.900,
Ár
Fasteignamat
Kaupverð
Stærð
Fermetraverð
5. okt. 2007
21.730.000 kr.
29.900.000 kr.
108.7 m²
275.069 kr.
Byggt á upplýsingum úr Þjóðskrá Íslands frá 2006-2026