Löggiltir fasteignasalar innan Félags fasteignasala:
Björn Guðmundsson
Berglind Jónasardóttir
Greta Huld Mellado
Vista
svg

499

svg

356  Skoðendur

svg

Skráð  7. jan. 2026

fjölbýlishús

Austurbrú 12 - 302

600 Akureyri

110.750.000 kr.

1.075.243 þ.kr./m2
Fasteignanúmer

F2531352

Fasteignamat

67.400.000 kr.

Brunabótamat

68.770.000 kr.

Áhvílandi

0 kr.

Arion banki – Reikna lán
Upplýsingar
svg
Byggt 2024
svg
103 m²
svg
3 herb.
svg
1 baðherb.
svg
2 svefnh.
svg
Þvottahús
svg
Útsýni
svg
Sameiginl. inngangur
svg
Bílastæði
svg
Lyfta
svg
Laus strax

Lýsing

    

Fasteignasalan Byggð 464-9955

Einstakar útsýnisíbúðir í hjarta Akureyrar. Staðsetningin býður íbúum við Austurbrú uppá einstök gæði. Íbúðirnar eru í nálægð við pollinn, miðbæinn og stóran hluta menningarstarfsemi Akureyrar.

**Íbúðin er laus til afhendingar við kaupsamning**


Fyrir ítarlegar upplýsingar, m.a. skilalýsingu smellið hér

***Bókaðu einkaskoðun í síma 464 9955 eða á byggd@byggd.is***

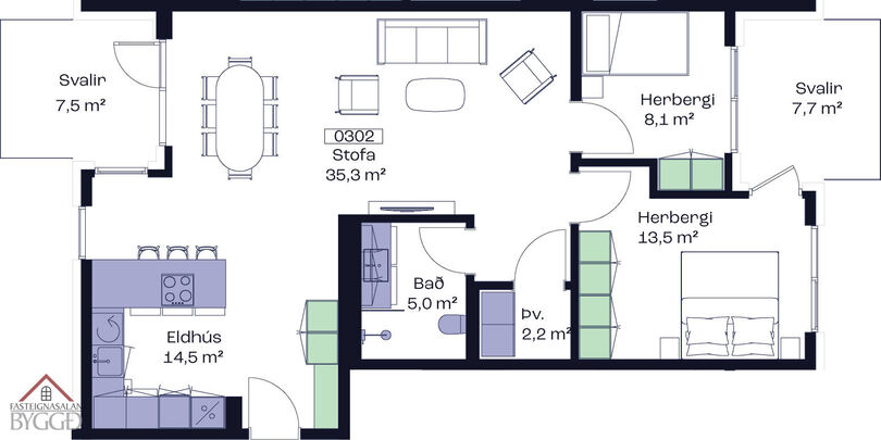
Íbúð 302

Þriggja herbergja rúmgóð íbúð með tvennum svölum á þriðju hæð í nýbyggingu ásamt stæði í lokaðri bílageymslu við Austurbrú 10.
Íbúðin er samtals 103 fm., þar af er geymsla 11,3 fm.


Íbúðin:
Komið er inn í opið anddyri með skáp.  Opið eldhús, eldhúseyja með kvarts stein og span helluborði.  Skúffur og skápar í eldhúsinu eru allar með ljúflokum.  Eldhúsinnrétting með kvarts stein, bakaraofn í vinnuhæð, innfelldur vaskur.  Allar skúffur og skápar með ljúflokum.  Innfelld lýsing frá Lumex.
Fyrir framan eldhúseyjuna er stofa/borðstofa, útgengt út á skjólgóðar svalir til suðurs er úr borðstofu.
Hjónaherbergi með góðum skáp og þaðan er útgengt út á svalir til norðurs.
Barnaherbergi með skáp.
Baðherbergi er flísalagt í hólf og gólf.  Sturta með glerskili.  Falleg innrétting frá Parka, kvarts steinn á borðplötu.  Upphengt salerni. 
Þvottahús er með innréttingu fyrir þvottavél og þurrkara.
Stæði í lokaðri bílageymslu fylgir íbúðinni.
Allar innréttingar, innihurðir, skápar og Electrolux eldhústæki eru frá Parka.  Blöndunar- og hreinlætistæki eru frá Tengi.
Íbúðinni er skilað fullbúinni með gólfefnum.


Sameign er með glæsilegra móti.
Komið er inn í rúmgott anddyri.  Stórar ljósakrónur og lýsing frá Lumex gefa fallega birtu.
Hljóðplötur í lofti, þannig að hlóðvist verður með besta móti.
Flísar á gólfi frá kjallara og upp á pall fyrstu hæðar.  Frá fyrstu hæð eru stigagangarnir teppalagðir.
Innangengt úr hverjum stigagangi niður í lokaða bílageymslu. 

Við Austurbrún 10-14 verða 35 íbúðir og eru þær allar með verönd eða svalir. Gluggarnir nema við gólf fyrir óhefta dagsbirtu og útsýni. Flestum íbúðunum fylgir einkastæði í bílakjallara og þar eru einnig hjólageymsla og geymslur. Lyftur eru í öllum stigahúsum og gott aðgengi fyrir hjólastóla og barnavagna.
Í kjallara eru geymslur íbúðanna auk 62 bílastæða í bílageymslu. Ísorka ehf. og Austurbrú 10-18 húsfélag hafa gert með sér samning með rekstur hleðslukerfis fyrir rafbíla á sameiginlegu bílastæði með hugbúnað Ísorku ehf. 
Í heild er um að ræða 64 íbúðir að meðtöldum íbúðum úr húsum 16 og 18. Byggingarnar sem rísa Hafnarstrætis megin á reitnum munu hýsa glæsilegt hótel búið veitingastað og kokteilbar.

Allar frekari upplýsingar, verðlista og tegundir íbúða má sjá með því að smella hér

Áætluð afhending: Laus við kaupsamning
Framkvæmdaraðili: Pollurinn ehf.

Gjöld sem kaupandi þarf að standa straum af vegna kaupanna:  

1. Stimpilgjald af kaupsamningi - 0.8% af heildarfasteignamati / 1.6% fyrir lögaðila.    (0.4% við fyrstu kaup einstaklinga m.v. að lágmarki 50% eignarhlut). Kaupandi greiðir skipulagsgjald 0,3% af brunabótamati þegar það leggst á eignina.
2. Þinglýsingagjald af kaupsamningi, veðskuldabréfi, veðleyfi o.fl.- kr. 2.700 af hverju skjali.
3. Lántökugjald lánastofnunar -almennt 0,5-1,0% af höfuðstól skuldabréfs (nánari upplýsingar m.a. á heimasíðum lánastofnanna).
4. Umsýsluþóknun til fasteignasölu, sbr.kauptilboð. 

Frekari upplýsingar:
bjorn@byggd.is
greta@byggd.is
olafur@byggd.is

Skipagötu 16 á 2. hæð.
S:464 9955 


 

Byggð fasteignasala

Byggð fasteignasala

Skipagata 16, 600 Akureyri
phone
Byggð fasteignasala

Byggð fasteignasala

Skipagata 16, 600 Akureyri
phone