Löggiltir fasteignasalar innan Félags fasteignasala:
Sigurður Samúelsson
Andri Sigurðsson
Sveinn Eyland
Ingibjörg Agnes Jónsdóttir
Guðrún Diljá Lúðvíksdóttir
Monika Hjálmtýsdóttir
Júlíus Jóhannsson
Freyja Rúnarsdóttir
Jón Óskar Karlsson
Davíð Matthíasson
Vista
raðhús

Laxatunga 82

270 Mosfellsbær

135.900.000 kr.

849.375 þ.kr./m2
Fasteignanúmer

F2313723

Fasteignamat

114.100.000 kr.

Brunabótamat

85.720.000 kr.

Áhvílandi

0 kr.

Arion banki – Reikna lán
Upplýsingar
Verðsaga
svg
Byggt 2017
svg
160 m²
svg
4 herb.
svg
1 baðherb.
svg
3 svefnh.
svg
Þvottahús
svg
Bílskúr
svg
Sérinngangur

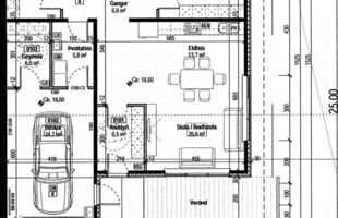
Lýsing

LANDMARK FASTEIGNAMIÐLUN KYNNIR Í EINKASÖLU:
Um er að ræða stór glæsilegt og vel skipulagt  160 fm endaraðhús við Laxatungu 82 í Mosfellsbæ.
Eignin stendur á rólegum stað í Tunguhverfinu í Mosfellsbæ, verönd umlykur húsið frá austri til vesturs og garður því mjög skjólgóður og er innbyggður heitur pottur á verönd.
Íbúðarrými er 132.4 fm og innbyggður bílskúr er 27.6 fm. Mikil lofthæð er í húsinu og er gott milliloft í bílskúr sem að nýtist sem geymsluloft.
Rúmgott steypt plan er framan við hús og er búið að setja upp rafhleðslustöð við hús sem að fylgir með í kaupum.
Vandaðar innréttingar, gólfefni og vandaður frágangur á öllu í eigninni.


Upplýsingar um eign og bókun á skoðunartíma veita:
Sigurður Samúlesson s. 896 2312 eða ss@landmark.is
Sveinn Eyland lögg.fasteignasali s. 6900 820 eða sveinn@landmark.is

FÁÐU SENT SÖLUYFIRLIT YFIR EIGN STRAX HÉR.

Eignin skiptist í:
Forstofu, stofu/borðstofu, eldhús, þrjú svefnherbergi, baðherbergi, þvottahús og stóran bílskúr með geymslulofti. 
Afgirt ca. 160 fm verönd er í kringum allt húsið með háum skjólveggjum og innbyggður heitur pottur er á verönd.
Bílaplan er steypt og með hitalögn.

Nánari lýsing á eigninni:
Komið er inn í flísalagða forstofu með góðum fataskáp.  Úr forstofu er komið inn í stórt opið rými en þar er eldhús og stofa/borðstofa.
Í eldhúsi er hvít háglans innrétting með blástursofni í borðhæð, span helluborð, innbyggð uppþvottavél í innréttingu, Silestone steini í borðplötu frá S.Helgason.  Lýsing undir efri skápum.
Við enda stofunnar kemur gangur og þar er komið á herbergjagang
Þrjú mjög rúmgóð svefnherbergi öll með fataskápum og mikilli lofthæð, úr hjónaherbergi er útgengt til austur út á verönd.
Baðherbergi sem er flísalagt í hólf og gólf með hvítri háglans innréttingu og borðplata með Silestone steini frá S.Helgason, baðkar, Walk-in sturta með hertu gleri, handklæðaofni og vegghengt salerni. 
Þvottahús með hvítri háglans innréttingu þar sem gert er ráð fyrir þvottavél og þurrkara, vaskur er í borðplötu. 
Innangengt er úr þvottahúsi í bílskúr, mjög góðir skápar eru í bílskúr sem að er mjög snyrtilegur, þá er búið að setja upp ca. 16 fm milliloft yfir hluta bílskúrs sem að nýtist vel sem geymsluloft. Heitt og kalt vatn í bílskúr. 
Lóðin er öll afgirt með skjólveggjum og er steyptur stoð veggur meðfram húsi frá austri til vesturs, innbyggður heitur pottur á verönd.
Gólfefni: Vandað gegn heilt planka parket frá Kährs er á eigninni, og vandaðar 60x60 ítalskar flísar eru á forstofu, baðherbergi, þvottahúsi og bílskúr.
Gólfhitakerfi í öllu húsinu.

Allar innréttingar í íbúðarrými eru frá HTH, tæki í eldhúsi eru frá AEG, skápar í bílskúr frá IKEA.
Ítalskar flísar frá Birgisson og Kährs parket frá Birgisson.
Baðkar, vaskur og salerrni eru frá Duravit og blöndunartæki eru frá Hans Grohe allt frá Ísleifi Jónsson.
Glæsilegur pallur í kringum allt húsið, heitur pottur, rafhleðslustöð fyrir bílinn er tilbúinn og fylgir með.


Stutt í útiveru, gönguleiðir, upplýstan battavöll, körfuboltavöll, laxaveiði, hestamannahverfi Harðar, flugklúbb Mosfellsbæjar osfrv.
Sveitasæla og rólegheit í aðeins 15 mín keyrslu frá miðpunkti Reykjavíkur. 

Skoðunar- og aðgæsluskylda:
Lög um fasteignakaup nr. 40/2002 kveða á um að kaupendur þurfi að skoða fasteignir vel áður en tilboð er gert. LANDMARK fasteignamiðlun ráðleggur kaupendum að skoða ástand eignar og leita sér aðstoðar sérfræðinga ef þörf er á nánari skoðun.

Söluyfirlit:
Söluyfirlit er gert af fasteignasala samkvæmt lögum nr. 70/2015. Upplýsingar í yfirlitinu eru fengnar úr opinberum skrám, frá seljanda og ef þarf frá húsfélagi. Fasteignasali sannreynir upplýsingar með skoðun á eigninni en getur ekki sannreynt ástand þess sem ekki er aðgengilegt eða sýnilegt, t.d. lagnir, dren, skólp og þak.

Gjöld sem kaupandi þarf að greiða:
1. Stimpilgjald: 0,8% af fasteignamati (0,4% fyrir fyrstu kaup) og 1,6% fyrir lögaðila.
2. Þinglýsingargjald: 2.700 kr. fyrir hvert skjal.
3. Lántökugjald: Fer eftir gjaldskrá lánveitanda.
3. Þjónustusýslugjald: 79.000 kr. m/vsk.
3. Skipulagsgjald: Ef um nýbyggingu er að ræða, 0,3% af brunabótamáti þegar það er lagt á.

Heimasíða LANDMARK
Pantaðu frítt söluverðmat

img
Sveinn Eyland
Lögg.fasteignasali innan félags fasteignasala
LANDMARK fasteignamiðlun
Hlíðasmári 2, 201 Kópavogur
LANDMARK fasteignamiðlun

LANDMARK fasteignamiðlun

Hlíðasmári 2, 201 Kópavogur
phone
img

Sveinn Eyland

Hlíðasmári 2, 201 Kópavogur
Ár
Fasteignamat
Kaupverð
Stærð
Fermetraverð
21. feb. 2017
104.400.000 kr.
82.000.000 kr.
10101 m²
8.118 kr.
27. apr. 2018
49.000.000 kr.
71.000.000 kr.
160 m²
443.750 kr.
4. mar. 2015
5.720.000 kr.
19.200.000 kr.
988.8 m²
19.417 kr.
Byggt á upplýsingum úr Þjóðskrá Íslands frá 2006-2026
LANDMARK fasteignamiðlun

LANDMARK fasteignamiðlun

Hlíðasmári 2, 201 Kópavogur
phone

Sveinn Eyland

Hlíðasmári 2, 201 Kópavogur