Löggiltir fasteignasalar innan Félags fasteignasala:
Óskar Rúnar Harðarson
Jason Guðmundsson
Þröstur Þórhallsson
Ólafur Finnbogason
Kjartan Ísak Guðmundsson
Gústaf Adolf Björnsson
Viðar Böðvarsson
Rakel Viðarsdóttir
Vala Georgsdóttir
Ragnheiður Pétursdóttir
Böðvar Þ. Eggertsson
Vista
fjölbýlishús

Orkureitur D1 405

108 Reykjavík

119.900.000 kr.

1.137.571 þ.kr./m2
Fasteignanúmer

F2536280

Fasteignamat

2 kr.

Brunabótamat

1 kr.

Áhvílandi

0 kr.

Arion banki – Reikna lán
Upplýsingar
svg
Byggt 2024
svg
105,4 m²
svg
3 herb.
svg
2 baðherb.
svg
2 svefnh.
svg
Sameiginl. inngangur
svg
Lyfta

Lýsing

Miklaborg Fasteignasala og Safír byggingar ehf. kynna nýjar glæsilegar eignir við Suðurlandsbraut og Grensásveg. Orkureiturinn er nýtt og glæsilegt íbúðahverfi við Laugardalinn. Sannkallaður sælureitur. Sérstök áhersla lögð á endurnýtingu orku og dagsbirtuvottaðar íbúðir. Rut Kára stýrir innanhúshönnun íbúða og leggur línurnar fyrir sameigninleg rými. Inngarðar að evrópskri fyrirmynd og líkamsræktarsalur í sameiginlegu rými á jarðhæð D hlutans. Einnig verður fjölbreytt þjónusta á jarðhæð eins og kaffihús og önnur hentug nærþjónusta sem auka á lífsgæði íbúa. Kynntu þér Orkureitinn og bókaðu skoðun hjá sölumönnum !

Nánari lýsing

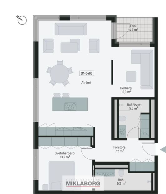
Íbúð 405 er 105,4 fm þriggja herbergja íbúð á fjórðu hæð. Geymsla 9,1 fm og 4,4 fm svalir sem snúa í átt að Laugardalnum. Innrétting Safír Harmónía lína 2. Eignin skiptist í forstofu með góðu skápaplássi. Svefnherbergi, baðherbergi og eldhús í alrými. Skrifstofa eða sjónvarpsherbergi í alrými. Stofu og borðstofu. Gert ráð fyrir þvottvél og þurrkara inná baðherbergi. Íbúðin er afhent með öllum hefðbundum raftækjum í eldhúsi og vönduðum innréttingum frá GKS. Íbúðir eru afhentar án megin gólfefna. Baðherbergi eru flísalögð.

Nýjar lausnir - betri hljóðvist

Hver íbúð er útbúin loftræstikerfi með varmaendurvinnslu. Allt loft sem fer í gegnum kerfið er síað og er því minna af svifryki og frjókornum í íbúðunum en ella.

Á byggingartíma er lögð áhersla á endurvinnslu byggingarefnis, jarðvegs og gróðurs á svæðinu. Skipulag reitsins er það fyrsta í Reykjavík sem vottað er af BREEAM vistvottunarkerfinu og hefur það fengið einkunina Excellent.

Allar íbúðir við Orkureitinn eru hannaðar til að hámarka nýtingu dagsbirtu og þar með auka vellíðan og stuðla að lífsgæðum íbúa.

Nánari upplýsingar veita:

Friðjón Örn Magnússon löggiltur fasteignasali í síma 692 2704 eða fridjon@miklaborg.is

Ingimundur Ingimundarson löggiltur fasteignasali í síma 867 4540 eða ingimundur@miklaborg.is

Íris Arna Geirsdóttir löggiltur fasteignasali í síma 770 0500 eða iris@miklaborg.is

Kjartan ísak Guðmundsson löggiltur fasteignasali í síma 663 4392 eða kjartan@miklaborg.is

Móeiður Svala Magnúsdóttir löggiltur fasteignasali í síma 899 8278 eða moa@miklaborg.is

Ólafur Finnbogason löggiltur fasteignasali í síma 822 2307 eða olafur@miklaborg.is

Viðar Böðvarsson löggiltur fasteignasali í síma 694 1401 eða vidar@miklaborg.is

Þröstur þórhallsson löggiltur fasteignasali í síma 897 0634 eða throstur@miklaborg.is


Miklaborg fasteignasala

Miklaborg fasteignasala

Lágmúli 4, 108 Reykjavík
Miklaborg fasteignasala

Miklaborg fasteignasala

Lágmúli 4, 108 Reykjavík