Upplýsingar
Byggt 2007
251,9 m²
6 herb.
2 baðherb.
4 svefnh.
Þvottahús
Bílskúr
Sérinngangur
Lýsing
Prima fasteignasala og Björgvin Þór Rúnarsson lgf kynna eignina Furuás 9, 221 Hafnarfjörður
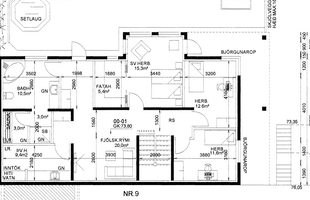
Stórglæsilegt parhús á góðum stað í Hafnarfirði, Húsið er byggt 2007, skráð alls 251,9m2, þar af er bílskúr 43.7fm. (lokaúttekt er á húsinu)
6 herbergja fjölskyldu-parhús á tveimur hæðum með borðstofu og eldhúsi, stofu, 4 svefnherbergi,
2 baðherbergi/ Gufa, þvottahúsi, fataherbergi og rúmgóður bílskúr með geymslu innaf.
Bílaplan er steypt, hiti er í bílaplani. Öll lóðin hin snyrtilegasta. Húsið er í mjög góðu ásigkomulagi og hefur fengið reglulegt og gott viðhald.
Nánari lýsing eignar:
Efri hæð:
Komið er inn í húsið á efri hæð sem skiptist í forstofu með fallegum flísum á gólfi og góðum fataskáp. Innfeld lýsing er í mest allri eigninni parket og flísar á gólfum.
Gestasalerni er á gangi, flísalagt gólf og walk-in sturta,blöndunartæki eru innbyggð Vola tæki
Innangengt í rúmgóðan bílskúr þar innaf er geymsla.
Eitt svefnherbergi a efri hæð.
Eldhúsið er með góðri sérsmíðaðri innréttingu frá Hanok í Þýskalandi, innbyggðri uppþvottavél og tvöfaldum ísskáp.
Alrýmið er bjart með gríðarlegur útsýni og tengir saman borðstofu og fallegt eldhús.
Svalir eru á efri hæð húsins og útgengt á svalir úr stofu og eldhúsi um rennihurð annarssvegar og svalahurð hinsvegar.
Neðri hæð:
Hjónaherbergi með fataherbergi er mjög rúmgott.
2 barnaherbergi eru á hægri hönd þegar komið er niður stigann.
Sjónvarpsherbergi er stórt.
Aðal baðberbgi er flísalagt í hólf og gólf með baðkari innréttingu og tvöfaldri sturtu og gufubaði innaf sturtu,blöndunartæki eru innbyggð Vola tæki.
Stórt og gott þvottahús,
Neysluvatnsforhitari.
Fasteignamat næsta árs verður 154.000.000
Nánari upplýsingar veita:
Björgvin Þór Rúnarsson löggiltur fasteignasali
s.8551544 / bjorgvin@primafasteignir.is
Um skoðunar- og aðgæsluskyldu:
Í lögum um fasteignakaup nr. 40/2002 er kveðið á um ríka skoðunarskyldu kaupenda á fasteignum. Væntanlegum kaupendum er bent á að kynna sér vel ástand fasteigna við skoðun og fyrir tilboðsgerð og ef þurfa þykir að leita til sérfræðinga um nánari ástandsskoðun. Almennt getur kaupandi ekki borið fyrir sig að ástand eignar sé annað en það sem hann hefði mátt sjá við slíka skoðun.
Forsendur söluyfirlits:
Söluyfirlit er samið af fasteignasala í samræmi við ákvæði laga nr. 70/2015. Þær upplýsingar sem fram koma í söluyfirliti þessu eru sóttar í opinberar skrár, til seljanda sjálfs og eftir atvikum til húsfélags. Seljandi veitir upplýsingar um eign í samræmi við upplýsingaskyldu laga um fasteignakaup nr. 40/2002, og ábyrgist að þær séu réttar. Fasteignasali sannreynir að þær upplýsingar séu réttar með sjónskoðun á eigninni. Fasteignasali getur ekki fullyrt um ástand og eiginleika þeirra hluta fasteigna sem ekki eru aðgengilegir og sjást ekki berum augum, t.d. lagnir, dren, skólp og þak. Það sama á við um staðhæfingar seljanda eignar um viðhald og einstaka framkvæmdir.
Almennt um fylgifé íbúðarhúsnæðis:
Til fylgifjár íbúðarhúsnæðis teljast varanlegar innréttingar og búnaður sem annaðhvort er skeytt varanlega við fasteignina eða er sérstaklega sniðinn að henni. Þetta á meðal annars við um fastan búnað og lagnir til hitunnar og vatnsmiðlunar, rafmagnsvirki og leiðslur, loftnet og annan móttökubúnað í eigu seljanda, sem fest eru á fasteign, föst gólfteppi og önnur gólfefni sérstaklega tilsniðin, gluggabúnað, bað- og eldhúsinnréttingar og tæki og vélar sem eru sérstaklega felld inn í innréttingarnar og verða hluti af þeim og aðra innbyggða hluta.
Um ástand einstakra eignarhluta:
Efst í söluyfirlitli þessu er að finna dálka um ástand einstakra hluta eignarinnar. Eftirfarandi lykil er til skýringar á þeirri skráningu:
Nýtt - Eignin er nýbygging.
Upprunalegt - Seljandi veit ekki til þess að byggingarhluti hafi verið endurnýjaður.
Endurnýjað - Byggingarhlutinn hefur verið endurnýjaður í heild sinni á einhverjum tímapunkti.
Endurnýjað að hluta - Hluti byggingarhlutans hefur verið endurnýjaður á einhverjum tímapunkti.
Ekki vitað - Seljandi þekkir ekki til ástands og ekki er hægt að leggja mat á það með sjónskoðun.
Gjöld sem kaupandi þarf að standa straum af vegna kaupanna:
Stimpilgjald af kaupsamningi sem er hlutfall af fasteignamati. Stimpilgjald er 0,8% fyrir einstaklinga (0,4% við fyrstu kaup) og 1,6% fyrir lögaðila.
Þinglýsingargjald af kaupsamningi, veðskuldabréfum, veðleyfum o.fl. Þinglýsingargjald er kr. 2.700,- fyrir hvert skjal.
Lántökugjald lánastofnunar. Um lántökugjald vísast í gjaldskrá viðkomandi lánveitanda.
Umsýsluþóknun fasteignasölu skv. gjaldskrá.
Ef um nýbyggingu er að ræða greiðir kaupandi skipulagsgjald, 0,3% af brunabótamáti, þegar það er lagt á.
Stórglæsilegt parhús á góðum stað í Hafnarfirði, Húsið er byggt 2007, skráð alls 251,9m2, þar af er bílskúr 43.7fm. (lokaúttekt er á húsinu)
6 herbergja fjölskyldu-parhús á tveimur hæðum með borðstofu og eldhúsi, stofu, 4 svefnherbergi,
2 baðherbergi/ Gufa, þvottahúsi, fataherbergi og rúmgóður bílskúr með geymslu innaf.
Bílaplan er steypt, hiti er í bílaplani. Öll lóðin hin snyrtilegasta. Húsið er í mjög góðu ásigkomulagi og hefur fengið reglulegt og gott viðhald.
Nánari lýsing eignar:
Efri hæð:
Komið er inn í húsið á efri hæð sem skiptist í forstofu með fallegum flísum á gólfi og góðum fataskáp. Innfeld lýsing er í mest allri eigninni parket og flísar á gólfum.
Gestasalerni er á gangi, flísalagt gólf og walk-in sturta,blöndunartæki eru innbyggð Vola tæki
Innangengt í rúmgóðan bílskúr þar innaf er geymsla.
Eitt svefnherbergi a efri hæð.
Eldhúsið er með góðri sérsmíðaðri innréttingu frá Hanok í Þýskalandi, innbyggðri uppþvottavél og tvöfaldum ísskáp.
Alrýmið er bjart með gríðarlegur útsýni og tengir saman borðstofu og fallegt eldhús.
Svalir eru á efri hæð húsins og útgengt á svalir úr stofu og eldhúsi um rennihurð annarssvegar og svalahurð hinsvegar.
Neðri hæð:
Hjónaherbergi með fataherbergi er mjög rúmgott.
2 barnaherbergi eru á hægri hönd þegar komið er niður stigann.
Sjónvarpsherbergi er stórt.
Aðal baðberbgi er flísalagt í hólf og gólf með baðkari innréttingu og tvöfaldri sturtu og gufubaði innaf sturtu,blöndunartæki eru innbyggð Vola tæki.
Stórt og gott þvottahús,
Neysluvatnsforhitari.
Fasteignamat næsta árs verður 154.000.000
Nánari upplýsingar veita:
Björgvin Þór Rúnarsson löggiltur fasteignasali
s.8551544 / bjorgvin@primafasteignir.is
Um skoðunar- og aðgæsluskyldu:
Í lögum um fasteignakaup nr. 40/2002 er kveðið á um ríka skoðunarskyldu kaupenda á fasteignum. Væntanlegum kaupendum er bent á að kynna sér vel ástand fasteigna við skoðun og fyrir tilboðsgerð og ef þurfa þykir að leita til sérfræðinga um nánari ástandsskoðun. Almennt getur kaupandi ekki borið fyrir sig að ástand eignar sé annað en það sem hann hefði mátt sjá við slíka skoðun.
Forsendur söluyfirlits:
Söluyfirlit er samið af fasteignasala í samræmi við ákvæði laga nr. 70/2015. Þær upplýsingar sem fram koma í söluyfirliti þessu eru sóttar í opinberar skrár, til seljanda sjálfs og eftir atvikum til húsfélags. Seljandi veitir upplýsingar um eign í samræmi við upplýsingaskyldu laga um fasteignakaup nr. 40/2002, og ábyrgist að þær séu réttar. Fasteignasali sannreynir að þær upplýsingar séu réttar með sjónskoðun á eigninni. Fasteignasali getur ekki fullyrt um ástand og eiginleika þeirra hluta fasteigna sem ekki eru aðgengilegir og sjást ekki berum augum, t.d. lagnir, dren, skólp og þak. Það sama á við um staðhæfingar seljanda eignar um viðhald og einstaka framkvæmdir.
Almennt um fylgifé íbúðarhúsnæðis:
Til fylgifjár íbúðarhúsnæðis teljast varanlegar innréttingar og búnaður sem annaðhvort er skeytt varanlega við fasteignina eða er sérstaklega sniðinn að henni. Þetta á meðal annars við um fastan búnað og lagnir til hitunnar og vatnsmiðlunar, rafmagnsvirki og leiðslur, loftnet og annan móttökubúnað í eigu seljanda, sem fest eru á fasteign, föst gólfteppi og önnur gólfefni sérstaklega tilsniðin, gluggabúnað, bað- og eldhúsinnréttingar og tæki og vélar sem eru sérstaklega felld inn í innréttingarnar og verða hluti af þeim og aðra innbyggða hluta.
Um ástand einstakra eignarhluta:
Efst í söluyfirlitli þessu er að finna dálka um ástand einstakra hluta eignarinnar. Eftirfarandi lykil er til skýringar á þeirri skráningu:
Nýtt - Eignin er nýbygging.
Upprunalegt - Seljandi veit ekki til þess að byggingarhluti hafi verið endurnýjaður.
Endurnýjað - Byggingarhlutinn hefur verið endurnýjaður í heild sinni á einhverjum tímapunkti.
Endurnýjað að hluta - Hluti byggingarhlutans hefur verið endurnýjaður á einhverjum tímapunkti.
Ekki vitað - Seljandi þekkir ekki til ástands og ekki er hægt að leggja mat á það með sjónskoðun.
Gjöld sem kaupandi þarf að standa straum af vegna kaupanna:
Stimpilgjald af kaupsamningi sem er hlutfall af fasteignamati. Stimpilgjald er 0,8% fyrir einstaklinga (0,4% við fyrstu kaup) og 1,6% fyrir lögaðila.
Þinglýsingargjald af kaupsamningi, veðskuldabréfum, veðleyfum o.fl. Þinglýsingargjald er kr. 2.700,- fyrir hvert skjal.
Lántökugjald lánastofnunar. Um lántökugjald vísast í gjaldskrá viðkomandi lánveitanda.
Umsýsluþóknun fasteignasölu skv. gjaldskrá.
Ef um nýbyggingu er að ræða greiðir kaupandi skipulagsgjald, 0,3% af brunabótamáti, þegar það er lagt á.