Upplýsingar
Byggt 2019
235,9 m²
5 herb.
2 baðherb.
3 svefnh.
Þvottahús
Bílskúr
Sérinngangur
Lýsing
Glæsilegt 235,9 fm parhús á tveimur hæðum með bílskúr við Móbergsskarð 6 í Hafnarfirði.
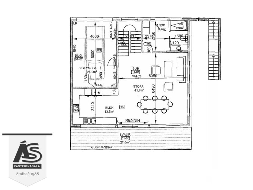
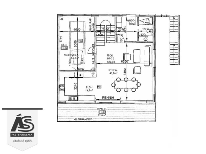
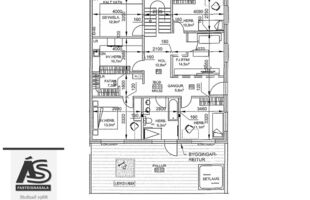
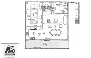
Eignin skiptist þannig að efri hæðin er 76,7 fm, neðri hæðin 132,0 fm og bílskúrinn 27,2 fm, samtals 235,9 fm skv. HMS.
Efri hæð: Forstofa með skápum. Gestasalerni með sturtu innaf forstofu. Eldhús og stofa í björtu alrými með útsýni til suðurs, útg. á rúmgóðar svalir. Eldhúsinnrétting er með innbyggðri uppþvottavél, stæði fyrir amerískan ísskáp, tveir ofnar í vinnuhæð. Stigi niður á neðri hæð úr alrými.
Neðri hæð: Rúmgott sjónvarpshol, útg. á lóð. Þrjú svefnherbergi eru á hæðinni, þ.m.t. hjónaherbergi með fataherbergi. Auðvelt er að bæta við fjórða herberginu í sjónvarpsholinu. Baðherbergi með baðkari og sturtu, útg. á verönd. Þvottahús er rúmgott stórri innréttingu fyrir vélar í vinnuhæð. Rúmgóð geymsla er á hæðinni.
Bílskúr: Innangengt er í bílskúrinn. Epoxygólf, innrétting, hiti, rafmagn, vatn og hurðaopnari.
Lóðin: Snyrtilega frágengin lóð með steyptu bílaplani. Skjólgóður sólpallur sem snýr til suðurs m/heitum potti.
Frábær staðsetning þar sem stutt er í alla helstu þjónustu og falleg útivistarsvæði.
Nánari upplýsingar veitir Arnór Daði Eiríksson löggiltur fasteignasali í s. 777-0939 / arnor@as.is og Aron Freyr Eiríksson löggiltur fasteignasali í síma 772-7376 / aron@as.is
Ás fasteignasala er rótgróið fyrirtæki sem hefur veitt alla almenna þjónustu í fasteignaviðskiptum frá árinu 1988.
www.facebook.com/asfasteignasala
www.instagram.com/as_fasteignasala
www.as.is
Eignin skiptist þannig að efri hæðin er 76,7 fm, neðri hæðin 132,0 fm og bílskúrinn 27,2 fm, samtals 235,9 fm skv. HMS.
Efri hæð: Forstofa með skápum. Gestasalerni með sturtu innaf forstofu. Eldhús og stofa í björtu alrými með útsýni til suðurs, útg. á rúmgóðar svalir. Eldhúsinnrétting er með innbyggðri uppþvottavél, stæði fyrir amerískan ísskáp, tveir ofnar í vinnuhæð. Stigi niður á neðri hæð úr alrými.
Neðri hæð: Rúmgott sjónvarpshol, útg. á lóð. Þrjú svefnherbergi eru á hæðinni, þ.m.t. hjónaherbergi með fataherbergi. Auðvelt er að bæta við fjórða herberginu í sjónvarpsholinu. Baðherbergi með baðkari og sturtu, útg. á verönd. Þvottahús er rúmgott stórri innréttingu fyrir vélar í vinnuhæð. Rúmgóð geymsla er á hæðinni.
Bílskúr: Innangengt er í bílskúrinn. Epoxygólf, innrétting, hiti, rafmagn, vatn og hurðaopnari.
Lóðin: Snyrtilega frágengin lóð með steyptu bílaplani. Skjólgóður sólpallur sem snýr til suðurs m/heitum potti.
Frábær staðsetning þar sem stutt er í alla helstu þjónustu og falleg útivistarsvæði.
Nánari upplýsingar veitir Arnór Daði Eiríksson löggiltur fasteignasali í s. 777-0939 / arnor@as.is og Aron Freyr Eiríksson löggiltur fasteignasali í síma 772-7376 / aron@as.is
Ás fasteignasala er rótgróið fyrirtæki sem hefur veitt alla almenna þjónustu í fasteignaviðskiptum frá árinu 1988.
www.facebook.com/asfasteignasala
www.instagram.com/as_fasteignasala
www.as.is