Löggiltir fasteignasalar innan Félags fasteignasala:
Hannes Steindórsson
Bogi Molby Pétursson
Guðrún Antonsdóttir
Heimir Hallgrímsson
Hrafnkell P. H. Pálmason
Viðar Marinósson
Elías Haraldsson
Kristján Þórir Hauksson
Albert Bjarni Úlfarsson
Ragnar Þorsteinsson
Þórey Ólafsdóttir
Andri Freyr Halldórsson
Upplýsingar
Byggt 1995
150,6 m²
3 herb.
1 baðherb.
2 svefnh.
Þvottahús
Sameiginl. inngangur
Lyfta
Lýsing
Hannes Steindórsson og Gunnar Valsson kynna með stolti: Einstakar lúxus íbúðir í hjarta Hafnarfjarðar þar sem öll nauðsynleg þjónusta, bókasafn, verslanir, kaffi og veitingahús eru í göngufæri. Efri íbúðir njóta sjávarútsýnis til suðurs og vesturs. Bogadregnir gluggar á stölluðum þaksvölum. Hljóðdúkar í loftum með innfelldri lýsingu.
Hér má skoða allt verkefnið
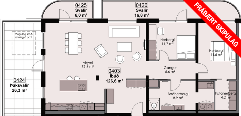
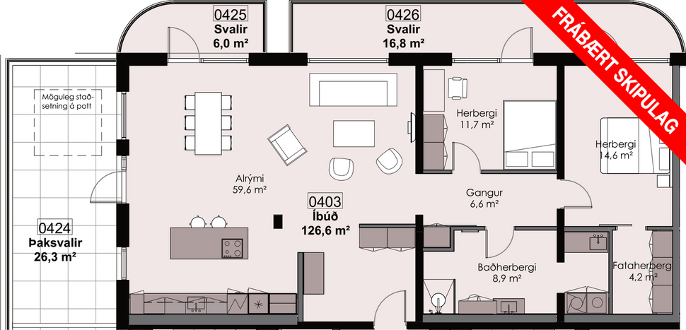
Íbúð 403 er 150,6 fm, 3ja herbergja íbúð á 4.hæð ásamt 26,3 fm sérafnotarétti. Eignin skiptist í forstofu, baðherbergi, þvottahús, hjónaherbergi með fataherbergi innaf, svefnherbergi, eldhús, stofu og sérgeymslu í sameign. 22,8 fm svalir.
Allar íbúðir eru með stórum gólfsíðum gluggum, en lögð er rík áhersla á að veita góða dagsbirtu og að hámarka útsýni. Gólfhiti í öllum íbúðum til að hámarka útsýni úr gólfsíðum gluggum og halda stílhreinu og fáguðu útliti. Húsið er klætt að utan með áltré gluggum.
Sérsmíðaðar innréttingar, úr spónlagðri amerískri hnotu, frá VOKE III.
Dekton Steinn á borðum, liturinn er innblásin af sandsteini og sameinar hlýja beige- og gráa tóna sem skapar rólegt og tímalaust yfirbragð. Vönduð tæki frá Miele og Elica. Vandaðar 60X120 flísar á baðherbergjum.
Allar nánari upplýsingar veita: Hannes Steindórsson s.699-5008 hannes@fastlind.is eða Gunnar Valsson s.699-3702 gunnar@fastlind.is
Hér má skoða allt verkefnið
Íbúð 403 er 150,6 fm, 3ja herbergja íbúð á 4.hæð ásamt 26,3 fm sérafnotarétti. Eignin skiptist í forstofu, baðherbergi, þvottahús, hjónaherbergi með fataherbergi innaf, svefnherbergi, eldhús, stofu og sérgeymslu í sameign. 22,8 fm svalir.
Allar íbúðir eru með stórum gólfsíðum gluggum, en lögð er rík áhersla á að veita góða dagsbirtu og að hámarka útsýni. Gólfhiti í öllum íbúðum til að hámarka útsýni úr gólfsíðum gluggum og halda stílhreinu og fáguðu útliti. Húsið er klætt að utan með áltré gluggum.
Sérsmíðaðar innréttingar, úr spónlagðri amerískri hnotu, frá VOKE III.
Dekton Steinn á borðum, liturinn er innblásin af sandsteini og sameinar hlýja beige- og gráa tóna sem skapar rólegt og tímalaust yfirbragð. Vönduð tæki frá Miele og Elica. Vandaðar 60X120 flísar á baðherbergjum.
Allar nánari upplýsingar veita: Hannes Steindórsson s.699-5008 hannes@fastlind.is eða Gunnar Valsson s.699-3702 gunnar@fastlind.is