Löggiltir fasteignasalar innan Félags fasteignasala:
Sverrir Kristinsson
Kjartan Hallgeirsson
Guðlaugur Ingi Guðlaugsson
Daði Hafþórsson
Gunnar Helgi Einarsson
Gunnar Bergmann Jónsson
Lilja Guðmundsdóttir
Jenný Sandra Gunnarsdóttir
Kári Sighvatsson
Vista
fjölbýlishús

Skálaheiði 9

200 Kópavogur

102.900.000 kr.

713.592 þ.kr./m2
Fasteignanúmer

F2245374

Fasteignamat

102.300.000 kr.

Brunabótamat

54.550.000 kr.

Áhvílandi

0 kr.

Arion banki – Reikna lán
Upplýsingar
Verðsaga
svg
Byggt 2000
svg
144,2 m²
svg
5 herb.
svg
1 baðherb.
svg
3 svefnh.
svg
Þvottahús
svg
Sérinngangur

Lýsing

Eignamiðlun kynnir:

Eignin er seld og áður auglýst opið hús fellur niður ! Skálaheiði 9,  144.2 fm neðri sérhæð í þríbýlishúsi 4-5 herb.  Sérinngangur, sérþvottahús, sérverönd. Nýlegt eldhús, gólfefni og fl. Gott aðgengi fyrir fatlaða, beint inn og bílastæði framan við inngang. Hús byggt 2000. Þrjú svefnherbergi. 2 stofur. Frábær staðsetning í grónu hverfi með grunn, leikskóla og íþróttahús HK í næsta nágrenni. 
Bókið skoðun Þórarinn s 8991882 thorarinn@eignamidlun.is
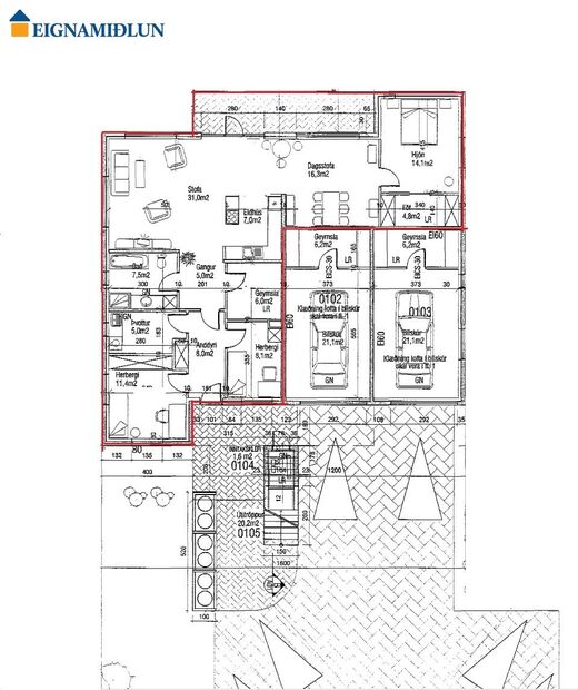
Eignin er skráð sem hér segir hjá Þjóðskrá: Fastanr. 224-5374, nánar tiltekið eign merkt 01-01, birt heildarstærð 144.2 fm, sérgeymsla er innan íbúðarinnar. Sérverönd er til suðvestur nýleg timburverönd að mestu afgirt.  

Eignin skiptist í: Forstofu, hol, 3 svefnherbergi, 2 stofur, eldhús, sérþvottahús, baðherbergi og sérgeymslu innan íbúðarinnar.

Smelltu hér til að sækja söluyfirlit.     *Smelltu hér fyrir sölubækling !

Nánari lýsing eignarinnar:
SÉRINNGANGUR:  Forstofa með flísum og skápum. 
HOL: Hol með nýlegu parketi.
HERBERGI I: Rúmgott herbergi með parketi.
HERBERGI II: Herbergi með parketi.
STOFUR: Rúmgóð stofa með parketi, gengið út á að mestu afgirta timburverönd í suðvestur og þaðan í sameiginlegan garð. DAGSTOFA: Með parketi. 
ELDHÚS:  Eldhúsið er með nýlegri IKEA innréttingu og stórri eyju, opið yfir í stofuna. Nýleg raftæki í eldhúsi, blöndunartæki og vaskur. 
HJÓNAHERBERGI: Hjónaherbergið er innaf dagstofu einstaklega rúmgott með parketi og nýlegum skápum.
BAÐHERBERGI: Baðherbergið er flísalagt bæði gólf og veggir með baðkari, nýlegri innréttingu og sturtu. Nýlegt vegghengt salerni. Gluggi á baðherbergi.
ÞVOTTAHÚS: Sérþvottahús með glugga innan íbúðarinnar. 
SÉRGEYMSLA: Sérgeymsla er innan íbúðarinnar rúmgóð.
Góð bílastæði við húsið.


Nánari upplýsingar veitir Þórarinn M. Friðgeirsson Löggiltur fasteignasali, í síma 899-1882, tölvupóstur thorarinn@eignamidlun.is eða skrifstofa Eignamiðlunar í síma 588-9090

***
Ábyrg þjónusta í áratugi. Eignamiðlun var stofnuð 1957 og er elsta starfandi fasteignasala á Íslandi. Reynsla, heiðarleiki og þekking á fasteignamarkaðnum eru grunnur að farsælum viðskiptum. 

Eignamiðlun Grensásvegi 11, 108 Reykjavík - Opið frá kl. 9-17 mánudaga til fimmtudaga og 9-16 á föstudögum.

Heimasíða Eignamiðlunar

Eignamiðlun á Facebook

Eignamiðlun

Eignamiðlun

Grensásvegi 11, 108 Reykjavík
Ár
Fasteignamat
Kaupverð
Stærð
Fermetraverð
27. mar. 2019
57.300.000 kr.
58.900.000 kr.
144.2 m²
408.460 kr.
Byggt á upplýsingum úr Þjóðskrá Íslands frá 2006-2026
Eignamiðlun

Eignamiðlun

Grensásvegi 11, 108 Reykjavík