Upplýsingar
Verðsaga
Byggt 2021
92 m²
4 herb.
1 baðherb.
3 svefnh.
Þvottahús
Sérinngangur
Opið hús: 15. janúar 2026
kl. 17:30
til 18:00
Opið hús: Heiðarstekkur 9b, 800 Selfoss, Íbúð merkt: 01 02 01. Eignin verður sýnd fimmtudaginn 15. janúar 2026 milli kl. 17:30 og kl. 18:00.
Lýsing
Fasteignasalan Heimaland kynnir í einkasölu, Heiðarstekkur 9b á Selfossi.
Um er að ræða 92fm íbúð á annari hæð í snyrtilegu fjölbýli á Selfossi.
Húsið er steypt, byggt árið 2021 og eru samtals fjórar íbúðir í húsinu.
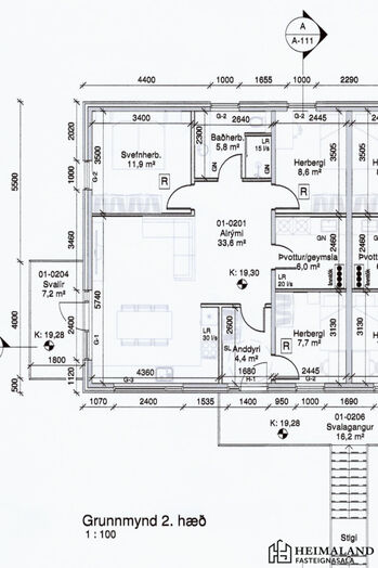
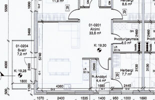
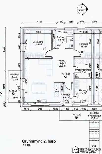
Samkvæmt teikningu skiptist íbúðin í forstofu, 3 svefnherbergi, baðherbergi, þvottahús og alrými sem samanstendur af eldhúsi, borðstofu og stofu. Svalir í séreign eru 7,2fm og snúa í norð/vestur.
Nánari lýsing eignar:
Forstofa er flísalögð með fataskáp.
Stofa/borðstofa er björt og falleg með parketi á gólfi, útgengt út á svalir úr stofu.
Eldhúsið er með rúmgóðri HTH innréttingu, hvít að lit með dökkum efriskápum. Innbyggður ísskápur og uppþvottavél í innréttingu. Spanhelluborð og bakarofn frá AEG.
Svefnherbergin eru 3, öll með hvítum fataskápum og parketi á gólfi.
Baðherbergið er flísalagt, með upphengdu WC og gólfsturtu.
Þvottahús er flísalagt með innréttingu þar sem gert er ráð fyrir þvottavél og þurrkara.
Vel skipulögð íbúð á efri hæð í nýlegu og snyrtilegu fjölbýlishúsi í Stekkjahverfi á Selfossi.
Nýjasti grunnskóli bæjarins, Stekkjaskóli er í göngufæri.
Nánari upplýsingar veita:
Elísa Dagmar Björgvinsdóttir, aðstoðarmaður fasteignasala í löggildingarnámi, s: 868-7938, elisa@heimaland.is
Snorri Sigurðarson, löggildur fasteigna og skipasali, s: 897-7027, snorri@heimaland.is
Gjöld sem kaupandi þarf að greiða vegna kaupa:
1. Stimpilgjald af kaupsamningi er 0,8% af heildarfasteignamati hjá einstaklingum. Sé um fyrstu kaup að ræða er stimpilgjald af kaupsamningi 0,4% af heildarfasteignamati.
2. Stimpilgjald af kaupsamningi - 1,6% af heildarfasteignamati hjá lögaðilum.
3. Þinglýsingargjald af kaupsamningi, afsali, veðskuldabréfi, mögulegu veðleyfi o.fl. - kr. 2.700 af hverju skjali.
4. Lántökugjald lánastofnunar - samanber gjaldskrá viðkomandi lánastofnunar.
5. Umsýslugjald kaupanda er skv. verðskrá.
Í lögum um fasteignakaup nr. 40/2002 er kveðið á um ríka skoðunarskyldu kaupenda á fasteignum. Fasteignasalan Heimaland hvetur því viðskiptavini sína og væntanlega kaupendur af fasteignum að kynna sér vel ástand fasteigna fyrir tilboðsgerð eða eftir atvikum fyrir kaupsamningsgerð. Ef þurfa þykir ættu væntanlegir kaupendur að leita til þar til bærra sérfræðinga um aðstoð við slíka skoðun.
www.heimaland.is, Austurvegur 6, 800 Selfoss, Fasteignasalan Heimaland ehf.
Um er að ræða 92fm íbúð á annari hæð í snyrtilegu fjölbýli á Selfossi.
Húsið er steypt, byggt árið 2021 og eru samtals fjórar íbúðir í húsinu.
Samkvæmt teikningu skiptist íbúðin í forstofu, 3 svefnherbergi, baðherbergi, þvottahús og alrými sem samanstendur af eldhúsi, borðstofu og stofu. Svalir í séreign eru 7,2fm og snúa í norð/vestur.
Nánari lýsing eignar:
Forstofa er flísalögð með fataskáp.
Stofa/borðstofa er björt og falleg með parketi á gólfi, útgengt út á svalir úr stofu.
Eldhúsið er með rúmgóðri HTH innréttingu, hvít að lit með dökkum efriskápum. Innbyggður ísskápur og uppþvottavél í innréttingu. Spanhelluborð og bakarofn frá AEG.
Svefnherbergin eru 3, öll með hvítum fataskápum og parketi á gólfi.
Baðherbergið er flísalagt, með upphengdu WC og gólfsturtu.
Þvottahús er flísalagt með innréttingu þar sem gert er ráð fyrir þvottavél og þurrkara.
Vel skipulögð íbúð á efri hæð í nýlegu og snyrtilegu fjölbýlishúsi í Stekkjahverfi á Selfossi.
Nýjasti grunnskóli bæjarins, Stekkjaskóli er í göngufæri.
Nánari upplýsingar veita:
Elísa Dagmar Björgvinsdóttir, aðstoðarmaður fasteignasala í löggildingarnámi, s: 868-7938, elisa@heimaland.is
Snorri Sigurðarson, löggildur fasteigna og skipasali, s: 897-7027, snorri@heimaland.is
Gjöld sem kaupandi þarf að greiða vegna kaupa:
1. Stimpilgjald af kaupsamningi er 0,8% af heildarfasteignamati hjá einstaklingum. Sé um fyrstu kaup að ræða er stimpilgjald af kaupsamningi 0,4% af heildarfasteignamati.
2. Stimpilgjald af kaupsamningi - 1,6% af heildarfasteignamati hjá lögaðilum.
3. Þinglýsingargjald af kaupsamningi, afsali, veðskuldabréfi, mögulegu veðleyfi o.fl. - kr. 2.700 af hverju skjali.
4. Lántökugjald lánastofnunar - samanber gjaldskrá viðkomandi lánastofnunar.
5. Umsýslugjald kaupanda er skv. verðskrá.
Í lögum um fasteignakaup nr. 40/2002 er kveðið á um ríka skoðunarskyldu kaupenda á fasteignum. Fasteignasalan Heimaland hvetur því viðskiptavini sína og væntanlega kaupendur af fasteignum að kynna sér vel ástand fasteigna fyrir tilboðsgerð eða eftir atvikum fyrir kaupsamningsgerð. Ef þurfa þykir ættu væntanlegir kaupendur að leita til þar til bærra sérfræðinga um aðstoð við slíka skoðun.
www.heimaland.is, Austurvegur 6, 800 Selfoss, Fasteignasalan Heimaland ehf.
Ár
Fasteignamat
Kaupverð
Stærð
Fermetraverð
23. ágú. 2024
50.900.000 kr.
55.500.000 kr.
10201 m²
5.441 kr.
1. feb. 2022
16.050.000 kr.
48.800.000 kr.
92 m²
530.435 kr.
16. apr. 2021
2.100.000 kr.
38.000.000 kr.
92 m²
413.043 kr.
22. okt. 2020
2.160.000 kr.
25.700.000 kr.
92 m²
279.348 kr.
Byggt á upplýsingum úr Þjóðskrá Íslands frá 2006-2026