Upplýsingar
Byggt 2025
80,3 m²
2 herb.
1 baðherb.
1 svefnh.
Sameiginl. inngangur
Lyfta
Lýsing
Stuðlaberg Fasteignasala kynnir nýjar tveggja og þriggja herbergja íbúðir við Móavelli 6 í Reykjanesbæ.
Frábær staðsetning á grónum stað miðsvæðis í Reykjanesbæ þar sem stutt er í verslun og flesta þjónustu. Góðar flísalagðar svalir fylgja íbúðum á efri hæðum hússins þar sem mögulegt er að setja svalalokun. Við íbúðir á jarðhæð er sérafnotareitur og verönd. Lyfta er í húsinu.
Íbúðirnar eru 79 - 108fm og eru þær fullbúnar með gæða innréttingum og fataskápum frá HTH. Tæki í eldhúsi eru frá AEG, span helluborð með innbyggðri viftu, innbyggð uppþvottavél og ísskápur/frystir. Parket er frá Parka. Baðinnrétting og fataskápar eru í ljósum lit. Eldhúsinnrétting er í hlýlegum viðarlit í bland við ljósa litinn sem er í öðrum innréttingum. Innihurðir eru hvítar. Gólfhiti er í íbúðunum og ofnakerfi í sameign. Dyrasímakerfi með myndavél. Hjóla-/vagnageymsla er við inngang hússins. Gluggar eru ál/tré og eru frá Byko. Húsið er klætt að utan með álklæðningu. Stétt og bílastæði fyrir hreyfihamlaða eru hellulögð og með snjóbræðslulögn. Lagnaleið fyrir hleðslustöðvar er við bílastæði. Við eignina eru djúpgámar fyrir sorp.
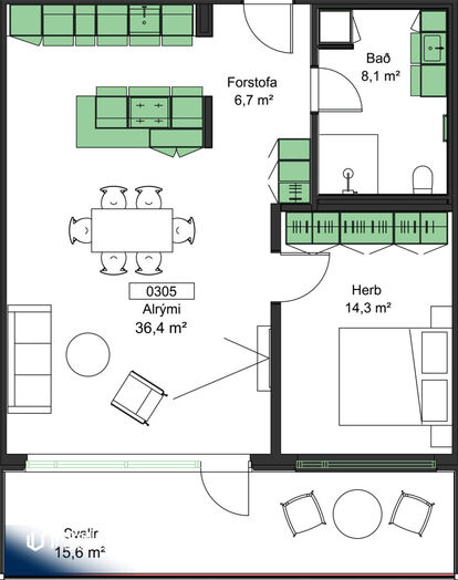
Íbúð 205
Tveggja herbergja 80.3fm íbúð á þriðju hæð, þar af er geymsla 6.2 fm. Alrými eignarinnar er opið og bjart.
Sérstök handbók fylgir húsinu með öllum helstu upplýsingum.
Allar nánari upplýsingar veita sölumenn Stuðlabergs í síma 420-4000 eða á netfangið studlaberg@studlaberg.is
Frábær staðsetning á grónum stað miðsvæðis í Reykjanesbæ þar sem stutt er í verslun og flesta þjónustu. Góðar flísalagðar svalir fylgja íbúðum á efri hæðum hússins þar sem mögulegt er að setja svalalokun. Við íbúðir á jarðhæð er sérafnotareitur og verönd. Lyfta er í húsinu.
Íbúðirnar eru 79 - 108fm og eru þær fullbúnar með gæða innréttingum og fataskápum frá HTH. Tæki í eldhúsi eru frá AEG, span helluborð með innbyggðri viftu, innbyggð uppþvottavél og ísskápur/frystir. Parket er frá Parka. Baðinnrétting og fataskápar eru í ljósum lit. Eldhúsinnrétting er í hlýlegum viðarlit í bland við ljósa litinn sem er í öðrum innréttingum. Innihurðir eru hvítar. Gólfhiti er í íbúðunum og ofnakerfi í sameign. Dyrasímakerfi með myndavél. Hjóla-/vagnageymsla er við inngang hússins. Gluggar eru ál/tré og eru frá Byko. Húsið er klætt að utan með álklæðningu. Stétt og bílastæði fyrir hreyfihamlaða eru hellulögð og með snjóbræðslulögn. Lagnaleið fyrir hleðslustöðvar er við bílastæði. Við eignina eru djúpgámar fyrir sorp.
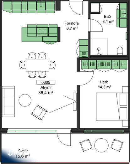
Íbúð 205
Tveggja herbergja 80.3fm íbúð á þriðju hæð, þar af er geymsla 6.2 fm. Alrými eignarinnar er opið og bjart.
Sérstök handbók fylgir húsinu með öllum helstu upplýsingum.
Allar nánari upplýsingar veita sölumenn Stuðlabergs í síma 420-4000 eða á netfangið studlaberg@studlaberg.is