Upplýsingar
Byggt 2023
71,7 m²
3 herb.
1 baðherb.
2 svefnh.
Sérinngangur
Bílastæði
Lyfta
Lýsing
Björt og falleg 3ja herbergja íbúð á 3. hæð í glæsilegri og vandaðri nýbyggingu í rólegu hverfi á Akranesi.
EIGNIN ER TILBÚIN TIL AFHENDINGAR
*** BÓKIÐ SKOÐUN* **
Bergþóra Lárusdóttir löggiltur fasteignasali / s.8953868 / bergthora@domusnova.is
Sjöfn Hilmarsdóttir, lgf., s. 6914591 // sjofn@domusnova.is
Domusnova Borgarnesi hefur til sölu 2ja - 5 herbergja íbúðir við Asparskóga 18 á Akranesi. Þriðji og síðasti hluti byggingar er nú kominn í sölu og eru tilbúnar til afhendingar 16 glæsilegar eignir, stærðir frá 56,8 - 130,1 fm.
Asparskógar 18 er virkilega vandað og vel skipulagt 40 íbúða fjöleignarhús á 2-5 hæðum. Húsið er byggt upp með forsteyptum einingum, einangrað og klætt að utan með ál- og timburklæðningu. Þak er steinsteypt með ásoðnum tjörupappa, einangrað og með PVC dúk. Lyftur eru í tveimur opnum stigahúsum, bílastæði og sérgeymslur er í kjallara hússins sem fylgir völdum eignum hússins. Innan lóðar eru 32 bílastæði og þar af eru 14 hleðslustæði. Íbúðir skilast fullbúnar að innan með vönduðum innréttingum ásamt gólfefnum. Ljós eru innbyggð að hluta.
Ýtið hér til að skoða og sjá nánar um eignir: Heimasíða - Asparskogar.is
Ýtið hér til að skoða skilalýsingu eigna: Skilalýsing - Asparskógar 18
Húsbyggjandi: Ferrum fasteignafélag
Aðalhönnuður: Al-Hönnun ehf.
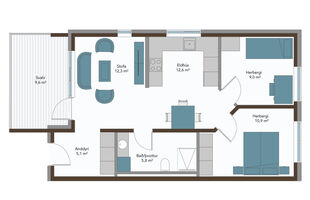
Íbúð 301 er skráð 71.7 fm., þar af geymsla 4,6 fm. Sérinngangur er inn í eignina og merkt bílastæði í bílakjallara. Innan eignar er anddyri, stofa, eldhús, tvö svefnherbergi og baðherbergi þar sem einnig er þvottarými. Svalir eru 9,6 fm. og snúa í suð-vesturátt.
* 3ja herbergja íbúð á 3. hæð með sérinngang
* Stærð 71,7 fm., þar af 4,6 fm. geymsla
* 9,6 fm. svalir í suð-vesturátt
* Sameiginleg hjóla-og vagnageymsla
* Bílastæði B-13 í bílakjallara
Nánari lýsing:
Forstofa: Fataskápur frá GKS. Flísar á gólfi.
Eldhús: Vönduð brún Nobilia innrétting með hvítum efri skápum frá GKS innréttingum. Raftæki frá AEG, veggofn, spanhelluborð, innbyggð uppþvottavél og innbyggður kæliskápur með frysti. Vifta er frá Elica. Eldhúsvaskur og blöndunartæki er svart að lit og er frá Tengi. Harðparket á gólfi.
Stofa: Útgengt út á 9,6 fm. svalir. Harðparket á gólfi.
Svefnherbergi I: Fataskápur frá GKS.Harðparket á gólfi.
Svefnherbergi II: Fataskápur frá GKS. Harðparket á gólfi.
Baðherbergi: Hvít innrétting með brúnni borðplötu og hvítri handlaug. Speglaskápur yfir handlaug. Upphengt salerni með hæglokandi setu, WALK IN sturta og handklæðaofn. Hitastýrð blöndunartækin frá Tengi. Aðstaða fyrir þvottavél og þurrkara. Veggflísar og gegnheilar flísar á gólfi.
Svalir: 9,6 fm í suð-vesturátt.
Geymsla: Sérgeymsla eignar er í kjallara, stærð 4,6 fm. Stúkuð af með möskaveggjum frá Rými Ofnasmiðjunni ehf. Gólf er lakkað.
Bílageymsla: er í kjallara hússins. Aðkoma bifreiða um akstursramp og aðkoma gangandi frá sitthvorum enda stigahúss og um gönguhurð við ramp. Upphituð með lágu hitastigi/frostlaus. Vélræn loftræstingu og sjálfvirkt springler kerfi. Sjálfvirkur hurðaropnari er á hurð. Ein fjarstýring fylgir hverju bílastæði. LED lýsing í lofti
Sameign: Á 1. hæð er sameiginleg hjóla- og vagnageymsla. Rafmagnstöflur og rafmagnsmælar íbúða er staðsett í sameigninni.
Lóð/bílastæði: Lóðin er 3325,0 fm. Innan lóðar eru 32 bílastæði, þar af eru 14 sérmerkt f. rafmagnsbíla og 3 fyrir hreyfihamlaða. Lóðin verður afhent fullbúin í lok byggingartímans. Bílastæði við götu eru malbikuð. Tengibúnaður (ídráttarrör) vegna hleðslu rafbíla er aðgengilegt við bílastæði. Milli húss og bílastæða við götu eru hellulagðar stéttar.
Annað: Ljósleiðari er tengdur inn í húsið og endar í tengikassa hverrar íbúðar. Netdreifikerfi er í íbúðinni. Ljósbreytir við tengikassa kemur frá símafélagi íbúans. Sorpgeymslur eru niðurfelldar á lóð (djúpgámar)
EIGNIN ER TILBÚIN TIL AFHENDINGAR
Nánari upplýsingar veita:
Bergþóra Lárusdóttir löggiltur fasteignasali / s.8953868 / bergthora@domusnova.is
Sjöfn Hilmarsdóttir, löggiltur fasteignasali / s.691 4591 / sjofn@domusnova.is
Skrifstofa Domusnova / s.527-1717 / eignir@domusnova.is
Um skoðunar- og aðgæsluskyldu:
Í lögum um fasteignakaup nr. 40/2002 er kveðið á um ríka skoðunarskyldu kaupenda á fasteignum. DOMUSNOVA fasteignasala bendir væntanlegum kaupendum á að kynna sér vel ástand fasteigna við skoðun og fyrir tilboðsgerð og ef þurfa þykir að leita til sérfræðinga um nánari ástandsskoðun.
Forsendur söluyfirlits:
Söluyfirlit er samið af fasteignasala í samræmi við ákvæði laga nr. 70/2015. Þær upplýsingar sem fram koma í söluyfirliti þessu eru sóttar í opinberar skrár, til seljanda sjálfs og eftir atvikum til húsfélags. Seljandi veitir upplýsingar um eign í samræmi við upplýsingaskyldu laga um fasteignakaup nr. 40/2002, og ábyrgist að þær séu réttar. Fasteignasali sannreynir að þær upplýsingar séu réttar með sjónskoðun á eigninni. Fasteignasali getur ekki fullyrt um ástand og eiginleika þeirra hluta fasteigna sem ekki eru aðgengilegir og sjást ekki berum augum, t.d. lagnir, dren, skólp og þak. Það sama á við um staðhæfingar seljanda eignar um viðhald og einstaka framkvæmdir.
Gjöld sem kaupandi þarf að standa straum af vegna kaupanna:Stimpilgjald af kaupsamningi sem er hlutfall af fasteignamati. Stimpilgjald er 0,8% fyrir einstaklinga (0,4% við fyrstu kaup) og 1,6% fyrir lögaðila. Þinglýsingargjald af kaupsamningi, veðskuldabréfum, veðleyfum o.fl. Þinglýsingargjald er kr. 2.700,- fyrir hvert skjal. Lántökugjald lánastofnunar. Um lántökugjald vísast í gjaldskrá viðkomandi lánveitanda. Umsýsluþóknun fasteignasölu skv. gjaldskrá. Ef um nýbyggingu er að ræða greiðir kaupandi skipulagsgjald, 0,3% af brunabótamáti, þegar það er lagt á.
EIGNIN ER TILBÚIN TIL AFHENDINGAR
*** BÓKIÐ SKOÐUN* **
Bergþóra Lárusdóttir löggiltur fasteignasali / s.8953868 / bergthora@domusnova.is
Sjöfn Hilmarsdóttir, lgf., s. 6914591 // sjofn@domusnova.is
Domusnova Borgarnesi hefur til sölu 2ja - 5 herbergja íbúðir við Asparskóga 18 á Akranesi. Þriðji og síðasti hluti byggingar er nú kominn í sölu og eru tilbúnar til afhendingar 16 glæsilegar eignir, stærðir frá 56,8 - 130,1 fm.
Asparskógar 18 er virkilega vandað og vel skipulagt 40 íbúða fjöleignarhús á 2-5 hæðum. Húsið er byggt upp með forsteyptum einingum, einangrað og klætt að utan með ál- og timburklæðningu. Þak er steinsteypt með ásoðnum tjörupappa, einangrað og með PVC dúk. Lyftur eru í tveimur opnum stigahúsum, bílastæði og sérgeymslur er í kjallara hússins sem fylgir völdum eignum hússins. Innan lóðar eru 32 bílastæði og þar af eru 14 hleðslustæði. Íbúðir skilast fullbúnar að innan með vönduðum innréttingum ásamt gólfefnum. Ljós eru innbyggð að hluta.
Ýtið hér til að skoða og sjá nánar um eignir: Heimasíða - Asparskogar.is
Ýtið hér til að skoða skilalýsingu eigna: Skilalýsing - Asparskógar 18
Húsbyggjandi: Ferrum fasteignafélag
Aðalhönnuður: Al-Hönnun ehf.
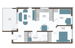
Íbúð 301 er skráð 71.7 fm., þar af geymsla 4,6 fm. Sérinngangur er inn í eignina og merkt bílastæði í bílakjallara. Innan eignar er anddyri, stofa, eldhús, tvö svefnherbergi og baðherbergi þar sem einnig er þvottarými. Svalir eru 9,6 fm. og snúa í suð-vesturátt.
* 3ja herbergja íbúð á 3. hæð með sérinngang
* Stærð 71,7 fm., þar af 4,6 fm. geymsla
* 9,6 fm. svalir í suð-vesturátt
* Sameiginleg hjóla-og vagnageymsla
* Bílastæði B-13 í bílakjallara
Nánari lýsing:
Forstofa: Fataskápur frá GKS. Flísar á gólfi.
Eldhús: Vönduð brún Nobilia innrétting með hvítum efri skápum frá GKS innréttingum. Raftæki frá AEG, veggofn, spanhelluborð, innbyggð uppþvottavél og innbyggður kæliskápur með frysti. Vifta er frá Elica. Eldhúsvaskur og blöndunartæki er svart að lit og er frá Tengi. Harðparket á gólfi.
Stofa: Útgengt út á 9,6 fm. svalir. Harðparket á gólfi.
Svefnherbergi I: Fataskápur frá GKS.Harðparket á gólfi.
Svefnherbergi II: Fataskápur frá GKS. Harðparket á gólfi.
Baðherbergi: Hvít innrétting með brúnni borðplötu og hvítri handlaug. Speglaskápur yfir handlaug. Upphengt salerni með hæglokandi setu, WALK IN sturta og handklæðaofn. Hitastýrð blöndunartækin frá Tengi. Aðstaða fyrir þvottavél og þurrkara. Veggflísar og gegnheilar flísar á gólfi.
Svalir: 9,6 fm í suð-vesturátt.
Geymsla: Sérgeymsla eignar er í kjallara, stærð 4,6 fm. Stúkuð af með möskaveggjum frá Rými Ofnasmiðjunni ehf. Gólf er lakkað.
Bílageymsla: er í kjallara hússins. Aðkoma bifreiða um akstursramp og aðkoma gangandi frá sitthvorum enda stigahúss og um gönguhurð við ramp. Upphituð með lágu hitastigi/frostlaus. Vélræn loftræstingu og sjálfvirkt springler kerfi. Sjálfvirkur hurðaropnari er á hurð. Ein fjarstýring fylgir hverju bílastæði. LED lýsing í lofti
Sameign: Á 1. hæð er sameiginleg hjóla- og vagnageymsla. Rafmagnstöflur og rafmagnsmælar íbúða er staðsett í sameigninni.
Lóð/bílastæði: Lóðin er 3325,0 fm. Innan lóðar eru 32 bílastæði, þar af eru 14 sérmerkt f. rafmagnsbíla og 3 fyrir hreyfihamlaða. Lóðin verður afhent fullbúin í lok byggingartímans. Bílastæði við götu eru malbikuð. Tengibúnaður (ídráttarrör) vegna hleðslu rafbíla er aðgengilegt við bílastæði. Milli húss og bílastæða við götu eru hellulagðar stéttar.
Annað: Ljósleiðari er tengdur inn í húsið og endar í tengikassa hverrar íbúðar. Netdreifikerfi er í íbúðinni. Ljósbreytir við tengikassa kemur frá símafélagi íbúans. Sorpgeymslur eru niðurfelldar á lóð (djúpgámar)
EIGNIN ER TILBÚIN TIL AFHENDINGAR
Nánari upplýsingar veita:
Bergþóra Lárusdóttir löggiltur fasteignasali / s.8953868 / bergthora@domusnova.is
Sjöfn Hilmarsdóttir, löggiltur fasteignasali / s.691 4591 / sjofn@domusnova.is
Skrifstofa Domusnova / s.527-1717 / eignir@domusnova.is
Um skoðunar- og aðgæsluskyldu:
Í lögum um fasteignakaup nr. 40/2002 er kveðið á um ríka skoðunarskyldu kaupenda á fasteignum. DOMUSNOVA fasteignasala bendir væntanlegum kaupendum á að kynna sér vel ástand fasteigna við skoðun og fyrir tilboðsgerð og ef þurfa þykir að leita til sérfræðinga um nánari ástandsskoðun.
Forsendur söluyfirlits:
Söluyfirlit er samið af fasteignasala í samræmi við ákvæði laga nr. 70/2015. Þær upplýsingar sem fram koma í söluyfirliti þessu eru sóttar í opinberar skrár, til seljanda sjálfs og eftir atvikum til húsfélags. Seljandi veitir upplýsingar um eign í samræmi við upplýsingaskyldu laga um fasteignakaup nr. 40/2002, og ábyrgist að þær séu réttar. Fasteignasali sannreynir að þær upplýsingar séu réttar með sjónskoðun á eigninni. Fasteignasali getur ekki fullyrt um ástand og eiginleika þeirra hluta fasteigna sem ekki eru aðgengilegir og sjást ekki berum augum, t.d. lagnir, dren, skólp og þak. Það sama á við um staðhæfingar seljanda eignar um viðhald og einstaka framkvæmdir.
Gjöld sem kaupandi þarf að standa straum af vegna kaupanna: