Löggiltir fasteignasalar innan Félags fasteignasala:
Sverrir Kristinsson
Kjartan Hallgeirsson
Guðlaugur Ingi Guðlaugsson
Daði Hafþórsson
Gunnar Helgi Einarsson
Gunnar Bergmann Jónsson
Lilja Guðmundsdóttir
Jenný Sandra Gunnarsdóttir
Kári Sighvatsson
Vista
svg

92

svg

81  Skoðendur

svg

Skráð  13. jan. 2026

fjölbýlishús

Svöluás 1

221 Hafnarfjörður

69.900.000 kr.

782.755 þ.kr./m2
Fasteignanúmer

F2254263

Fasteignamat

61.600.000 kr.

Brunabótamat

48.000.000 kr.

Áhvílandi

0 kr.

Arion banki – Reikna lán
Upplýsingar
Verðsaga
svg
Byggt 2002
svg
89,3 m²
svg
3 herb.
svg
1 baðherb.
svg
2 svefnh.
svg
Þvottahús

Lýsing

Eignamiðlun kynnir:

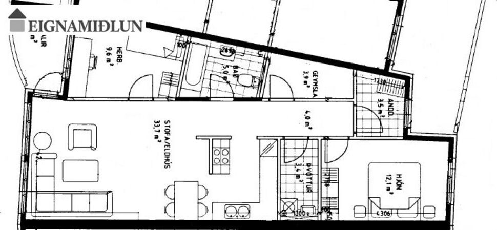
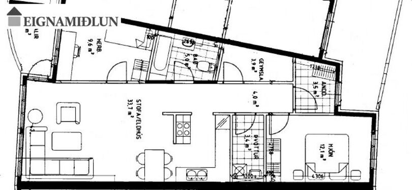
Eignamiðlun og Ólafur H. Guðgeirsson, MBA, lgfs., kynna vel skipulagða þriggja herbergja íbúð á annarri hæð með sérinngangi, í fjölskylduvænu hverfi í Áslandinu í Hafnarfirði, þar sem örstutt er í skóla, leikskóla og fallegar gönguleiðir. Rúmgóð stofa með góðum svölum, hálfopið eldhús, rúmgott hjónaherbergi, barnaherbergi, þvottahús, geymsla innan íbúðar og önnur í kjallara, forstofa og sér inngangur af svalagangi. Eignin er skráð samkvæmt fasteignamati 89,3 fermetrar, sem skiptist í 85,7 fermetra íbúð á annarri hæð og 3,7 fermetra geymslu í kjallara.

Allar upplýsingar veitir Ólafur H. Guðgeirsson, MBA, lgfs., í síma 663-2508 eða olafur@eignamidlun.is sem einnig sýnir eignina.

Aðkoman að húsinu er frá bílastæði baka til, þaðan sem er gengið í gegnum opinn gang í gegnum húsið að stigahúsi og upp á opinn svalagang. Aðeins fjórar íbúðir eru á hæðinni, og er þessi í innri enda þannig að það er afar lítill umgangur. Engir gluggar íbúðarinnar snúa að svalaganginum.
Komið er inn í rúmgóða flísalagða forstofu þar sem eru fatahengi og skógrind en nægt pláss fyrir fataskáp. Af forstofu tekur við gangur, þar sem hjónaherbergi er á vinstri hönd, næst þvottahús og eldhús, en á hægri hönd eru geymsla, baðherbergi og aukaherbergi. Gangur er opinn í bjarta og rúmgóða stofu sem tengist eldhúsi. Á gólfum í stofu, herbergjum og eldhúsi er eikarparket, fataskápur á heilum vegg í hjónaherbergi. Eldhús er opið bæði að gangi og stofu, með stórri innréttingu og góðu vinnu- og skápaplássi. Stofan er rúmgóð og björt með stórum glugga til vesturs og dyrum út á skjólgóðar svalir. Til hægri úr gangi íbúðarinnar er geymsla sem myndi nýtast vel sem fataherbergi, þar sem í kjallara er einnig góð geymsla; baðherbergi, og rúmgott aukaherbergi með glugga að svölum. Baðherbergið er flísalagt, loft og veggir, með baðkari með sturtu og gleri, innréttingu, skáp og ljósi yfir spegli.
Flísar eru á gólfum í þvottahúsi og geymslu/fataherbergi. Geymsla í kjallara er með lökkuðu gólfi og hillum, hjóla- og vagnageymsla í sameign. Húsið er einangrað og klætt að utan með láréttu báruáli og lítur vel út. Búið er að koma fyrir sameiginlegum hleðslustöðvum á bílastæði.

Hér er um að ræða rúmgóða vel skipulagða þriggja herbergja íbúð á fjölskylduvænum stað, stutt frá skóla.

Kostnaður kaupanda af kaupum:
1. Stimpilgjald af kaupsamningi er fyrir einstaklinga 0,8% af heildarfasteignamati eignar. Sé um fyrstu kaup að ræða er stimpilgjald af kaupsamningi 0,4% af heildarfasteignamati.
2. Stimpilgjald af kaupsamningi fyrir lögaðila er 1,6% af heildarfasteignamati eignar.
3. Þinglýsingargjald af kaupsamningi, afsali, veðskuldabréfi, veðleyfi og mögulega fleiri skjölum - kr. 2.500 af hverju skjali.
4. Lántökugjald lánastofnunar - samanber gjaldskrá viðkomandi lánastofnunar.
5. Umsýslugjald til fasteignasölu samkvæmt kaupendasamningi.
Söluyfirlit er samið af fasteignasala í samræmi við ákvæði laga nr. 70/2015. Þær upplýsingar sem fram koma í söluyfirliti þessu eru sóttar í opinberar skrár, til seljanda sjálfs og eftir atvikum til húsfélags. Seljandi veitir upplýsingar um eign í samræmi við upplýsingaskyldu seljanda samanber 26.gr. laga nr.40/2002 um fasteignakaup og 25.gr. laga nr.26/1994 um fjöleignarhús. Eignamiðlun fasteignasala bendir fasteignakaupendum á ríka skoðunarskyldu kaupenda sem kveðið er á í lögum um fasteignakaup nr.40/2002. Kaupanda er bent á að nýta sér þjónustu fagmanna við skoðun fasteigna, en mælt er með því að kaupendur fasteigna fái óháðan fagaðila til að framkvæma formlega ástandsskoðun á eignum sem gert er tilboð í.
Eignamiðlun fasteignasala | Grensásvegur 11 | 108 Reykjavík | Sími 588 9090 | www.eignamidlun.is

 

***
Ábyrg þjónusta í áratugi. Eignamiðlun var stofnuð 1957 og er elsta starfandi fasteignasala á Íslandi. Reynsla, heiðarleiki og þekking á fasteignamarkaðnum eru grunnur að farsælum viðskiptum. 

Eignamiðlun Grensásvegi 11, 108 Reykjavík - Opið frá kl. 9-17 mánudaga til fimmtudaga og 9-16 á föstudögum.

Heimasíða Eignamiðlunar

Eignamiðlun á Facebook

Eignamiðlun

Eignamiðlun

Grensásvegi 11, 108 Reykjavík
Ár
Fasteignamat
Kaupverð
Stærð
Fermetraverð
18. mar. 2016
25.150.000 kr.
28.800.000 kr.
89.3 m²
322.508 kr.
Byggt á upplýsingum úr Þjóðskrá Íslands frá 2006-2026
Eignamiðlun

Eignamiðlun

Grensásvegi 11, 108 Reykjavík