Löggiltir fasteignasalar innan Félags fasteignasala:
Sverrir Kristinsson
Kjartan Hallgeirsson
Guðlaugur Ingi Guðlaugsson
Daði Hafþórsson
Gunnar Helgi Einarsson
Gunnar Bergmann Jónsson
Lilja Guðmundsdóttir
Jenný Sandra Gunnarsdóttir
Kári Sighvatsson
Vista
fjölbýlishús

Arkarvogur 1 - íbúð 303

104 Reykjavík

77.900.000 kr.

971.322 þ.kr./m2
Fasteignanúmer

F2532777

Fasteignamat

65.950.000 kr.

Brunabótamat

0 kr.

Áhvílandi

0 kr.

Arion banki – Reikna lán
Upplýsingar
svg
Byggt 2024
svg
80,2 m²
svg
3 herb.
svg
1 baðherb.
svg
2 svefnh.
svg
Þvottahús
svg
Útsýni
svg
Sameiginl. inngangur
svg
Hjólastólaaðgengi
svg
Bílastæði
svg
Lyfta
svg
Laus strax

Lýsing

Eignamiðlun kynnir:

ÖXAR20 er ný fjármögnunarleið sem getur hentað vel til að binda minna eigið fé í húseign, lækka lántöku, lækka greiðslubyrði eða auka möguleika á greiðslumati hjá fjármálastofnun. Sjá nánar inná www.oxar20.is - Sölumaður veitir frekari upplýsingar.

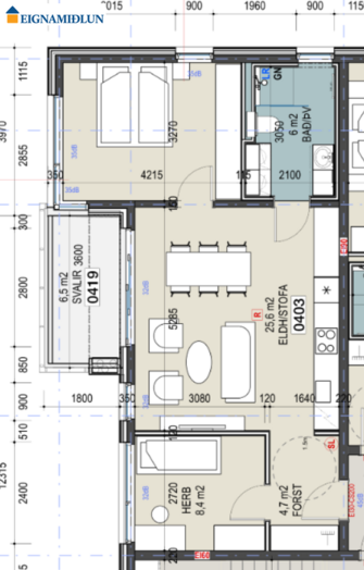
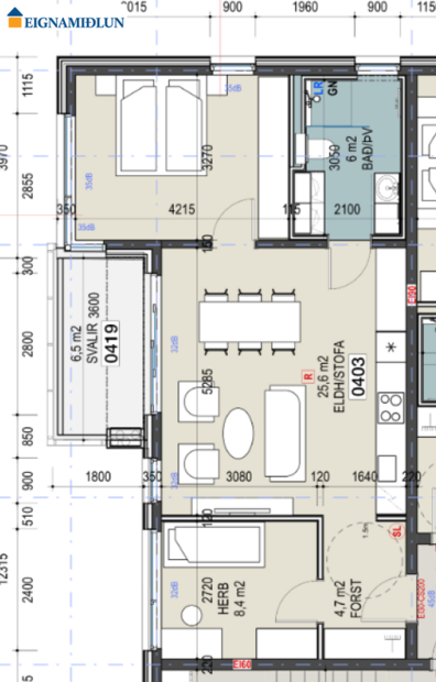
Íbúð merkt 303 - Þriggja herbergja 80,2 fm íbúð á þriðju hæð með tveim svefnherbergjum og rúmgóðum svölum. Rúmgott svefnherbergi og eitt minna barnaherbergi, baðherbergi, eldhús opið inn í borðstofu og stofu. Bílastæði í bílakjallara. Fallegt útsýni af svölum. Allar íbúðir eru með sér loftræstikerfi sem stuðlar að heilbrigði húss og íbúa, auk orkusparnaðar sem skilar allt að 80% endurnýtingu á varma. Vönduð innrétting fyrir þvottavél og þurrkara á baðherbergi. Svalir með rennihurð.

Nánari upplýsingar veitir: Gunnar Bergmann löggiltur fasteignasali í síma 839-1600 eða gunnarbergmann@eignamidlun.is
Smellið hér fyrir söluyfirlit
Smellið hér fyrir heimasíðu verkefnisins og skilalýsingu

Nánari lýsing:
Komið er inn forstofu með fataskápum.
Baðherbergi: Baðherbergi með sturtuklefa. Handlaug, handklæðaofn og upphengt salerni. Flísar á gólfum og veggjum. Aðstaða fyrir þvottavél og þurrkara inn á baðherbergi.
Eldhús: Eldhúsinnrétting með góðu skápaplássi frá Axis. Ofn í vinnuhæð, góð vinnuaðstaða.
Svefnherbergi: Rúmgott með góðu skápaplássi. Barnaherbergi með skápum.
Stofa/ borðstofa: Rúmgóð setustofa og borðstofa opið inn í eldhús. Gengið er út á svalir út frá stofu, stór rennihurð.
Bílakjallari og geymsla: Bílastæði í lokuðum bílakjallara fylgir íbúðinni ásamt 9,8 fm geymslu.

Íbúðirnar verða afhentar án gólfefna, nema á votrýmum verða flísalögð. Eldhúsinnréttingar eru sérsmíðuð af vandaðri gerð frá Axis.

Gjöld sem kaupandi þarf að standa straum af vegna kaupanna: 
1. Stimpilgjald af kaupsamningi - 0,8% af heildarfasteignamati. (0,4% ef um er að ræða fyrstu eign) 
2. Þinglýsingargjald af kaupsamningi, veðskuldabréfi, mögulegu veðleyfi o.fl. - kr. 2.700 af hverju skjali. 
3. Lántökugjald lánastofnunar. Nánari upplýsingar á t.d. heimasíðu lánastofnana. 
4. Umsýslugjald til fasteignasölu sbr kauptilboði.

Eignamiðlun ehf. - Grensásvegur 11, 108 Reykjavík - gunnarbergmann@eignamidlun.is - Gunnar Bergmann Jónsson löggiltur fasteignasali.

***
Ábyrg þjónusta í áratugi. Eignamiðlun var stofnuð 1957 og er elsta starfandi fasteignasala á Íslandi. Reynsla, heiðarleiki og þekking á fasteignamarkaðnum eru grunnur að farsælum viðskiptum. 

Eignamiðlun Grensásvegi 11, 108 Reykjavík - Opið frá kl. 9-17 mánudaga til fimmtudaga og 9-16 á föstudögum.

Heimasíða Eignamiðlunar

Eignamiðlun á Facebook

img
Gunnar Bergmann Jónsson
Lögg.fasteignasali innan félags fasteignasala
Eignamiðlun
Grensásvegi 11, 108 Reykjavík
Eignamiðlun

Eignamiðlun

Grensásvegi 11, 108 Reykjavík
img

Gunnar Bergmann Jónsson

Grensásvegi 11, 108 Reykjavík
Eignamiðlun

Eignamiðlun

Grensásvegi 11, 108 Reykjavík

Gunnar Bergmann Jónsson

Grensásvegi 11, 108 Reykjavík