Löggiltir fasteignasalar innan Félags fasteignasala:
Óskar Rúnar Harðarson
Jason Guðmundsson
Þröstur Þórhallsson
Ólafur Finnbogason
Kjartan Ísak Guðmundsson
Gústaf Adolf Björnsson
Viðar Böðvarsson
Rakel Viðarsdóttir
Vala Georgsdóttir
Ragnheiður Pétursdóttir
Böðvar Þ. Eggertsson
Vista
fjölbýlishús

Hringhamar 31 (404)

221 Hafnarfjörður

83.900.000 kr.

769.019 þ.kr./m2
Fasteignanúmer

F2527134

Fasteignamat

2 kr.

Brunabótamat

1 kr.

Áhvílandi

0 kr.

Arion banki – Reikna lán
Upplýsingar
svg
Byggt 2024
svg
109,1 m²
svg
4 herb.
svg
1 baðherb.
svg
3 svefnh.
svg
Sameiginl. inngangur
svg
Bílastæði
svg
Lyfta
Opið hús: 17. janúar 2026 kl. 17:00 til 17:30

Lýsing

Miklaborg kynnir: Glæsileg svansvottuð fjölbýlishús við Hringhamar 31-33 með 2ja til 4ra herbergja íbúðum á góðum stað í hinu nýja Hamraneshverfi í Hafnarfirði. Svansvottun gerir m.a. auknar kröfur um birtuskilyrði, loftræstingu og hljóðvist.

- Sérmerkt stæði í bílakjallara fylgir flestum íbúðum. Möguleiki á rafbílahleðslu er við hvert stæði.

- Vandaðar innréttingar frá Axis og tæki frá Ormsson. Allar innréttingar og skápar ná upp í loft.

- Sérstakt loftræstikerfi í öllum íbúðum.

- Íbúðir afhendast fullbúnar en án gólfefna.

- Tilbúið til afhendingar

Bókaðu skoðun - Sýnum samdægurs

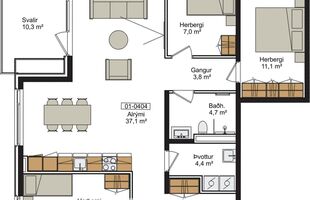
Íbúð 404 er vel skipulögð 4ra herbergja 109,1 fm íbúð á 4. hæð með svölum í vestur.

Nánari lýsing:

Eignin skiptist í andyri með fataskáp. Inn af anddyri er á aðra hönd barnaherbergi með fataskáp og baðherbergi með sturtu og vandaðri innréttingu. Sér Þvottahús er innan íbúðar. Eldhús er í opnu alrými sem samanstendur af borðstofu og stofu með útgengi út á svalir í vestur. Sér merkt bílastæði í bílakjallara fylgir merkt B09

Sjá nánar á heimasíðu verkefnis hringhamar.is

Hamraneshverfi er vel staðsett hverfi í mikilli uppbyggingu með skóla, leiksskóla og falleg útivistarsvæði í í næsta nágreni.

Byggingaraðili er Mótx ehf sem er traustur verktaki og hefur starfað óslitið frá stofnun árið 2005. Mótx hefur hlotið viðurkenningar, bæði fyrir hönnun bygginga og frágang lóða á nýbyggingarsvæðum.

Nánari upplýsingar veita

Sæþór Ólafsson löggiltur fasteignasali í síma 855-5550 eða saethor@domusnova.is

Óskar Sæmann Axelsson löggiltur fasteignasali í síma 691-2312 eða osa@miklaborg.is

Stefán Jóhann Stefánsson löggitlur fasteignasali í síma 695-2634 eða stefan@miklaborg.is

Miklaborg fasteignasala

Miklaborg fasteignasala

Lágmúli 4, 108 Reykjavík
Miklaborg fasteignasala

Miklaborg fasteignasala

Lágmúli 4, 108 Reykjavík