Löggiltir fasteignasalar innan Félags fasteignasala:
Ástþór Reynir Guðmundsson
Vigdís R. S. Helgadóttir
Guðbjörg Helga Jóhannesdóttir
Gylfi Jens Gylfason
Sigrún Matthea Sigvaldadóttir
Sveinn Gíslason
Páll Guðmundsson
Þórarinn Arnar Sævarsson
Berglind Hólm Birgisdóttir
Þorsteinn Gíslason
Guðrún Lilja Tryggvadóttir
Brynjar Ingólfsson
Guðný Þorsteinsdóttir
Bjarni Blöndal
Þorsteinn Ólafs
Þórdís Björk Davíðsdóttir
Jóhann Kristinn Jóhannesson
Bjarný Björg Arnórsdóttir
Salvör Þóra Davíðsdóttir
Magga Sigríður Gísladóttir
Upplýsingar
Byggt 2024
117 m²
4 herb.
1 baðherb.
3 svefnh.
Sameiginl. inngangur
Bílastæði
Lyfta
Lýsing
SÝNUM DAGLEGA!!
RE/MAX fasteignasala, Guðlaug Jóna fasteignasali s. 661-2363 eða gulla@remax.is og Garðar Hólm fasteignasali s. 899-8811 eða gardar@remax.is kynna:
Til sölu nýjar íbúðir við Kleppsmýrarveg 6, Dugguvog 1 og Arkarvog 1 í Reykjavík. 51 íbúð eru í húsunum frá 62,8 fm – 141,8 fm. Verð frá 67,9 - 149,9 mkr.
Allar íbúðir eru með sér loftræstikerfi sem stuðlar að heilbrigði húss og íbúa, auk orkusparnaðar sem skilar allt að 80% endurnýting á varma. Svalir með rennihurð. Sérmerkt bílastæði í bílakjallara fylgja hverri íbúð. Eignirnar eru lausar til afhendingar.
Við hönnun hússins er tekið mið af því að lágmarka viðhald. Húsið er einingahús frá BM Vallá og það því steypt við bestu skilyrði og gluggar eru úr ál-tré.
Smelltu hér fyrir heimasíðu verkefnisins og skilalýsingu.
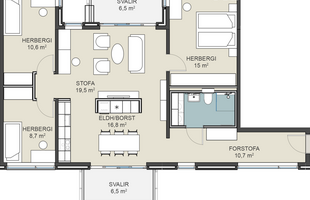
Íbúð 504 er glæsileg 4ra herbergja íbúð á 5. hæð með stæði í bílakjallara. Samkvæmt Þjóðskrá Íslands er eignin 117 fm, þar af er geymsla í kjallara 12,6 fm. Útgengt á tvennar 6,5 fm svalir um góða rennihurð.
Einstaklega vönduð og falleg 4ra herbergja íbúð, merkt: 504 (Hæð 5). Íbúðin er fullbúin án gólfefna að undanskildum votrýmum, sem verða flísalögð. Sérstæði í bílageymslu fylgir með. Húsið er úr steyptum eininum og málað að utan. Loftræstikerfi með varmaskipti er í íbúðinni sem sér til þess að alltaf séu góð loftgæði, kostnaður við kyndingu minnkar og líkur á myglu verða mun minni. Allar innréttingar eru frá Axis.
Íbúð: 0504
Hæð: 5
Tegund: 4ra herbergja
Stærð: 117 m²
Geymsla: 12,6 m²
Stæði í bílageymslu: Merkt B28
Nánari lýsing:
Forstofa: Með góðum fataskáp.
Eldhús: Falleg innrétting frá Axis með helluborði, bakarofni og gufugleypi. Eyja er í eldhúsi og er eldavélin þar.
Stofa/borðstofa: Í samliggjandi rými með eldhúsi. Opið og bjart rými. Útgengt út á tvennar svalir um góða rennihurð.
Hjónaherbergi: Rúmgott með góðum fataskápum.
Herbergi II og III: Rúmgóð með góðum fataskápum.
Baðherbergi: Flísar á gólfi og að hluta til veggjum, upphengt salerni, sturta með glerskilrúmi, innrétting undir og við handlaug, handklæðaofn. Innrétting fyrir þvottavél og þurrkara með skúffum undir og skápum yfir vélum. Flísar á gólfum.
Geymsla: Er í sameign í kjallara 12,6 fm.
Sameign: Í sameign í kjallara er hjóla- og vagnageymsla.
Bílastæði: Bílastæði í lokuðum bílakjallara merk B28.
Helstu eiginleikar:
Loftræstikerfi með varmaskipti
Rennihurðar út á svalir
Gólfsíðir gluggar við svalir
Stæði í bílageymslu
Mikið skápapláss
Innréttingar frá Axis
Húsið:
Kleppsmýrarvegur 6, Dugguvogur 1 og Arkarvogur 1 er glæsilegt og vandað fjölbýlishús byggt af Öxar ehf.
Húsið er á 6 hæðum auk bílakjallara, alls 51 íbúðir. Húsið er gert úr forsteyptum einingum frá BM Vallá sem eru framleiddar við. úrvals skilyrði. Gluggar eru álklæddir viðargluggar með tvöföldu gleri.
*Myndirnar sem birtast á auglýsingu íbúðarinnar eru ekki endilega myndir af íbúðinni sjálfri heldur einungis til þess að gefa sýn á útlit eignanna þegar þær eru tilbúnar.
Nánari upplýsingar veita:
Garðar Hólm löggiltur fasteignasali í síma 899-8811 / gardar@remax.is
Guðlaug Jóna löggiltur fasteignasali í síma 661-2363 / gulla@remax.is
Bjarný Björg löggiltur fasteignasali í síma 694-2526 / bjarny@remax.is
RE/MAX fasteignasala, Guðlaug Jóna fasteignasali s. 661-2363 eða gulla@remax.is og Garðar Hólm fasteignasali s. 899-8811 eða gardar@remax.is kynna:
Til sölu nýjar íbúðir við Kleppsmýrarveg 6, Dugguvog 1 og Arkarvog 1 í Reykjavík. 51 íbúð eru í húsunum frá 62,8 fm – 141,8 fm. Verð frá 67,9 - 149,9 mkr.
Allar íbúðir eru með sér loftræstikerfi sem stuðlar að heilbrigði húss og íbúa, auk orkusparnaðar sem skilar allt að 80% endurnýting á varma. Svalir með rennihurð. Sérmerkt bílastæði í bílakjallara fylgja hverri íbúð. Eignirnar eru lausar til afhendingar.
Við hönnun hússins er tekið mið af því að lágmarka viðhald. Húsið er einingahús frá BM Vallá og það því steypt við bestu skilyrði og gluggar eru úr ál-tré.
Smelltu hér fyrir heimasíðu verkefnisins og skilalýsingu.
Íbúð 504 er glæsileg 4ra herbergja íbúð á 5. hæð með stæði í bílakjallara. Samkvæmt Þjóðskrá Íslands er eignin 117 fm, þar af er geymsla í kjallara 12,6 fm. Útgengt á tvennar 6,5 fm svalir um góða rennihurð.
Einstaklega vönduð og falleg 4ra herbergja íbúð, merkt: 504 (Hæð 5). Íbúðin er fullbúin án gólfefna að undanskildum votrýmum, sem verða flísalögð. Sérstæði í bílageymslu fylgir með. Húsið er úr steyptum eininum og málað að utan. Loftræstikerfi með varmaskipti er í íbúðinni sem sér til þess að alltaf séu góð loftgæði, kostnaður við kyndingu minnkar og líkur á myglu verða mun minni. Allar innréttingar eru frá Axis.
Íbúð: 0504
Hæð: 5
Tegund: 4ra herbergja
Stærð: 117 m²
Geymsla: 12,6 m²
Stæði í bílageymslu: Merkt B28
Nánari lýsing:
Forstofa: Með góðum fataskáp.
Eldhús: Falleg innrétting frá Axis með helluborði, bakarofni og gufugleypi. Eyja er í eldhúsi og er eldavélin þar.
Stofa/borðstofa: Í samliggjandi rými með eldhúsi. Opið og bjart rými. Útgengt út á tvennar svalir um góða rennihurð.
Hjónaherbergi: Rúmgott með góðum fataskápum.
Herbergi II og III: Rúmgóð með góðum fataskápum.
Baðherbergi: Flísar á gólfi og að hluta til veggjum, upphengt salerni, sturta með glerskilrúmi, innrétting undir og við handlaug, handklæðaofn. Innrétting fyrir þvottavél og þurrkara með skúffum undir og skápum yfir vélum. Flísar á gólfum.
Geymsla: Er í sameign í kjallara 12,6 fm.
Sameign: Í sameign í kjallara er hjóla- og vagnageymsla.
Bílastæði: Bílastæði í lokuðum bílakjallara merk B28.
Helstu eiginleikar:
Loftræstikerfi með varmaskipti
Rennihurðar út á svalir
Gólfsíðir gluggar við svalir
Stæði í bílageymslu
Mikið skápapláss
Innréttingar frá Axis
Húsið:
Kleppsmýrarvegur 6, Dugguvogur 1 og Arkarvogur 1 er glæsilegt og vandað fjölbýlishús byggt af Öxar ehf.
Húsið er á 6 hæðum auk bílakjallara, alls 51 íbúðir. Húsið er gert úr forsteyptum einingum frá BM Vallá sem eru framleiddar við. úrvals skilyrði. Gluggar eru álklæddir viðargluggar með tvöföldu gleri.
*Myndirnar sem birtast á auglýsingu íbúðarinnar eru ekki endilega myndir af íbúðinni sjálfri heldur einungis til þess að gefa sýn á útlit eignanna þegar þær eru tilbúnar.
Nánari upplýsingar veita:
Garðar Hólm löggiltur fasteignasali í síma 899-8811 / gardar@remax.is
Guðlaug Jóna löggiltur fasteignasali í síma 661-2363 / gulla@remax.is
Bjarný Björg löggiltur fasteignasali í síma 694-2526 / bjarny@remax.is