Upplýsingar
Verðsaga
Byggt 2008
119,6 m²
4 herb.
1 baðherb.
3 svefnh.
Þvottahús
Sérinngangur
Lýsing
BJÖRT OG FALLEG 4RA HERB. 120 FM. ÍBÚÐ Á 2. HÆÐ MEÐ SÉR INNGANGI OG RÚMGÓÐUM SVÖLUM TIL SUÐURS Á ÞESSUM VINSÆLA STAÐ Í GRAFARVOGI.
Samkvæmt skráningu Þjóðskrár Íslands er birt flatarmál eignarinnar 119,6 fm. - Fyrirhugað fasteignamat 2026 kr. 82.700.000,-
Um er að ræða fallega og rúmgóða íbúð á 2. hæð í fjölbýlishúsi byggðu árið 2008 með góðum innréttingum.
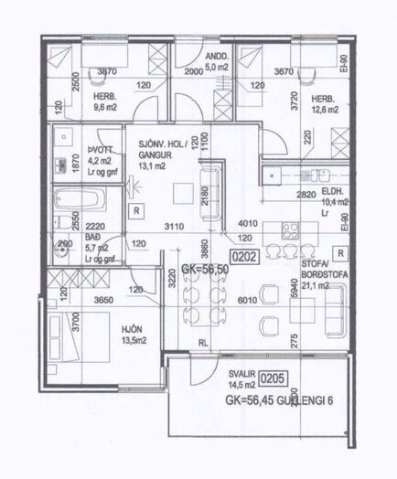
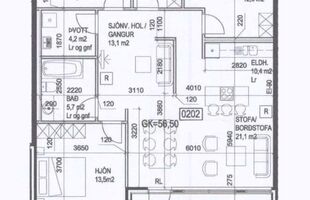
Íbúðin er skráð 109 fm. og sér geymsla 9,6 fm. Svalir eru skráðar 14,5 fm. ekki inn í fermetratölu.
Gengið er inn í rúmgóða forstofu, inn af henni er alrými sem er opið í sjónvarpshol og stofuna, eldhúsið er opið í stofuna. Til vinstri við inngang er eitt stórt herbergi, en til hægri er annað herbergi, þvottahúsið og baðherbergið eru þar á milli og hjónaherbergið í enda. Lár veggur aðskilur sjónvarpsholið og stofuna. Gengið er út á sólríkar svalir úr stofunni. Rúmgóð geymsla fylgir íbúðinni á jarðhæð, sem og sameiginleg hjóla- og vagnageymsla.
Forstofa: Mjög rúmgóð með fataskáp, forstofuhurð með gleri og flísar á gólfi.
Stofa/sjónvarpshol: Sjónvarpsholið er við innganginn, bjart og gott alrými með stofu og borðstofu sem er opið í eldhúsið, parket á gólfum. Útgangur út á rúmgóðar svalir úr stofu.
Eldhús: Opið í stofuna, falleg innrétting með eldunareyju, gott skápa- og borðpláss, keramik helluborð og parket á gólfi.
Baðherbergi: Rúmgott og flísalagt, góðar innréttingar, baðkar með sturtu hengi, upphengt salerni og handklæðaofn.
Svefnherbergin: Parket á öllum gólfum og rúmgóð herbergi með góðu skápaplássi.
Þvottahús: Gott aðgengi innan íbúðar, skápar og borðpláss, flísar á gólfi.
Geymsla: Sér 9,6 fm. geymsla fylgir á jarðhæð.
Sameign: Snyrtileg sameign, sameiginleg vagna- og hjólageymsla. Lóðin er sameiginleg með leiktækjum og stórt bílastæðisplan við húsið.
- Ljósleiðari er kominn inn í íbúðina.
- Búið er að setja upp rafhleðslustöðvar við húsið.
- Virkt húsfélag í góðu samstarfi við Eignaumsjón.
Hér er um að ræða vel skipulagða og fallega íbúð á góðum og barnvænum stað í Grafarvogi, stutt í helstu þjónustu, leik-, grunn- og framhaldsskóla, verslun (Spöngina) og þjónustusvæði.
Allar nánari uppl. og skoðun veitir: Jóhann Friðgeir, lgf. GSM: 896-3038 e-mail: johann@hofdi.is
Samkvæmt skráningu Þjóðskrár Íslands er birt flatarmál eignarinnar 119,6 fm. - Fyrirhugað fasteignamat 2026 kr. 82.700.000,-
Um er að ræða fallega og rúmgóða íbúð á 2. hæð í fjölbýlishúsi byggðu árið 2008 með góðum innréttingum.
Íbúðin er skráð 109 fm. og sér geymsla 9,6 fm. Svalir eru skráðar 14,5 fm. ekki inn í fermetratölu.
Gengið er inn í rúmgóða forstofu, inn af henni er alrými sem er opið í sjónvarpshol og stofuna, eldhúsið er opið í stofuna. Til vinstri við inngang er eitt stórt herbergi, en til hægri er annað herbergi, þvottahúsið og baðherbergið eru þar á milli og hjónaherbergið í enda. Lár veggur aðskilur sjónvarpsholið og stofuna. Gengið er út á sólríkar svalir úr stofunni. Rúmgóð geymsla fylgir íbúðinni á jarðhæð, sem og sameiginleg hjóla- og vagnageymsla.
Forstofa: Mjög rúmgóð með fataskáp, forstofuhurð með gleri og flísar á gólfi.
Stofa/sjónvarpshol: Sjónvarpsholið er við innganginn, bjart og gott alrými með stofu og borðstofu sem er opið í eldhúsið, parket á gólfum. Útgangur út á rúmgóðar svalir úr stofu.
Eldhús: Opið í stofuna, falleg innrétting með eldunareyju, gott skápa- og borðpláss, keramik helluborð og parket á gólfi.
Baðherbergi: Rúmgott og flísalagt, góðar innréttingar, baðkar með sturtu hengi, upphengt salerni og handklæðaofn.
Svefnherbergin: Parket á öllum gólfum og rúmgóð herbergi með góðu skápaplássi.
Þvottahús: Gott aðgengi innan íbúðar, skápar og borðpláss, flísar á gólfi.
Geymsla: Sér 9,6 fm. geymsla fylgir á jarðhæð.
Sameign: Snyrtileg sameign, sameiginleg vagna- og hjólageymsla. Lóðin er sameiginleg með leiktækjum og stórt bílastæðisplan við húsið.
- Ljósleiðari er kominn inn í íbúðina.
- Búið er að setja upp rafhleðslustöðvar við húsið.
- Virkt húsfélag í góðu samstarfi við Eignaumsjón.
Hér er um að ræða vel skipulagða og fallega íbúð á góðum og barnvænum stað í Grafarvogi, stutt í helstu þjónustu, leik-, grunn- og framhaldsskóla, verslun (Spöngina) og þjónustusvæði.
Allar nánari uppl. og skoðun veitir: Jóhann Friðgeir, lgf. GSM: 896-3038 e-mail: johann@hofdi.is
Ár
Fasteignamat
Kaupverð
Stærð
Fermetraverð
7. maí. 2019
47.300.000 kr.
49.900.000 kr.
119.6 m²
417.224 kr.
19. jún. 2008
28.000.000 kr.
28.400.000 kr.
119.6 m²
237.458 kr.
Byggt á upplýsingum úr Þjóðskrá Íslands frá 2006-2026