Löggiltir fasteignasalar innan Félags fasteignasala:
Hannes Steindórsson
Bogi Molby Pétursson
Guðrún Antonsdóttir
Heimir Hallgrímsson
Hrafnkell P. H. Pálmason
Viðar Marinósson
Elías Haraldsson
Kristján Þórir Hauksson
Albert Bjarni Úlfarsson
Ragnar Þorsteinsson
Þórey Ólafsdóttir
Andri Freyr Halldórsson
Upplýsingar
Verðsaga
Byggt 1928
63,1 m²
3 herb.
2 baðherb.
2 svefnh.
Sameiginl. inngangur
Opið hús: 18. janúar 2026
kl. 12:00
til 12:20
Opið hús að Hallveigarstíg 9 (íbúð 301 - Huginn og Karítas á bjöllu), klukkan 12:00 á sunnudaginn
Lýsing
LIND fasteignasala og Þórey Ólafsdóttir, löggiltur fasteignasali, kynna í einkasölu töluvert endurbætta 3ja herbergja íbúð á 3. hæð við Hallveigarstígur 9 miðsvæðis í Reykjavík.
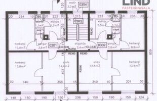
Birt stærð eignar er 63.1 fm samkvæmt Þjóðskrá Íslands, þar af er 4 fm geymsla á jarðhæð en henni fylgir hlutdeild í sameign, sameignlegu þvottahúsi og geymslurými í risi.
Eignin skiptist í opið forrými eða hol, eldhús, stofu og borðstofa, tvö svefnherbergi, sturtuherbergi og salerni.
SMELLTU HÉR TIL AÐ FÁ SENT SÖLUYFIRLIT en annars veiti ég allar frekari upplýsingar í síma 663 2300 eða thorey@fastlind.is
Nánari lýsing:
Forstofa með fataskáp, plankaparket á gólfi.
Eldhús með nýlegri innréttingu og innbyggðri uppþvottavél sem fylgir, plankaparket á gólfi.
Stofa og borðstofa, plankaparket á gólfi.
Svefnherbergi I með fataskáp og plankaparket á gólfi (innaf stofu og mætti opna á milli).
Svefnherbergi II með innbyggðum fataskáp, parket á gólfi.
Baðherbergi I - snyrting með upphengdu salerni með handlaug, flísalagt að hluta.
Baðherbergi II - baðaðstaða með flísalagðri sturtu.
Geymsla á jarðhæð (4 fm), önnur geymsla í risi sem er ekki inni í skráðum fermetrum hjá HMS.
Sameiginlegt þvottahús á jarðhæð þar sem hver og einn er með sína vél.
Húsgjöld eignar eru 16.363 kr. á mánuði og þá er innifalinn allur almennur rekstur húsfélags, hiti í sameign, rafmagn í sameign og framkvæmdasjóður.
Húsið var nýlega málað og múrviðgert, gluggar endurnýjaðir (gluggar og gler), rafmagnstafla endurnýjuð ásamt rafmagni að mestu og hitaveitu- / neysluvatnslagnir í íbúð, nýlegir ofnar í íbúðinni og nýlegt mynddyrasímakerfi í húsinu.
Nánari upplýsingar veitir Þórey Ólafsdóttir, löggiltur fasteignasali / B.Sc. í viðskiptafræði í síma 663 2300 eða gegnum thorey@fastlind.is
Á heimasíðunni minni www.thorey.is má skoða umsagnir ánægðra viðskiptavina og kynna sér þjónustuna mína.
Allir kaupendur okkar fá Vildarkort Lindar. Með því að framvísa kortinu færð þú 30% afslátt hjá samstarfsaðilum: Húsgagnahöllin, S. Helgason, Flugger litir, Húsasmiðjan, Z brautir og gluggatjöld, Vídd, Parki, Betra bak, Dorma og Sýn.
Birt stærð eignar er 63.1 fm samkvæmt Þjóðskrá Íslands, þar af er 4 fm geymsla á jarðhæð en henni fylgir hlutdeild í sameign, sameignlegu þvottahúsi og geymslurými í risi.
Eignin skiptist í opið forrými eða hol, eldhús, stofu og borðstofa, tvö svefnherbergi, sturtuherbergi og salerni.
SMELLTU HÉR TIL AÐ FÁ SENT SÖLUYFIRLIT en annars veiti ég allar frekari upplýsingar í síma 663 2300 eða thorey@fastlind.is
Nánari lýsing:
Forstofa með fataskáp, plankaparket á gólfi.
Eldhús með nýlegri innréttingu og innbyggðri uppþvottavél sem fylgir, plankaparket á gólfi.
Stofa og borðstofa, plankaparket á gólfi.
Svefnherbergi I með fataskáp og plankaparket á gólfi (innaf stofu og mætti opna á milli).
Svefnherbergi II með innbyggðum fataskáp, parket á gólfi.
Baðherbergi I - snyrting með upphengdu salerni með handlaug, flísalagt að hluta.
Baðherbergi II - baðaðstaða með flísalagðri sturtu.
Geymsla á jarðhæð (4 fm), önnur geymsla í risi sem er ekki inni í skráðum fermetrum hjá HMS.
Sameiginlegt þvottahús á jarðhæð þar sem hver og einn er með sína vél.
Húsgjöld eignar eru 16.363 kr. á mánuði og þá er innifalinn allur almennur rekstur húsfélags, hiti í sameign, rafmagn í sameign og framkvæmdasjóður.
Húsið var nýlega málað og múrviðgert, gluggar endurnýjaðir (gluggar og gler), rafmagnstafla endurnýjuð ásamt rafmagni að mestu og hitaveitu- / neysluvatnslagnir í íbúð, nýlegir ofnar í íbúðinni og nýlegt mynddyrasímakerfi í húsinu.
Nánari upplýsingar veitir Þórey Ólafsdóttir, löggiltur fasteignasali / B.Sc. í viðskiptafræði í síma 663 2300 eða gegnum thorey@fastlind.is
Á heimasíðunni minni www.thorey.is má skoða umsagnir ánægðra viðskiptavina og kynna sér þjónustuna mína.
Allir kaupendur okkar fá Vildarkort Lindar. Með því að framvísa kortinu færð þú 30% afslátt hjá samstarfsaðilum: Húsgagnahöllin, S. Helgason, Flugger litir, Húsasmiðjan, Z brautir og gluggatjöld, Vídd, Parki, Betra bak, Dorma og Sýn.
Ár
Fasteignamat
Kaupverð
Stærð
Fermetraverð
25. maí. 2022
37.600.000 kr.
54.900.000 kr.
63.1 m²
870.048 kr.
Byggt á upplýsingum úr Þjóðskrá Íslands frá 2006-2026