Upplýsingar
Verðsaga
Byggt 1980
251 m²
9 herb.
3 baðherb.
7 svefnh.
Þvottahús
Bílskúr
Sérinngangur
Lýsing
Betri Stofan fasteignasala Borgartúni 30 kynnir nýtt í einkasölu. Fallegt og vel skipulagt endaraðhús á þremur hæðum ásamt bílskúr, sjö svefnherbergi / í dag sér íbúð á jarðhæð í útleigu. Frábært útsýni yfir borgina. Eignin telur:
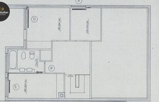
Miðhæð, anddyri, forstofuherbergi, stórt og bjart alrými með frábæru útsýni, fallegt eldhús, snyrtingu, sér þvottahús og svalir.
Efri hæð, gott hol, þrjú svefnherbergi og glæsilegt baðherbergi.
Neðri hæð, í dag er hæðin nýtt til útleigu, Þrjú svefnherbergi, alrými/eldhús, anddyri og baðherbergi - sér inngangur er á hæðin en einnig er inngengt frá miðhæð.
Nánari lýsing:
Komið er inn í anddyri, innaf anddyri er ágætt forstofuherbergi. Stofa - borðstofa mynda saman stórt og bjart parket alrými með parketi á gólfi - útgengt er á fínar svalir, frábært útsýni er af hæðinni. Eldhúsið er með fallegri innréttingu og góð skápaplássi. Á hæðinni er einnig flísalögð gestasnyrting og sér þvottahús.
Á efri hæðinni er komið upp í parketlagt fínt hol - hægt að nýta sem sjónvarpshol. Svefnherbergin á hæðinni eru þrjú með parketi á gólfi, úr hjónaherbergi er útgengt á svalir. Baðherbergi á hæðinni er flísalagt og endurnýjað með hvítri innréttingu, vegghengdu salerni og einhalla sturtu með gleri.
Neðri hæðin er í dag nýtt til útleigu, innan gegnt er af miðhæðinni en einnig sérinngangur og útgengt einnig á baklóð. Hæðin telur opið alrými með fínni eldhúsinnréttingu, parket og flísar á gólfi, ásamt þremur herbergjum. Baðherbergi á hæðinni er flísalagt og þvottahús.
Bílskúrinn er með rafmagni, opnara og vatni - þar er einnig fínt geymsluloft.
Lóðin er falleg, baklóð er vel afgirt með stórum veröndum og grasflöt.
Þetta er vel skipulagt endaraðhús með mikla möguleika og ótrúlega fallegu útsýni.
Skipti á 3-4 herb íbúð skoðuð - sér inngangur stór kostur.
Allar nánari upplýsingar veitir Atli S. Sigvarðsson lgf. í síma 899-1178 eða atli@betristofan.is
Miðhæð, anddyri, forstofuherbergi, stórt og bjart alrými með frábæru útsýni, fallegt eldhús, snyrtingu, sér þvottahús og svalir.
Efri hæð, gott hol, þrjú svefnherbergi og glæsilegt baðherbergi.
Neðri hæð, í dag er hæðin nýtt til útleigu, Þrjú svefnherbergi, alrými/eldhús, anddyri og baðherbergi - sér inngangur er á hæðin en einnig er inngengt frá miðhæð.
Nánari lýsing:
Komið er inn í anddyri, innaf anddyri er ágætt forstofuherbergi. Stofa - borðstofa mynda saman stórt og bjart parket alrými með parketi á gólfi - útgengt er á fínar svalir, frábært útsýni er af hæðinni. Eldhúsið er með fallegri innréttingu og góð skápaplássi. Á hæðinni er einnig flísalögð gestasnyrting og sér þvottahús.
Á efri hæðinni er komið upp í parketlagt fínt hol - hægt að nýta sem sjónvarpshol. Svefnherbergin á hæðinni eru þrjú með parketi á gólfi, úr hjónaherbergi er útgengt á svalir. Baðherbergi á hæðinni er flísalagt og endurnýjað með hvítri innréttingu, vegghengdu salerni og einhalla sturtu með gleri.
Neðri hæðin er í dag nýtt til útleigu, innan gegnt er af miðhæðinni en einnig sérinngangur og útgengt einnig á baklóð. Hæðin telur opið alrými með fínni eldhúsinnréttingu, parket og flísar á gólfi, ásamt þremur herbergjum. Baðherbergi á hæðinni er flísalagt og þvottahús.
Bílskúrinn er með rafmagni, opnara og vatni - þar er einnig fínt geymsluloft.
Lóðin er falleg, baklóð er vel afgirt með stórum veröndum og grasflöt.
Þetta er vel skipulagt endaraðhús með mikla möguleika og ótrúlega fallegu útsýni.
Skipti á 3-4 herb íbúð skoðuð - sér inngangur stór kostur.
Allar nánari upplýsingar veitir Atli S. Sigvarðsson lgf. í síma 899-1178 eða atli@betristofan.is
Gjöld sem kaupandi þarf að standa straum af ef að kaupum verður:
1. Stimpilgjald af fasteignamati fasteignar er 0.8%, en 0,4% fyrir fyrstu kaup og 1,6% fyrir lögaðila.
2. Þinglýsingargjald: kaupsamningi, skuldabréfi, veðleyfi, afsali o.s.frv. er kr. 3.800 af hverju skjali.
3. Lántökukostnaður samkvæmt verðskrá viðkomandi lánastofnunar.
4. Umsýslugjald til fasteignasölu skv. gjaldskrá.
Skoðunarskylda kaupanda:
Í lögum um fasteignakaup nr. 40/2002 er kveðið á um ríka skoðunarskyldu kaupenda á fasteignum. Betri Stofan fasteignasala bendir væntanlegum kaupendum á að kynna sér vel ástand fasteigna við skoðun og fyrir tilboðsgerð og ef þurfa þykir að leita til sérfræðinga um nánari ástandsskoðun.
Ár
Fasteignamat
Kaupverð
Stærð
Fermetraverð
20. nóv. 2018
61.300.000 kr.
73.000.000 kr.
251 m²
290.837 kr.
5. jún. 2009
40.215.000 kr.
39.900.000 kr.
251 m²
158.964 kr.
Byggt á upplýsingum úr Þjóðskrá Íslands frá 2006-2026