Löggiltir fasteignasalar innan Félags fasteignasala:
Sigurður Samúelsson
Andri Sigurðsson
Sveinn Eyland
Ingibjörg Agnes Jónsdóttir
Guðrún Diljá Lúðvíksdóttir
Monika Hjálmtýsdóttir
Júlíus Jóhannsson
Freyja Rúnarsdóttir
Jón Óskar Karlsson
Davíð Matthíasson
Erla Friðriksdóttir
Vista
svg

500

svg

325  Skoðendur

svg

Skráð  18. jan. 2026

fjölbýlishús

17 Júnítorg 1

210 Garðabær

99.800.000 kr.

833.055 þ.kr./m2
Fasteignanúmer

F2274491

Fasteignamat

94.700.000 kr.

Brunabótamat

65.840.000 kr.

Áhvílandi

0 kr.

Arion banki – Reikna lán
Upplýsingar
Verðsaga
svg
Byggt 2006
svg
119,8 m²
svg
3 herb.
svg
1 baðherb.
svg
2 svefnh.
svg
Þvottahús
svg
Sameiginl. inngangur
svg
Bílastæði
svg
Lyfta

Lýsing

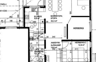
LANDMARK kynnir:  Afar falleg 3ja herbergja, 119,8 fm íbúð á 1. hæð í lyftuhúsi í Sjálandshverfinu í Garðabæ.  Eigninni fylgir stæði í bílageymslu.  Hús fyrir eldri borgara.

Forstofa / hol er með parketi á gólfi og rúmgóðum fataskápum.
Sjónvarpshol er með parketi á gólfi.
Svefnherbergin tvö eru með parketi á gólfi og góðir fataskápar eru í stærra herberginu.
Eldhúsið er með eikarinnréttingu með nýlegri borðplötu, helluborði og vaski sem eru undirlímd í borðplötu.
Stofan og borðstofan eru í samliggjandi björtu rými með parketi á gólfi.  Þaðan er útgengt út á afgirta verönd og lóð.
Baðherbergið er með nýlegri innréttingu og sturtu með góðu aðgengi.
Þvottahús er innan íbúðar með innréttingu.

Í sameign er sérgeymsla íbúðar (8,3 fm) ásamt sameiginlegum rýmum. 
Stæði í upphitaðri bílageymslu fylgir, merkt B-14 - möguleiki á hleðslustöð í bílageymslu - hleðslustöðvar á bílaplani.

Upplýsingar veitir Sigurður Samúelsson Lgf í síma 896-2312 eða ss@landmark.is
----------------------------------------------------------

Skoðunar- og aðgæsluskylda:
Lög um fasteignakaup nr. 40/2002 kveða á um að kaupendur þurfi að skoða fasteignir vel áður en tilboð er gert. LANDMARK fasteignamiðlun ráðleggur kaupendum að skoða ástand eignar og leita sér aðstoðar sérfræðinga ef þörf er á nánari skoðun.

Söluyfirlit:
Söluyfirlit er gert af fasteignasala samkvæmt lögum nr. 70/2015. Upplýsingar í yfirlitinu eru fengnar úr opinberum skrám, frá seljanda og ef þarf frá húsfélagi. Fasteignasali sannreynir upplýsingar með skoðun á eigninni en getur ekki sannreynt ástand þess sem ekki er aðgengilegt eða sýnilegt, t.d. lagnir, dren, skólp og þak.

Gjöld sem kaupandi þarf að greiða:
1. Stimpilgjald: 0,8% af fasteignamati (0,4% fyrir fyrstu kaup) og 1,6% fyrir lögaðila.
2. Þinglýsingargjald: 2.700 kr. fyrir hvert skjal.
3. Lántökugjald: Fer eftir gjaldskrá lánveitanda.
3. Þjónustusýslugjald: 79.000 kr. m/vsk.
3. Skipulagsgjald: Ef um nýbyggingu er að ræða, 0,3% af brunabótamáti þegar það er lagt á.

Heimasíða LANDMARK
Pantaðu frítt söluverðmat

img
Sigurður Samúelsson
Lögg.fasteignasali innan félags fasteignasala
LANDMARK fasteignamiðlun
Hlíðasmári 2, 201 Kópavogur
LANDMARK fasteignamiðlun

LANDMARK fasteignamiðlun

Hlíðasmári 2, 201 Kópavogur
phone
img

Sigurður Samúelsson

Hlíðasmári 2, 201 Kópavogur
Ár
Fasteignamat
Kaupverð
Stærð
Fermetraverð
13. ágú. 2021
57.550.000 kr.
65.000.000 kr.
119.8 m²
542.571 kr.
14. maí. 2021
57.550.000 kr.
58.000.000 kr.
119.8 m²
484.140 kr.
5. júl. 2017
41.250.000 kr.
52.500.000 kr.
119.8 m²
438.230 kr.
10. sep. 2014
31.450.000 kr.
31.000.000 kr.
119.8 m²
258.765 kr.
Byggt á upplýsingum úr Þjóðskrá Íslands frá 2006-2026
LANDMARK fasteignamiðlun

LANDMARK fasteignamiðlun

Hlíðasmári 2, 201 Kópavogur
phone

Sigurður Samúelsson

Hlíðasmári 2, 201 Kópavogur