Löggiltir fasteignasalar innan Félags fasteignasala:
Þóra Birgisdóttir
Vista
fjölbýlishús

Hverfisgata íbúð 202 83

101 Reykjavík

59.900.000 kr.

993.367 þ.kr./m2
Fasteignanúmer

F2213916

Fasteignamat

59.950.000 kr.

Brunabótamat

40.750.000 kr.

Áhvílandi

0 kr.

Arion banki – Reikna lán
Upplýsingar
Verðsaga
svg
Byggt 1902
svg
60,3 m²
svg
2 herb.
svg
1 baðherb.
svg
1 svefnh.
svg
Þvottahús
svg
Sérinngangur
svg
Lyfta

Lýsing

Esja Fasteignasala og Þóra Birgisdóttir Lögg. fasteignasali kynna nýja einstaka uppgerða eign í sölu;
Hverfisgata 83 er virðulegt fjölbýlishús kallað Bjarnaborgin þar sem lokaður inngarður og vernduð ásýnd hússins og vönduð vinnubrögð við uppgerð hússins og íbúðanna sýna virðingu við sögu þess og Reykjavíkurborgar.
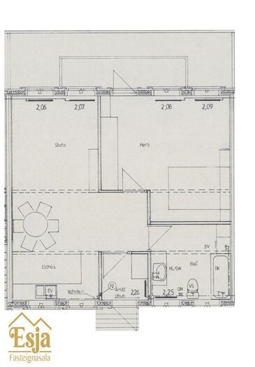
Um er að ræða íbúð merkt 0202 við Hverfisgötu 83, 2ja herbergja íbúð með sérinngangi frá svölum í einstöku húsi í hjarta Reykjavíkur.
Eignin er skráð 60,3 fm. skv. Fasteignaskrá HMS, þar af er íbúðin sjálf 55,9 fm. og sérgeymsla mekrt 01-0008 4,4 fm.

Íbúðin er nýlega uppgerð með pússuðu, gegnheilu Merbau-harðviðarparketi á gólfum, nýrri innréttingu í eldhúsi ásamt eldhústækjum og ísskáp og uppþvottavél, gluggi í eldhúsi snýr inn í garðinn og er opnanlegur.
Stofa er björt með gluggum í vestur, gengið er út á svalir sem snúa í vestur út að Vitatorgi en frá svölum sést  til norðurs út á sjóinn.
Svefnherbergi er rúmgott með góðum fataskápum.
Baðherbergi er dúklagt með baðkari, salerni og handlaug, mögulegt er að tengja þar þvottavél. Gluggi með opnalegu fagi er á baðherbergi. 
Forstofa með fataskáp eða aðstöðu til að setja upp fatahengi.
Sér geymsla þessarar íbúðar er í sameiginlegu rými í kjallar merkt 01-0008 er 4,4 fm. Í sameign á jarðhæð er rúmgott, sameiginlegt þvottahús.
Í húsinu eru 15 tveggja herbergja íbúðir, allar með sérgeymslu, sameiginlegri vagna- hjólageymslu, sameiginlegu þvottahúsi og fallegum inngarði með bekkjum og gróðri. Stigahús í garðinum er með lyftu og því gott aðgengi að íbúðunum.
Íbúar/eigendur geta sótt um íbúakort fyrir gjaldfrítt bílastæði skv. reglum Reykjavíkurborgar en einnig er bílastæðahúsið við Vitaorg stærsta bílastæðahús á höfuðborgarsvæðinu og almennt styst bið eftir langtíma leigu bílastæðis þar.
Íbúðirnar afhendast fullbúnar með eldhústækjum, húsið verður full málað að utan sumarið 2025 og garður snyrtur og hellur lagaðar fyrir afhendingu eignanna.
Allar frekari upplýsingar um eignina veitir Þóra Birgisdóttir Lögg. fasteignasali í s. 777-2882 eða thora@esjafasteignasala.is


Um skoðunar- og aðgæsluskyldu:
Í lögum um fasteignakaup nr. 40/2002 er kveðið á um ríka skoðunarskyldu kaupenda á fasteignum. Esja fasteignasala ehf. bendir væntanlegum kaupendum á að kynna sér vel ástand fasteigna við skoðun og fyrir tilboðsgerð og ef þurfa þykir að leita til sérfræðinga um nánari ástandsskoðun.

Forsendur söluyfirlits:
Söluyfirlit er samið af fasteignasala í samræmi við ákvæði laga nr. 70/2015. Þær upplýsingar sem fram koma í söluyfirliti eru sóttar í opinberar skrár, til seljanda sjálfs og eftir atvikum til húsfélags. Seljandi veitir upplýsingar um eign í samræmi við upplýsingaskyldu laga um fasteignakaup nr. 40/2002. Fasteignasali sannreynir að þær upplýsingar séu réttar með sjónskoðun á eigninni. Fasteignasali getur ekki fullyrt um ástand og eiginleika þeirra hluta fasteigna sem ekki eru aðgengilegir og sjást ekki berum augum, t.d. lagnir, dren, skólp og þak.

Gjöld sem kaupandi þarf að standa straum af vegna kaupanna:
Stimpilgjald af kaupsamningi sem er hlutfall af fasteignamati. Stimpilgjald er 0,8% fyrir einstaklinga (0,4% við fyrstu kaup m.v. að lágmarki 50% eignarhlut) og 1,6% fyrir lögaðila.
Þinglýsingargjald af kaupsamningi, veðskuldabréfum, veðleyfum o.fl. Þinglýsingargjald er kr. 2.700,- fyrir hvert skjal.
Lántökugjald lánastofnunar. Um lántökugjald vísast í gjaldskrá viðkomandi lánveitanda.
Umsýsluþóknun fasteignasölu skv. gjaldskrá.
Ef um nýbyggingu er að ræða greiðir kaupandi skipulagsgjald, 0,3% af brunabótamati, þegar það er lagt á.

img
Þóra Birgisdóttir
Lögg.fasteignasali innan félags fasteignasala
Esja fasteignasala
Sundagörðum 2, 104 Reykjavík

Esja fasteignasala

Sundagörðum 2, 104 Reykjavík
phone
img

Þóra Birgisdóttir

Sundagörðum 2, 104 Reykjavík
Ár
Fasteignamat
Kaupverð
Stærð
Fermetraverð
13. des. 2024
55.050.000 kr.
630.000.000 kr.
10202 m²
61.753 kr.
Byggt á upplýsingum úr Þjóðskrá Íslands frá 2006-2026

Esja fasteignasala

Sundagörðum 2, 104 Reykjavík
phone

Þóra Birgisdóttir

Sundagörðum 2, 104 Reykjavík