Löggiltir fasteignasalar innan Félags fasteignasala:
Daníel Rúnar Elíasson
Vista
fjölbýlishús

Brákarbraut 10

310 Borgarnes

69.500.000 kr.

561.389 þ.kr./m2
Fasteignanúmer

F2307821

Fasteignamat

57.550.000 kr.

Brunabótamat

64.800.000 kr.

Áhvílandi

0 kr.

Arion banki – Reikna lán
Upplýsingar
Verðsaga
svg
Byggt 2008
svg
123,8 m²
svg
4 herb.
svg
1 baðherb.
svg
3 svefnh.
svg
Þvottahús
svg
Sérinngangur

Lýsing

HÁKOT fasteignasala og Daníel Rúnar Elíasson löggiltur fasteignasali sími: 431-4045 / 899-4045 auglýsa:

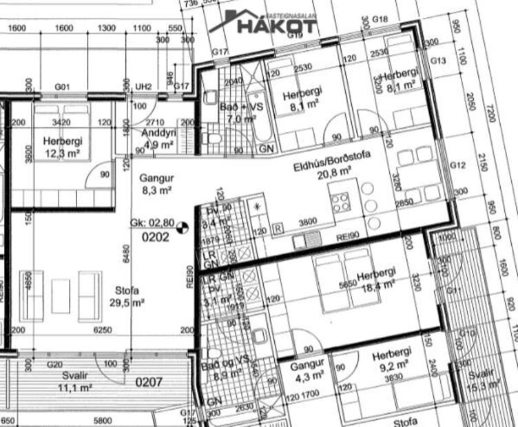
*** BRÁKARBRAUT 10 *** Um er að 4ra herbergja íbúð (117.1 m²) á efri hæð ásamt sérgeymslu á jarðhæð (6.7 m²) = 123.8 m²
í 2ja hæða fjölbýlishúsi (í húsinu eru einnig 8 íbúðir + þjónusturými á jarðhæð).


Forstofa (flísar, skápur).
Hol (flísar/parket).
Stofa/borðstofa (parket, útgangur út á svalir, fallegt útsýni).
Herbergi 2 (parket, skápur).
Herbergi 3 (parket, skápur).
Svefnherbergi (parket, skápur). Þvottahús (flísar, hillur, op upp á geymsluloft, ekki gluggi).
Baðherbergi (flísar, flísar á vegg, baðkar, sturta, ljós viðarinnréttintg, upphengt wc).
Eldhús (flísar, sprautulökkuð innrétting (grá), flísar á milli skápa, ofn, helluborð, innbyggð uppþvottavél).

Geymsla á jarðhæð (málað gólf).
Sameiginleg hjólageymsla.

ANNAÐ: Gólfhiti. Forsteyptar einingar. Flutt í íbúðina 2015. Möguleiki að bæta við herbergi. Góðar svalir í suður. Fallegt útsýni. Stutt í Brákarey, Landnámssetrið o.fl.


Allar upplýsingar í söluyfirliti eru fengnar frá seljanda og úr opinberum gögnum.

************
Um skoðunar- og aðgæsluskyldu:
Í lögum um fasteignakaup nr. 40/2002 er kveðið á um ríka skoðunarskyldu kaupenda á fasteignum. Fasteignasalan Hákot bendir væntanlegum kaupendum á að kynna sér vel ástand fasteigna við skoðun og fyrir tilboðsgerð og ef þurfa þykir að leita til sérfræðinga um nánari ástandsskoðun.

Forsendur söluyfirlits: 
Söluyfirlit er samið af fasteignasala í samræmi við ákvæði laga nr. 70/2015. Þær upplýsingar sem fram koma í söluyfirliti þessu eru sóttar í opinberar skrár, til seljanda sjálfs og eftir atvikum til húsfélags. Seljandi veitir upplýsingar um eign í samræmi við upplýsingaskyldu laga um fasteignakaup nr. 40/2002. Fasteignasali metur eignina með sjónskoðun.
Fasteignasali getur ekki fullyrt um ástand og eiginleika þeirra hluta fasteigna sem ekki eru aðgengilegir og sjást ekki berum augum, t.d. lagnir, dren, skólp og þak.

Gjöld sem kaupandi þarf að standa straum af vegna kaupanna:  
1. Stimpilgjald af kaupsamningi - 0.8% af heildar fasteignamati / 1.6% fyrir lögaðila, (0.4% við fyrstu kaup einstaklinga).
2. Þinglýsingagjald af kaupsamningi, afsali, veðskuldabréfi, umboði, veðleyfi o.fl.- kr. 2.700 af hverju skjali.
3. Umsýslugjald kr. 49.600 (m/vsk).
4. Lántökugjald veðskuldabréfa samkvæmt gjaldskrá lánveitenda.
5. Ef um nýbyggingu er að ræða greiðir kaupandi skipulagsgjald, 0,3% af brunabótamáti, þegar það er lagt á

Fasteignasalan Hákot

Fasteignasalan Hákot

Kirkjubraut 12 (jarðhæð)300 Akranesi
phone
Ár
Fasteignamat
Kaupverð
Stærð
Fermetraverð
13. sep. 2022
35.350.000 kr.
55.000.000 kr.
123.8 m²
444.265 kr.
4. jan. 2022
35.350.000 kr.
44.200.000 kr.
123.8 m²
357.027 kr.
9. mar. 2018
24.500.000 kr.
31.500.000 kr.
123.8 m²
254.443 kr.
14. apr. 2015
9.570.000 kr.
12.750.000 kr.
123.8 m²
102.989 kr.
Byggt á upplýsingum úr Þjóðskrá Íslands frá 2006-2026
Fasteignasalan Hákot

Fasteignasalan Hákot

Kirkjubraut 12 (jarðhæð)300 Akranesi
phone