Löggiltir fasteignasalar innan Félags fasteignasala:
Hallgrímur Óskarsson
Vista
einbýlishús

Grenigrund 9

800 Selfoss

109.800.000 kr.

513.084 þ.kr./m2
Fasteignanúmer

F2250610

Fasteignamat

110.200.000 kr.

Brunabótamat

110.650.000 kr.

Áhvílandi

0 kr.

Arion banki – Reikna lán
Upplýsingar
svg
Byggt 2000
svg
214 m²
svg
5 herb.
svg
2 baðherb.
svg
4 svefnh.
svg
Þvottahús
svg
Bílskúr

Lýsing

LÖGMENN SUÐURLANDI S: 480 2900

Grenigrund 9, Selfossi.

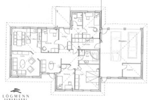
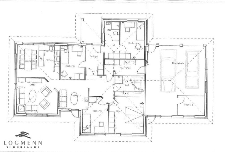
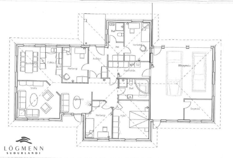
Um er að ræða 154,0 fm. einbýlishús ásamt 60,0 fm. sambyggðum bílskúr, samtals 214,0 fm.  Húsið er byggt úr timbri árið 2000 og er klætt að utan með múrsteinsklæðningu en hvítt plekeljárn er á þaki. Gluggar eru hvítir furugluggar.  Bílskúrinn er tvöfaldur og með tvennum innkeyrsluhurðum. Gróðurhús er á baklóð.  Skv. teikningu er húsið fjögur svefnherbergi, stofa, hol, eldhús, baðherbergi, þvottahús, gestasnyrting og forstofa. Stutt í skóla og íþróttasvæði.

Nánari lýsing: 
Forstofa: Flísar á gólfi
Forstofuherbergi: Parket á gólfi og þar er fataskápur
Forstofu herbergi: Parket á gólfi og þar er fataskápur
Forstofusnyrting.  Flísar á gólfi þar er lítil innrétting og sturtuklefi
Hol: Parket á gólfi.  Útgengt á verönd
Hjónaherbergi: Parket á gólfi og þar er fataskápur
Herbergi: Parket á gólfi og þar er fataskápur.
Stofa: Parket á gólfi
Eldhús: Eikarinnrétting og parket á gólfi.
Baðherbergi: Flísar á gólfi og veggjum.  Hornbaðker og hvít innrétting.  Þakgluggi.
Þvottahús: Flísar á gólfi.  Innangengt í bílskúr

Nánari upplýsingar veita
Sigurður Sigurðsson,  löggiltur fasteignasali í síma  690-6166, sigurdur@log.is
Hallgrímur Óskarsson , löggiltur fasteignasali Skjalavinnsla í síma  845-9900, halli@log.is

Lögmenn Suðurlandi

Lögmenn Suðurlandi

Austurvegi 3, 800 Selfoss
phone
Lögmenn Suðurlandi

Lögmenn Suðurlandi

Austurvegi 3, 800 Selfoss
phone