Upplýsingar
Verðsaga
Byggt 2022
78,2 m²
3 herb.
1 baðherb.
2 svefnh.
Þvottahús
Lyfta
Lýsing
Fasteignasalan Heimaland kynnir í einkasölu, Víkurmóa 2 íbúð 403.
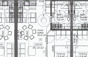
Um er að ræða þriggja herbergja íbúð á fjórðu og efstu hæð í nýlegu fjölbýlishúsi á Selfossi
Húsið er byggt árið 2022 úr forsteyptum einingum.
Íbúðin er skráð 78,2fm og telur forstofu, alrými sem samanstendur af eldhúsi, borðstofu og stofu, 2 rúmgóð svefnherbergi, baðherbergi og geymslu.
Nánari lýsing eignar:
Gengið er inn í parketlagða forstofu.
Eldhúsið er með innréttingu frá Voke-3 með innbyggðri uppþvottavél, helluborði og bakarofni. Parket á gólfi.
Stofa/borðstofa er björt og rúmgóð, þaðan er útgengt út á svalir sem snúa í vestur með miklu útsýni. Parket á gólfi.
Svefnherbergin tvö eru rúmgóð og bæði með fataskápum. Parket á gólfi
Baðherbergið er flísalagt með sturtuklefa, upphengdu salerni og innréttingu. Inni á baðherbergi er einnig gert ráð fyrir þvottavél og þurrkara í innréttingu.
Geymsla inni í íbúð er rúmgóð með glugga. Parket á gólfi.
Vagna og hjólageymsla er í sameign á jarðhæð.
Vel skipulögð eign á efstu hæð í nýlegu fjölbýlishúsi á Selfossi, stutt í alla helstu þjónustu.
Allar nánari upplýsingar veita:
Snorri Sigurðarson, löggiltur fasteigna og skipasali, sími 897-7027, snorri@heimaland.is
Elísa Dagmar Björgvinsdóttir, aðstoðarmaður fasteignasala í löggildingarnámi, sími 868-7938, elisa@heimaland.is
Gjöld sem kaupandi þarf að greiða vegna kaupa:
1. Stimpilgjald af kaupsamningi er 0,8% af heildarfasteignamati hjá einstaklingum. Sé um fyrstu kaup að ræða er stimpilgjald af kaupsamningi 0,4% af heildarfasteignamati.
2. Stimpilgjald af kaupsamningi - 1,6% af heildarfasteignamati hjá lögaðilum.
3. Þinglýsingargjald af kaupsamningi, afsali, veðskuldabréfi, mögulegu veðleyfi o.fl. - kr. 2.700 af hverju skjali.
4. Lántökugjald lánastofnunar - samanber gjaldskrá viðkomandi lánastofnunar.
5. Umsýslugjald kaupanda er skv. verðskrá.
Í lögum um fasteignakaup nr. 40/2002 er kveðið á um ríka skoðunarskyldu kaupenda á fasteignum. Fasteignasalan Heimaland hvetur því viðskiptavini sína og væntanlega kaupendur af fasteignum að kynna sér vel ástand fasteigna fyrir tilboðsgerð eða eftir atvikum fyrir kaupsamningsgerð. Ef þurfa þykir ættu væntanlegir kaupendur að leita til þar til bærra sérfræðinga um aðstoð við slíka skoðun.
www.heimaland.is, Austurvegur 6, 800 Selfoss, Fasteignasalan Heimaland ehf.
Um er að ræða þriggja herbergja íbúð á fjórðu og efstu hæð í nýlegu fjölbýlishúsi á Selfossi
Húsið er byggt árið 2022 úr forsteyptum einingum.
Íbúðin er skráð 78,2fm og telur forstofu, alrými sem samanstendur af eldhúsi, borðstofu og stofu, 2 rúmgóð svefnherbergi, baðherbergi og geymslu.
Nánari lýsing eignar:
Gengið er inn í parketlagða forstofu.
Eldhúsið er með innréttingu frá Voke-3 með innbyggðri uppþvottavél, helluborði og bakarofni. Parket á gólfi.
Stofa/borðstofa er björt og rúmgóð, þaðan er útgengt út á svalir sem snúa í vestur með miklu útsýni. Parket á gólfi.
Svefnherbergin tvö eru rúmgóð og bæði með fataskápum. Parket á gólfi
Baðherbergið er flísalagt með sturtuklefa, upphengdu salerni og innréttingu. Inni á baðherbergi er einnig gert ráð fyrir þvottavél og þurrkara í innréttingu.
Geymsla inni í íbúð er rúmgóð með glugga. Parket á gólfi.
Vagna og hjólageymsla er í sameign á jarðhæð.
Vel skipulögð eign á efstu hæð í nýlegu fjölbýlishúsi á Selfossi, stutt í alla helstu þjónustu.
Allar nánari upplýsingar veita:
Snorri Sigurðarson, löggiltur fasteigna og skipasali, sími 897-7027, snorri@heimaland.is
Elísa Dagmar Björgvinsdóttir, aðstoðarmaður fasteignasala í löggildingarnámi, sími 868-7938, elisa@heimaland.is
Gjöld sem kaupandi þarf að greiða vegna kaupa:
1. Stimpilgjald af kaupsamningi er 0,8% af heildarfasteignamati hjá einstaklingum. Sé um fyrstu kaup að ræða er stimpilgjald af kaupsamningi 0,4% af heildarfasteignamati.
2. Stimpilgjald af kaupsamningi - 1,6% af heildarfasteignamati hjá lögaðilum.
3. Þinglýsingargjald af kaupsamningi, afsali, veðskuldabréfi, mögulegu veðleyfi o.fl. - kr. 2.700 af hverju skjali.
4. Lántökugjald lánastofnunar - samanber gjaldskrá viðkomandi lánastofnunar.
5. Umsýslugjald kaupanda er skv. verðskrá.
Í lögum um fasteignakaup nr. 40/2002 er kveðið á um ríka skoðunarskyldu kaupenda á fasteignum. Fasteignasalan Heimaland hvetur því viðskiptavini sína og væntanlega kaupendur af fasteignum að kynna sér vel ástand fasteigna fyrir tilboðsgerð eða eftir atvikum fyrir kaupsamningsgerð. Ef þurfa þykir ættu væntanlegir kaupendur að leita til þar til bærra sérfræðinga um aðstoð við slíka skoðun.
www.heimaland.is, Austurvegur 6, 800 Selfoss, Fasteignasalan Heimaland ehf.
Ár
Fasteignamat
Kaupverð
Stærð
Fermetraverð
20. jan. 2023
39.000.000 kr.
48.400.000 kr.
78.2 m²
618.926 kr.
Byggt á upplýsingum úr Þjóðskrá Íslands frá 2006-2026