Löggiltir fasteignasalar innan Félags fasteignasala:
Sverrir Kristinsson
Kjartan Hallgeirsson
Guðlaugur Ingi Guðlaugsson
Daði Hafþórsson
Gunnar Helgi Einarsson
Gunnar Bergmann Jónsson
Lilja Guðmundsdóttir
Jenný Sandra Gunnarsdóttir
Kári Sighvatsson
Vista
fjölbýlishús

Sunnusmári 23

201 Kópavogur

92.900.000 kr.

735.550 þ.kr./m2
Fasteignanúmer

F2507279

Fasteignamat

96.950.000 kr.

Brunabótamat

80.410.000 kr.

Áhvílandi

0 kr.

Arion banki – Reikna lán
Upplýsingar
Verðsaga
svg
Byggt 2020
svg
126,3 m²
svg
5 herb.
svg
1 baðherb.
svg
2 svefnh.
svg
Þvottahús
svg
Sameiginl. inngangur
svg
Bílastæði
svg
Lyfta

Lýsing

Eignamiðlun kynnir:

Sunnusmári 23, 201 KÓP. 126.3 fm. Glæsileg opin og björt 4 herb.nýleg fullbúin íbúð á 1.hæð (ein hæð frá götu) í nýlegu vel staðsettu lyftuhúsi í 201 Smáranum. Íbúðinni fylgir sérmerkt stæði í bílageymslu. 2 góð svefnherbergi og samkvæmt teikningu eru þau 3 og lítið mál að bæta við ef þarf. Tvennar svalir þ.a aðrar í minni kantinum. Vandaðar innréttingar, sérþvottahús. Gott skápapláss. Örstutt í mikla og góða þjónustu. 
Bókið skoðun , Þórarinn lögg fs sími 899-1882 eða thorarinn@eignamidlun.is


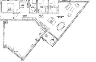
Eignin er skráð sem hér segir hjá Þjóðskrá: Fastanr. 250-7279, nánar tiltekið eign merkt 01-01.  Ibúðin er skráð 117,4 fm og sérgeymsla í sameign merkt 02-101 er skráð 8,9 fm, birt heildarstærð séreignar 126.3 fm. Eigninni fylgir stæði í bílageymslu merkt 04-B25. Svalir eru tvennar og eru skráðar 6,7 fm og 1,2 fm. 

Eignin skiptist í: Forstofu/gang  2 svefnherbergi, stofu og sjónvarpsstofu (teiknað sem 3 svefnherb) Eldhús, baðherbergi og sérþvottahús.

Smelltu hér til að sækja söluyfirlit.

Nánari lýsing eignarinnar:
SAMEIGINLEGUR INNGANGUR 
FORSTOFA/GANGUR: Skápur og parket.
HERBERGI I: Hjónaherbergi með parketi og skápum. 
HERBERGI II: Með parketi og skápum
BAÐHERBERGI: Flísalagt , innrétting sturta og vegghengt salerni. Gluggi er á baðherbergi.
ÞVOTTAHÚS: Flísalagt gólf, innrétting og gluggi er á þvottahúsi.
ALRÝMI: Er vandað eldhús með eldaeyju, innfelldum ísskáp og uppþvottavél. Vönduð tæki. Opið yfir í rúmgóða parketlagða stofu og borðstofu, tvennar svalir bæði til austurs og norðvesturs (litlar) 
SJÓNVARPSHERB: er opið og góður möguleiki að hafa þar 3ja svefnherbergið með lítilli fyrirhöfn. 
SAMEIGN: Í góðri sameign er sérgeymsla íbúðarinnar og innangengt í bílageymslu þar sem íbúðin á mjög gott sérmerkt stæði. Sameiginleg hjóla og vagnageymsla. 


Nánari upplýsingar veitir Þórarinn M. Friðgeirsson Löggiltur fasteignasali, í síma 899-1882, tölvupóstur thorarinn@eignamidlun.is eða skrifstofa Eignamiðlunar í síma 588-9090

***
Ábyrg þjónusta í áratugi. Eignamiðlun var stofnuð 1957 og er elsta starfandi fasteignasala á Íslandi. Reynsla, heiðarleiki og þekking á fasteignamarkaðnum eru grunnur að farsælum viðskiptum. 

Eignamiðlun Grensásvegi 11, 108 Reykjavík - Opið frá kl. 9-17 mánudaga til fimmtudaga og 9-16 á föstudögum.

Heimasíða Eignamiðlunar

Eignamiðlun á Facebook

Eignamiðlun

Eignamiðlun

Grensásvegi 11, 108 Reykjavík
Ár
Fasteignamat
Kaupverð
Stærð
Fermetraverð
13. apr. 2021
57.400.000 kr.
62.900.000 kr.
126.3 m²
498.021 kr.
23. des. 2020
57.400.000 kr.
58.900.000 kr.
126.3 m²
466.350 kr.
Byggt á upplýsingum úr Þjóðskrá Íslands frá 2006-2026
Eignamiðlun

Eignamiðlun

Grensásvegi 11, 108 Reykjavík