Upplýsingar
Verðsaga
Byggt 1989
63,4 m²
2 herb.
1 baðherb.
1 svefnh.
Sameiginl. inngangur
Lyfta
Lýsing
Fasteignasalan TORG kynnir :
Mjög falleg og vel skipulögð 63,4fm tveggja herbergja íbúð á fjórðu efstu hæð í vinsælu fjölbýlishúsi fyrir 60 ára og eldri. Glæsilegt útsýni er frá íbúðinni yfir sameiginlegan garð og út yfir fjallahringinn. Svalir til suðurs. Í Hjallabraut 33 er ýmiskonar þjónusta í boði fyrir íbúa, sem dæmi: Hárgreiðslustofa, snyrtistofa, handavinnuherbergi, gestaherbergi og poolborð svo fátt eitt sé nefnt. Einnig er í boði að leigja sal fyrir t.d. afmælisveislur. Íbúar geta keypt mat í hádeginu alla virka daga og einnig er hægt að panta mat um helgar sérstaklega. Matvöruverslun og ýmis þjónusta er í göngufæri frá húsinu. Nánari upplýsingar veitir Helgi Jónsson Löggiltur fasteignasali í síma : 780-2700 eða á Helgi@fstorg.is
Falleg og rúmgóð 2ja herbergja íbúð á 4. hæð í þessari vinsælu fjölbýli við Hjallabraut 33 í Hafnarfirði fyrir 60 ára og eldri.
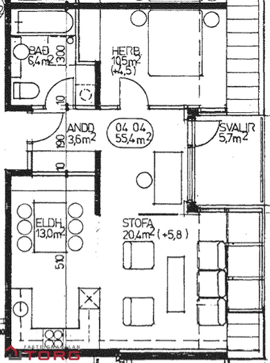
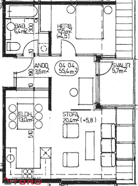
Eignin skiptist þannig að íbúðin er 63,4 fm skv fasteignaskrá auk geymslu á sömu hæð sem er ekki skráð í fm tölu íbúðar.
Komið er inn í forstofu með innbyggðum skápum, parket á gólfi. Hol með parketi á gólfi, útgengt út á góðar suður svalir með einstöku útsýni. Falleg og björt stofa með stórum gluggum, parket á gólfi. Rúmgott eldhús með hvítri innréttingu, ísskápur og uppþvottavél geta fylgt með, flísar á milli skápa, stór borðkrókur/borðstofa, parket á gólfi. Gott svefnherbergi með innbyggðum skáp, parket á gólfi. Baðherbergi með sturtuklefa, innrétting við vask, tengi fyrir þvottavél, dúkur á gólfi. Á hæðinni er sér geymsla með hillum.
Á árunum 2023-2024 var skipta um þakjárn, rennur endurnýjaðar, múrviðgerðir og málaðir steyptir fletir hússins ásamt því að endurnýjaðir voru þeir gluggar sem þörf var á í húsinu. Húsið er að mestum hluta klætt að utan og því viðhaldslétt. Búið er að tengja ljósleiðara inn í íbúðina. Skipt var um stofu gluggan á íbúðinni í þessum framkvæmdum.
Öll sameign hússins er mjög snyrtileg. Eignin er laus til afhendingar við kaupsamning.
Nánari upplýsingar veitir Helgi Jónsson Löggiltur fasteignasali í síma : 780-2700 eða á Helgi@fstorg.is
Mjög falleg og vel skipulögð 63,4fm tveggja herbergja íbúð á fjórðu efstu hæð í vinsælu fjölbýlishúsi fyrir 60 ára og eldri. Glæsilegt útsýni er frá íbúðinni yfir sameiginlegan garð og út yfir fjallahringinn. Svalir til suðurs. Í Hjallabraut 33 er ýmiskonar þjónusta í boði fyrir íbúa, sem dæmi: Hárgreiðslustofa, snyrtistofa, handavinnuherbergi, gestaherbergi og poolborð svo fátt eitt sé nefnt. Einnig er í boði að leigja sal fyrir t.d. afmælisveislur. Íbúar geta keypt mat í hádeginu alla virka daga og einnig er hægt að panta mat um helgar sérstaklega. Matvöruverslun og ýmis þjónusta er í göngufæri frá húsinu. Nánari upplýsingar veitir Helgi Jónsson Löggiltur fasteignasali í síma : 780-2700 eða á Helgi@fstorg.is
Falleg og rúmgóð 2ja herbergja íbúð á 4. hæð í þessari vinsælu fjölbýli við Hjallabraut 33 í Hafnarfirði fyrir 60 ára og eldri.
Eignin skiptist þannig að íbúðin er 63,4 fm skv fasteignaskrá auk geymslu á sömu hæð sem er ekki skráð í fm tölu íbúðar.
Komið er inn í forstofu með innbyggðum skápum, parket á gólfi. Hol með parketi á gólfi, útgengt út á góðar suður svalir með einstöku útsýni. Falleg og björt stofa með stórum gluggum, parket á gólfi. Rúmgott eldhús með hvítri innréttingu, ísskápur og uppþvottavél geta fylgt með, flísar á milli skápa, stór borðkrókur/borðstofa, parket á gólfi. Gott svefnherbergi með innbyggðum skáp, parket á gólfi. Baðherbergi með sturtuklefa, innrétting við vask, tengi fyrir þvottavél, dúkur á gólfi. Á hæðinni er sér geymsla með hillum.
Á árunum 2023-2024 var skipta um þakjárn, rennur endurnýjaðar, múrviðgerðir og málaðir steyptir fletir hússins ásamt því að endurnýjaðir voru þeir gluggar sem þörf var á í húsinu. Húsið er að mestum hluta klætt að utan og því viðhaldslétt. Búið er að tengja ljósleiðara inn í íbúðina. Skipt var um stofu gluggan á íbúðinni í þessum framkvæmdum.
Öll sameign hússins er mjög snyrtileg. Eignin er laus til afhendingar við kaupsamning.
Nánari upplýsingar veitir Helgi Jónsson Löggiltur fasteignasali í síma : 780-2700 eða á Helgi@fstorg.is
Ár
Fasteignamat
Kaupverð
Stærð
Fermetraverð
5. ágú. 2011
13.100.000 kr.
18.500.000 kr.
63.4 m²
291.798 kr.
Byggt á upplýsingum úr Þjóðskrá Íslands frá 2006-2026