Upplýsingar
Byggt 1914
162,1 m²
6 herb.
2 baðherb.
5 svefnh.
Þvottahús
Sérinngangur
Lýsing
FRÁBÆR STAÐSETNING - TVÆR ÍBÚÐIR!
Glæsilegt sérbýli í 101 Rvk, með aukaíbúð á jarðhæð, Grill-sólpallur og sér bílastæði undir húsinu - Eignarlóð.
Samkvæmt skráningu Þjóðskrár Íslands er birt flatarmál eignarinnar 162,1 fm.
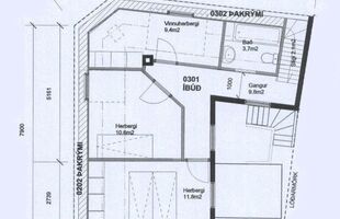
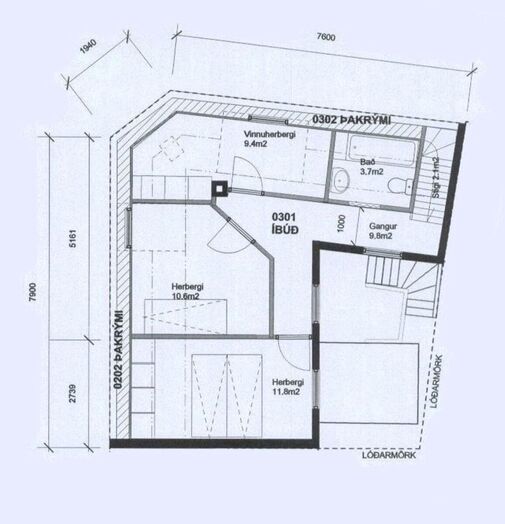
Eignin hefur að geyma fjögur svefnherbergi, tvöfalda stofu á miðhæð þar sem eldhúsið er opið í stofurnar. Sér lítil íbúð er á jarðhæð með sérinngangi. Frábær sólpallur og einkabílastæði í lokuðu porti.
- Tveir inngangar eru í húsið, bæði frá götunni og svo að baka til.
Gengið er inn úr bakgarði í aðalrými hússins, þar sem sólpallurinn er. Stofurnar eru rúmgóðar, parketlagðar og er eldhúsið opið inn í stofuna, í eldhúsinu er mikið vinnupláss. Á efri hæðinni eru þrjú svefnherbergi og baðherbergi. Sér lítil íbúð er svo á jarðhæðinni með einu svefnherbergi.
Svenherbergisálma: Upprunalegar gólffjalir á gólfum, þrjú góð svefnherbergi og gott skápapláss. Á baðherbergi er baðkar með sturtu.
Eldhús: Parket, falleg innrétting með góðu skápaplássi, gaseldavél og mikið vinnupláss.
Stofur: Miðhæðin er öll parketlögð með gegnheilu eikarparketi, stofurnar eru rúmgóðar og útgengt út á sólpall.
Þvottahús: Innangengt úr porti eða úr íbúðinni niðri.
Íbúðin á jarðhæð: Glæsileg, öll flísalögð, mjög rúmgott herbergi, baðherbergi með sturtu og eldhús með lítilli innréttingu.
Sér bílastæði fylgir eigninni i lokuðu porti.
- Ljósleiðari er kominn inn í húsið.
- Gangstéttin fyrir framan húsið er upphituð.
- Auðvelt er að breyta íbúðunum í eina íbúð.
Að sögn eiganda er mikið búið að endurnýja; skolplagnir og rafmagn einhverntíma fyrir árið 2004 en það ár var miðhæðin endurnýjuð að miklu leyti og árið 2005 var drenað við húsið. Árið 2010 voru klóakrör gerð upp á lóðinni utanhúss. Árið 2012 voru svalir stækkaðar. Árið 2014 var þakið málað og árið 2023 var sjálft húsið málað.
ATH! Vinsæl staðsetning í miðbænum í Reykjavík í nálægð við fjölbreytta þjónustu s.s. skóla, leikskóla, verslun, veitingastaði og menningarsvæði, ásamt því að stutt er í miðbæinn með allt sem hann hefur upp á að bjóða ofl.
Allar nánari uppl. og skoðun veitir: Jóhann Friðgeir, lgf GSM: 896-3038 e-mail: johann@hofdi.is
Glæsilegt sérbýli í 101 Rvk, með aukaíbúð á jarðhæð, Grill-sólpallur og sér bílastæði undir húsinu - Eignarlóð.
Samkvæmt skráningu Þjóðskrár Íslands er birt flatarmál eignarinnar 162,1 fm.
Eignin hefur að geyma fjögur svefnherbergi, tvöfalda stofu á miðhæð þar sem eldhúsið er opið í stofurnar. Sér lítil íbúð er á jarðhæð með sérinngangi. Frábær sólpallur og einkabílastæði í lokuðu porti.
- Tveir inngangar eru í húsið, bæði frá götunni og svo að baka til.
Gengið er inn úr bakgarði í aðalrými hússins, þar sem sólpallurinn er. Stofurnar eru rúmgóðar, parketlagðar og er eldhúsið opið inn í stofuna, í eldhúsinu er mikið vinnupláss. Á efri hæðinni eru þrjú svefnherbergi og baðherbergi. Sér lítil íbúð er svo á jarðhæðinni með einu svefnherbergi.
Svenherbergisálma: Upprunalegar gólffjalir á gólfum, þrjú góð svefnherbergi og gott skápapláss. Á baðherbergi er baðkar með sturtu.
Eldhús: Parket, falleg innrétting með góðu skápaplássi, gaseldavél og mikið vinnupláss.
Stofur: Miðhæðin er öll parketlögð með gegnheilu eikarparketi, stofurnar eru rúmgóðar og útgengt út á sólpall.
Þvottahús: Innangengt úr porti eða úr íbúðinni niðri.
Íbúðin á jarðhæð: Glæsileg, öll flísalögð, mjög rúmgott herbergi, baðherbergi með sturtu og eldhús með lítilli innréttingu.
Sér bílastæði fylgir eigninni i lokuðu porti.
- Ljósleiðari er kominn inn í húsið.
- Gangstéttin fyrir framan húsið er upphituð.
- Auðvelt er að breyta íbúðunum í eina íbúð.
Að sögn eiganda er mikið búið að endurnýja; skolplagnir og rafmagn einhverntíma fyrir árið 2004 en það ár var miðhæðin endurnýjuð að miklu leyti og árið 2005 var drenað við húsið. Árið 2010 voru klóakrör gerð upp á lóðinni utanhúss. Árið 2012 voru svalir stækkaðar. Árið 2014 var þakið málað og árið 2023 var sjálft húsið málað.
ATH! Vinsæl staðsetning í miðbænum í Reykjavík í nálægð við fjölbreytta þjónustu s.s. skóla, leikskóla, verslun, veitingastaði og menningarsvæði, ásamt því að stutt er í miðbæinn með allt sem hann hefur upp á að bjóða ofl.
Allar nánari uppl. og skoðun veitir: Jóhann Friðgeir, lgf GSM: 896-3038 e-mail: johann@hofdi.is