Löggiltir fasteignasalar innan Félags fasteignasala:
Björn Guðmundsson
Berglind Jónasardóttir
Greta Huld Mellado
Vista
svg

39

svg

35  Skoðendur

svg

Skráð  6. feb. 2026

fjölbýlishús

Hulduholt 2 - 103

603 Akureyri

119.680.000 kr.

850.000 þ.kr./m2
Fasteignanúmer

F2527501

Fasteignamat

69.600.000 kr.

Brunabótamat

102.900.000 kr.

Áhvílandi

0 kr.

Arion banki – Reikna lán
Upplýsingar
svg
Byggt 2024
svg
140,8 m²
svg
4 herb.
svg
2 baðherb.
svg
3 svefnh.
svg
Þvottahús
svg
Sameiginl. inngangur
svg
Bílastæði
svg
Lyfta

Lýsing

    

Fasteignasalan Byggð 464-9955 

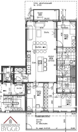
Hulduholt 2 - 103 (Nýbygging)

Glæsileg og vönduð fjögurra herbergja íbúð á jarðhæð í nýju fjölbýli í Holtahverfi. Eignin er samtals 140,8 fm. þar af geymsla í sameignarrými 12,8 fm.. Bílastæði í bílakjallara fylgir eigninni merkt B09. Úr íbúð er útgengt út á steypta verönd til austurs sem og flísalagða verönd til suðvesturs auk sérafnotaflatar sem er hellulagður. 


***Ath. myndir eru úr sýningaríbúð og því einungis til viðmiðunar og til að sýna efnisval***

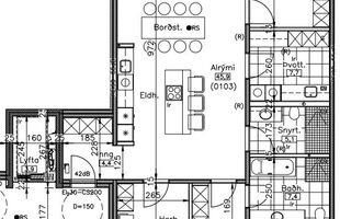
Eignin skiptist í anddyri, eldhús, stofu, þrjú svefnherbergi og tvö baðherbergi (annað inn af hjónaherbergi) og þvottahús.

Í forstofu er vinylparket á gólfi og fataskápar.
Í stofu er vinylparket á gólfi, hljóðdúkur í lofti, innfelld lýsing og gólfsíðir gluggar. Þaðan er útgengt um rennihurð út á verönd sem snýr til suðvesturs
Í eldhúsi eru innréttingar sérsmíðaðar úr harðspón, ljós eik. Bekkplötur eru úr stein. Í eldhúsinnréttingu er svart keramikhelluborð með innbyggðri viftu, bakaraofn, sambyggður bakarofn/örbylgjuofn, innbyggður ísskápur með frystihólfi, innbyggð uppþvottavél og stálvaskur. Hljóðdúkur í lofti, innfeld lýsing auk kastarabrautar yfir eyju.
Svefnherbergi eru með vinylparket á gólfi, sérsmíðaða skápa, hljóðdúkur í lofti og innfeld lýsing.
Á baðherbergjum eru innréttingar sérsmíðaðar úr harðspón, ljósar að lit. Flísar eru bæði á gólfum og veggjum. Í baðherbergi inn af hjónaherbergi er bæði sturta og baðkar.
Þvottahús er með flísar á gólfi, mjög rúmgóðar innréttingar með stæði fyrir þvottavél og þurrkara auk vasks. 

Í bílakjallara fylgir eigninni eitt bílastæði merkt á teikningu í myndasafni. Búið er að koma fyrir lögn fyrir hleðslustöð við bílastæði.

Rúmgóð 12,8 fm. geymsla fylgir eigninni og er hún staðsett í kjallara. Auk þess er sameiginleg hjóla- og vagnageymsla.

Annað:
-Loftskiptikerfi er sjálfstætt fyrir hverja íbúð
-Allar innihurðir eru sérsmíðaðar af Húsheild/Hyrnu, ljósar að lit, ná alla leið upp í loft og með innfelldum lömum.
-Allar innréttingar eru sérsmiðaðar af Húsheild/Hyrnu
-Parket er lagt með fiskibeinamynstri
-Mikið lagt upp úr hljóðvist 
-KNX ljósastýring
-Hitanemar fyrir gólfhita í ljósrofum
-Læstir djúpgámar við endan á bílaplani
-Hiti í innkeyrslu að bílakjallara
-Mjög rúmgóður bílakjallari með tveimur akgreinum
-Mjög snyrtileg sameign sem verður með veggfóðri á veggjum og teppi á stigum

Nánar:
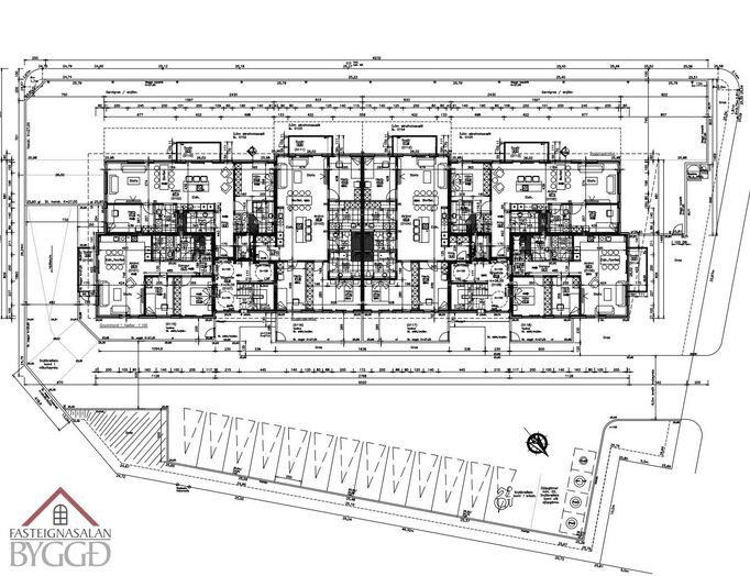
Skilalýsing fjölbýlishúss við Hulduholt 2


Húsið er úr krosslímdu timbureiningum, einangrað að utan og klætt með alubond álklæðningu. 
Bílastæði:  Eitt stæði fylgir hverri íbúð í bílakjallara og sameiginleg stæði á malbikuðu bílaplani framan við hús. Snjóbræðsla er í aðkeyrslu að bílakjallara. 
Lyftur: Lyftur frá Héðinn/Schindler er í báðum stigahúsum. 
Kjallari: Hjóla- og vagnageymsla er með steyptu gólfi með epoxy. Geymslur eru með loftræstar og er epoxy á gólfum.
Stigahús: Flísar eru á gólfum á jarðhæð teppi á stigum og stigapöllum. Hönnun stigahúsa er hlý og heimilisleg. Í stigahúsum er hljóðdúkur í loftum og innfeld lýsing.
Forstofa: Í forstofu eru fataskápar og flísar á gólfum.
Baðherbergi: Baðinnréttingar eru sérsmíðaðar af Húsheild/Hyrnu úr harðspón, ljósar að lit.
Þrýstiopnun á innréttingu. Bekkplata úr steini. Spegill við innréttingu innfeld lýsing. Flísar á veggjum og gólfi. Vegghengt klósett, glerveggir í sturtu, innfeld blöndunartæki af vandaðri gerð. Hljóðdúkur í lofti innfelld lýsing.
Eldhús: Allar innréttingar eru sérsmíðaðar af Húsheild/Hyrnu úr harðspón, hægt er að velja um ljósa eða dökka eik. Bekkplötur eru úr stein.  Skúffubrautir, hengsli eru af viðurkenndri og vandaðri gerð. Þrýstiopnun á innrétingu. Í eldhúsinnréttingu er svart keramikhelluborð með innbygðri viftu, bakaraofn,sambyggður bakarofn/örbylgjuofn, innbyggður ísskápur með fristihólfi innbyggð uppþvottavél og stálvaskur. Hljóðdúkur í lofti innfeld lýsing.
Herbergi: Skápar eru sérsmíðaðar af Húsheild/Hyrnu úr harðspón, hægt er að velja um ljósa eða dökka eik.Þrýstiopnun á skápum. Í herbergjum vinilparket með fiskibeinamunstri. Hljóðdúkur í lofti innfeld lýsing.
Þvottahús: Í þvotthúsi er þvottatækjainnrétting. Allar innréttingar eru sérsmíðaðar af Húsheild/Hyrnu úr harðspón, hægt er að velja um ljósa eða dökka eik. Þrýstiopnun á innréttingu. Í þvottahúsi er skolvaskur úr stáli. Flísar á gólfi. Hljóðdúkur í lofti innfeld lýsing.
Innihurðir: Eru sérsmíðaðar af Húsheild/Hyrnu, hægt er að velja um ljósa eða dökka eik. Innfelldar lamir í hurðum.
Upphitun: Íbúðirnar eru með gólfhita en í bílakjallara eru vatnshitablásarar. 
Loftskiptakerfi: Loftskiptakerfi er í öllum íbúðum.
Raflögn: Öll raflögn er fullfrágengin þ.e. tengt í allar dósir og rofar komnir á sinn stað. Síma- og sjónvarpslagnir í stofurými og herbergjum. Kappalýsing er á baðherbergi og allrými, einnig fylgja loftljós í þvottahúsi og baðherbergi. Reiknað er með lögn fyrir hleðslustöð í bílastæði.
Sorpgeymsla: Djúpgámar eru við enda bílastæðis til norðurs. 
 
Íbúðin er til afhendingar í apríl/maí

Byggingaraðili er Húsheild/Hyrna


Gjöld sem kaupandi þarf að standa straum af vegna kaupanna:  
1. Stimpilgjald af kaupsamningi - 0.8% af heildarfasteignamati / 1.6% fyrir lögaðila.    (0.4% við fyrstu kaup einstaklinga m.v. að lágmarki 50% eignarhlut).
2. Þinglýsingagjald af kaupsamningi, veðskuldabréfi, veðleyfi o.fl.- kr. 2.700 af hverju skjali.
3. Lántökugjald lánastofnunar -almennt 0,5-1,0% af höfuðstól skuldabréfs (nánari upplýsingar m.a. á heimasíðum lánastofnanna).
4. Umsýsluþóknun til fasteignasölu, sbr.kauptilboð. 


Frekari upplýsingar:
olafur@byggd.is
bjorn@byggd.is
greta@byggd.is

Skipagötu 16 á 2. hæð.
S:464 9955 


 

Byggð fasteignasala

Byggð fasteignasala

Skipagata 16, 600 Akureyri
phone
Byggð fasteignasala

Byggð fasteignasala

Skipagata 16, 600 Akureyri
phone