Löggiltir fasteignasalar innan Félags fasteignasala:
Sigurður Maack Gunnarsson
Svanþór Einarsson
Theodór Emil Karlsson
Steingrímur Benediktsson
Vista
fjölbýlishús

Hulduhlíð 9

270 Mosfellsbær

70.600.000 kr.

839.477 þ.kr./m2
Fasteignanúmer

F2239990

Fasteignamat

67.650.000 kr.

Brunabótamat

42.300.000 kr.

Áhvílandi

0 kr.

Arion banki – Reikna lán
Upplýsingar
Verðsaga
svg
Byggt 1999
svg
84,1 m²
svg
3 herb.
svg
1 baðherb.
svg
2 svefnh.
svg
Þvottahús
Opið hús: 10. febrúar 2026 kl. 16:30 til 17:00

Lýsing

** Opið hús þriðjudaginn 10. febrúar frá kl. 16:30 til 17:00 - Svanþór Einarsson, löggiltur fasteignasali - svanthor@fastmos.is eða 698-8555 - Theodór Emil Karlsson, löggiltur fasteignasali - teddi@fastmos.is eða 690-8040 - Steingrímur Benediktsson, löggiltur fasteignasali - steingrimur@fastmos.is eða 862-9416 **

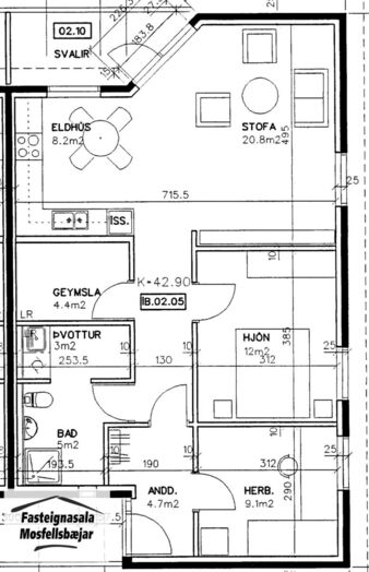
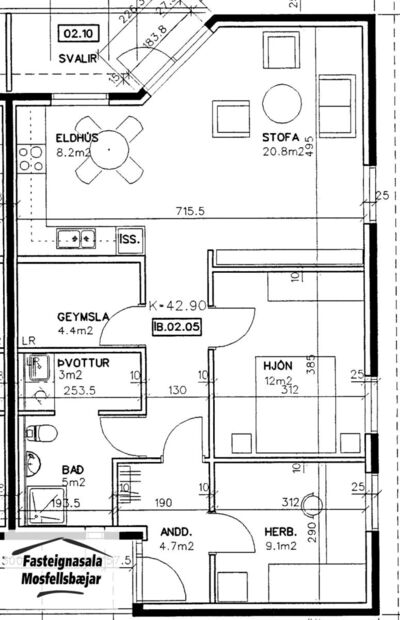
Fasteignasala Mosfellsbæjar kynnir: Falleg og vel skipulögð 84,1 m2, 3ja herbergja endaíbúð á efri hæð með sérinngangi af svalagangi við Hulduhlíð 9 í Mosfellsbæ. Eignin skiptist í forstofu, gang, stofu, eldhús, tvö svefnherbergi, baðherbergi og þvottahúsi inn af baði. Góðar svalir til suðurs og sérmerkt bílastæði á lóð framan við hús. Frábær staðsetning þar sem stutt er í grunnskóla, leikskóla, sundlaug, líkamsrækt, golfvöll og fallegar gönguleiðir í næsta nágrenni.
Samkvæmt upplýsingum frá seljanda var þak hreinsað og málað fyrir ca. 4 árum. Haustið 2025 voru þakrennur yfirfaranar og hreinsaðar.

Smelltu hér til að fá söluyfirlit sent

Nánari lýsing:
Forstofa er með flísum á gólfi og fataskáp.
Gangur er með parketi á gólfi.
Stofa er opin við eldhús, björt með glugga á tveimur hliðum og parketi á gólfi. Útgengt er úr stofu á svalir til suðurs.
Eldhús er með parketi á gólfi og L-laga innréttingu með uppþvottavél, bakaraofni, helluborði og viftu. Gert er ráð fyrir ísskáp í innréttingu.
Svefnherbergi 1 (hjónaherbergi) er rúmgott með fataskáp og dúk á gólfi.
Svefnherbergi 2 er inn af forstofu með fataskáp og dúk á gólfi.
Baðherbergi er með flísum á gólfum og veggjum, innréttingu með handlaug, baðkar með sturtuaðstöðu, handklæðaofni og upphengdu salerni. Opnanlegur gluggi er á baðherbergi.
Þvottahús er inn af baðherbergi með dúk á gólfi aðstöðu fyrir þvottavél og þurrkara í vinnuhæð.
Geymsla er innan íbúðar og er einnig hægt að nýta sem skrifstofu eða gluggalaust herbergi.
Loft er yfir íbúðinni sem er notað í dag sem geymsluloft og er fellistigi á gangi til þess að komast þar upp.
Hjóla- og vagnageymsla er á jaðhæð framan við húseign.
Bílastæði merkt íbúð er framan við hús.

Verð kr. 70.600.000,- 



Um skoðunar- og aðgæsluskyldu:
Í lögum um fasteignakaup nr. 40/2002 er kveðið á um ríka skoðunarskyldu kaupenda á fasteignum. Fasteignasala Mosfellsbæjar skorar því á væntanlega kaupendur að kynna sér vel ástand fasteigna fyrir kauptilboðsgerð og leita til þar til bærra sérfræðinga um nánari skoðun ef með þarf.

Forsendur söluyfirlits:
Söluyfirlit er samið af fasteignasala í samræmi við ákvæði laga nr. 70/2015. Þær upplýsingar sem fram koma í söluyfirliti þessu eru sóttar í opinberar skrár, til seljanda sjálfs og eftir atvikum til húsfélags. Seljandi veitir upplýsingar um eign í samræmi við upplýsingaskyldu laga um fasteignakaup nr. 40/2002. Fasteignasali sannreynir að þær upplýsingar séu réttar með sjónskoðun á eigninni.
Fasteignasali getur ekki fullyrt um ástand og eiginleika þeirra hluta fasteigna sem ekki eru aðgengilegir og sjást ekki berum augum, t.d. lagnir, dren, skólp og þak.

Gjöld sem kaupandi þarf að greiða vegna kaupa:
1. Stimpilgjald af kaupsamningi sem er hlutfall af fasteignamati. Stimpilgjald er 0,8% fyrir einstaklinga (0,4% við fyrstu kaup) og 1,6% fyrir lögaðila.
2. Þinglýsingargjald af kaupsamningi, veðskuldabréfum, veðleyfum o.fl. Þinglýsingargjald er kr. 3.800,- fyrir hvert skjal.
3. Lántökugjald lánastofnunar - er skv. gjaldskrá viðkomandi lánastofnunar.
4. Umsýslugjald til fasteignasölu skv. kauptilboði.
5. Þegar um nýbyggingu er að ræða greiðir kaupandi skipulagsgjald, 0,3% af endanlegu brunabótamáti, þegar það er lagt á af viðkomandi sveitarfélagi.

Fasteignasala Mosfellsbæjar

Fasteignasala Mosfellsbæjar

Þverholti 2, 270 Mosfellsbæ
phone
Ár
Fasteignamat
Kaupverð
Stærð
Fermetraverð
20. okt. 2008
18.980.000 kr.
21.300.000 kr.
84.1 m²
253.270 kr.
Byggt á upplýsingum úr Þjóðskrá Íslands frá 2006-2026
Fasteignasala Mosfellsbæjar

Fasteignasala Mosfellsbæjar

Þverholti 2, 270 Mosfellsbæ
phone