Löggiltir fasteignasalar innan Félags fasteignasala:
Sigurður Maack Gunnarsson
Svanþór Einarsson
Theodór Emil Karlsson
Steingrímur Benediktsson
Vista
fjölbýlishús

Huldugata 8 (206)

270 Mosfellsbær

69.000.000 kr.

859.278 þ.kr./m2
Fasteignanúmer

F2536203

Fasteignamat

66.850.000 kr.

Brunabótamat

0 kr.

Áhvílandi

0 kr.

Arion banki – Reikna lán
Upplýsingar
svg
80,3 m²
svg
3 herb.
svg
1 baðherb.
svg
2 svefnh.
svg
Útsýni
svg
Sérinngangur
svg
Lyfta

Lýsing

** Hafðu samband og bókaðu skoðun - Theodór Emil Karlsson, löggiltur fasteignasali - teddi@fastmos.is eða 690-8040  ​- Svanþór Einarsson, löggiltur fasteignasali - svanthor@fastmos.is eða 698-8555 - Steingrímur Benediktsson, löggiltur fasteignasali - steingrimur@fastmos.is eða 862-9416 **
 
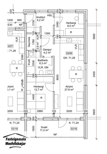
Fasteignasala Mosfellsbæjar kynnir: Falleg og vel skipulögð 80,3 m2 3ja herbergja endaíbúð á 2.hæð, merkt 01-0206, í nýju lyftuhúsi við Huldugötu 6-8 í Mosfellsbæ. Möguleiki á hlutdeildarláni. Eignin skiptist í forstofu, stofu, eldhús, 2 svefnherbergi, baðherbergi og geymslu. Rúmgóðar svalir í suðurátt. Eignin afhendist lok mars 2026 fullbúin með HTH innréttingum, gólfefnum, ísskáp, uppþvottavél, gardínum ásamt sambyggðri þvottavél og þurrkara.

** Eignin er eingöngu seld með hlutdeildarláni **


Smelltu hér til að fá söluyfirlit sent strax.

Nánari lýsing:
Forstofa er með flísum á gólfi og fataskáp
Stofa og eldhús í opnu rými með harðparketi á gólfi. Eldhúsinnrétting frá HTH með blástursofni, spanhelluborði, viftu frá Airforce, ísskáp og uppþvottavél. Heimilistæki frá AEG.  Úr stofu er gengið út á afgirta hellulagða verönd í suðurátt.
Svefnherbergi nr.1 (hjónaherbergi) er með harðparketi á gólfi og fataskáp.
Svefnherbergi nr.2 er með harðparketi á gólfi og fataskáp.
Baðherbergi er með flísum á gólfi og veggjum að hluta, upphengdu salerni, baðinnréttingu, handklæðaofn, sturtu með sturtugleri ásamt sambyggðri þvottavél og þurrkara.
Geymsla er innan íbúðar og með parketi á gólfi.
Á jarðhæð er sameiginleg vagna- og hjólageymsla.
 
Annað:
Huldugata 6-8 eru tvö 3ja hæða fjölbýlishús með 15 íbúðum hvor sem tengjast saman við hjóla- og vagnageymslu. Húsið er hannað af Garðari Snæbjörnssyni, arkitekt hjá GS-Teiknistofu ehf. Húsið er staðsteypt og einangrað að utan og klætt. Húsið er byggt af Byggingarfélagi Bakka ehf en Bakki er fjölskyldufyrirtæki úr Mosfellsbæ, með yfir 40 ára reynslu af húsbyggingum. Félagið hefur byggt og afhent yfir 240 íbúðir í Mosfellsbæ á sl. 9 árum.
Lóð verður fullfrágengin, 51 bílastæði eru á lóðinni en þar af eru 3 fyrir hreyfihamlaða. Gönguleið að húsi verður hellulögð með snjóbræðslu. Íbúðir á jarðhæð hafa sérafnotarétt að lóð út frá stofu með afgirtri hellulagðri verönd. Íbúðir á 2. og 3. hæð eru með rúmgóðum svölum í suðurátt.
Íbúðirnar afhendast fullbúnar með ljósum innréttingum frá HTH. Í eldhúsi verður spanhelluborð, ofn, vifta, ísskápur og uppþvottavél. Heimilistæki eru frá AEG. Eikarlitað harðparket á gólfum, frá Birgissyni ehf. Flísar á baðherbergjum, handklæðaofn, upphengt salerni og sturta með sturtugleri ásamt sambyggðri þvottavél og þurrkara. Gardínur verða í stofu- og svefnherbergisgluggum

Verð kr. 69.000.000,-



Um skoðunar- og aðgæsluskyldu:
Í lögum um fasteignakaup nr. 40/2002 er kveðið á um ríka skoðunarskyldu kaupenda á fasteignum. Fasteignasala Mosfellsbæjar skorar því á væntanlega kaupendur að kynna sér vel ástand fasteigna fyrir kauptilboðsgerð og leita til þar til bærra sérfræðinga um nánari skoðun ef með þarf.

Forsendur söluyfirlits:
Söluyfirlit er samið af fasteignasala í samræmi við ákvæði laga nr. 70/2015. Þær upplýsingar sem fram koma í söluyfirliti þessu eru sóttar í opinberar skrár, til seljanda sjálfs og eftir atvikum til húsfélags. Seljandi veitir upplýsingar um eign í samræmi við upplýsingaskyldu laga um fasteignakaup nr. 40/2002. Fasteignasali sannreynir að þær upplýsingar séu réttar með sjónskoðun á eigninni.
Fasteignasali getur ekki fullyrt um ástand og eiginleika þeirra hluta fasteigna sem ekki eru aðgengilegir og sjást ekki berum augum, t.d. lagnir, dren, skólp og þak.

Gjöld sem kaupandi þarf að greiða vegna kaupa:
1. Stimpilgjald af kaupsamningi sem er hlutfall af fasteignamati. Stimpilgjald er 0,8% fyrir einstaklinga (0,4% við fyrstu kaup) og 1,6% fyrir lögaðila.
2. Þinglýsingargjald af kaupsamningi, veðskuldabréfum, veðleyfum o.fl. Þinglýsingargjald er kr. 3.800,- fyrir hvert skjal.
3. Lántökugjald lánastofnunar - er skv. gjaldskrá viðkomandi lánastofnunar.
4. Umsýslugjald til fasteignasölu skv. kauptilboði.
5. Þegar um nýbyggingu er að ræða greiðir kaupandi skipulagsgjald, 0,3% af endanlegu brunabótamáti, þegar það er lagt á af viðkomandi sveitarfélagi.

img
Svanþór Einarsson
Lögg.fasteignasali innan félags fasteignasala
Fasteignasala Mosfellsbæjar
Þverholti 2, 270 Mosfellsbæ
Fasteignasala Mosfellsbæjar

Fasteignasala Mosfellsbæjar

Þverholti 2, 270 Mosfellsbæ
phone
img

Svanþór Einarsson

Þverholti 2, 270 Mosfellsbæ
Fasteignasala Mosfellsbæjar

Fasteignasala Mosfellsbæjar

Þverholti 2, 270 Mosfellsbæ
phone

Svanþór Einarsson

Þverholti 2, 270 Mosfellsbæ