Upplýsingar
Byggt 2025
124,4 m²
4 herb.
2 baðherb.
3 svefnh.
Þvottahús
Sameiginl. inngangur
Bílastæði
Lyfta
Laus strax
Lýsing
Betri Stofan Fasteignasala kynnir: Glæsilegar nýjar íbúðir við Vetrarbraut 2-4, í nýju og heillandi hverfi við golfvöll GKG í Garðabæ.
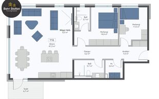
Íbúð 213 er 124,4 fermetra fjögurra herberegja íbúð á 2. hæð. Steinn á borðplötum eldhúsa og loftskiptikerfi í íbúð. Eigninni fylgir frístundaskúr ásamt bílastæði í lokaðri bílageymslu. Sérafnotareitur og svalir.
www.vetrarbraut.is
Nánari lýsing:
Eignin skiptist í anddyri, gestasnyrtingu, eldhús, borðstofu og stofu í rúmgóðu og björtu alrými þaðan sem gengið er út á rúmgóðar svalir og sérafnotareit, svefnherbergi með góðum fataskápum, tvö auka herbergi með fataskáp, baðherbergi og þvottahús. Í sameign er hjóla og vagnageymsla. Eigninni fylgir sér bílastæði í lokaðri bílageymslu ásamt 18,2 fm. frístundaskúr.
Eldhús er vel útbúið, sérsmíðaðar Voke III innréttingar, á borðplötum er kvarts steinn. Vönduð tæki eru í eldhúsi, innbyggður ísskápur og uppþvottavél. ofn í vinnuhæð, eldhús- og blöndunartæki að vandaðri gerð.
Íbúðin skilast án gólfefna utan baðherbergja og þvottahús sem skilast flísalögð.
Rými eru hönnuð með áherslu á loftgæði, hljóðvist og náttúrulega birtu. Hver íbúð hefur loftskiptikerfi sem stjórnað er innan íbúðar, slíkt eykur loftgæði og stuðlar að heilnæmu innilofti.
Húsið er klætt flísum og álkæðningu, slétt og bára. klæðningar eru í mismunandi litum, náttúrulegum jarðlitum sem tengir bygginguna umhverfinu, lögð er áhersla á að húsin séu viðhaldslétt, flísar og álklæðningar og ál/tré gluggar.
Um er að ræða bjartar og fallegar íbúðir í vandaðri nýbyggingu í einstöku umhverfi, nálægð við Golfvöll GKG, útivistarsvæði Heiðmerkur, nýja íþróttaaðstöðu Stjörnunnar svo fátt sé upptalið í skemmtilegu nýju hverfi.
Með öllum íbúðum fylgir bílastæði í lokaðri bílageymslu í það minnsta eitt fyrir hverja íbúð og fylgja bílskúrar sumum íbúðum að auki.
Vandað hefur verið að allri hönnun innan sem utan.
Byggingar eru hannaðar af Arkís, aðalhönnuður er Arnar Þór Jónsson arkitekt og hafði Thelma Guðmundsdóttir innanhúsarkitekt umsjón með innanhúshönnun. Hverfið í heild, Vetrarmýri, er hannað af Sigurði Einarssyni arkitekt og skipulagshönnuði hjá Batteríinu.
Nánari upplýsingar veita:
Jason Kristinn Ólafsson, í síma 775-1515, tölvupóstur jason@betristofan.is
Guðbjörg Guðmundsdóttir, í síma 899-5533, tölvupóstur gudbjorg@betristofan.is.
Dagrún Davíðsdóttir, í síma 866-1763, tölupóstur dagrun@betristofan.is
Þórhallur Biering Guðjónsson, í síma 896-8232, tölvupóstur thorhallur@betristofan.is
Íbúð 213 er 124,4 fermetra fjögurra herberegja íbúð á 2. hæð. Steinn á borðplötum eldhúsa og loftskiptikerfi í íbúð. Eigninni fylgir frístundaskúr ásamt bílastæði í lokaðri bílageymslu. Sérafnotareitur og svalir.
www.vetrarbraut.is
Nánari lýsing:
Eignin skiptist í anddyri, gestasnyrtingu, eldhús, borðstofu og stofu í rúmgóðu og björtu alrými þaðan sem gengið er út á rúmgóðar svalir og sérafnotareit, svefnherbergi með góðum fataskápum, tvö auka herbergi með fataskáp, baðherbergi og þvottahús. Í sameign er hjóla og vagnageymsla. Eigninni fylgir sér bílastæði í lokaðri bílageymslu ásamt 18,2 fm. frístundaskúr.
Eldhús er vel útbúið, sérsmíðaðar Voke III innréttingar, á borðplötum er kvarts steinn. Vönduð tæki eru í eldhúsi, innbyggður ísskápur og uppþvottavél. ofn í vinnuhæð, eldhús- og blöndunartæki að vandaðri gerð.
Íbúðin skilast án gólfefna utan baðherbergja og þvottahús sem skilast flísalögð.
Rými eru hönnuð með áherslu á loftgæði, hljóðvist og náttúrulega birtu. Hver íbúð hefur loftskiptikerfi sem stjórnað er innan íbúðar, slíkt eykur loftgæði og stuðlar að heilnæmu innilofti.
Húsið er klætt flísum og álkæðningu, slétt og bára. klæðningar eru í mismunandi litum, náttúrulegum jarðlitum sem tengir bygginguna umhverfinu, lögð er áhersla á að húsin séu viðhaldslétt, flísar og álklæðningar og ál/tré gluggar.
Um er að ræða bjartar og fallegar íbúðir í vandaðri nýbyggingu í einstöku umhverfi, nálægð við Golfvöll GKG, útivistarsvæði Heiðmerkur, nýja íþróttaaðstöðu Stjörnunnar svo fátt sé upptalið í skemmtilegu nýju hverfi.
Með öllum íbúðum fylgir bílastæði í lokaðri bílageymslu í það minnsta eitt fyrir hverja íbúð og fylgja bílskúrar sumum íbúðum að auki.
Vandað hefur verið að allri hönnun innan sem utan.
Byggingar eru hannaðar af Arkís, aðalhönnuður er Arnar Þór Jónsson arkitekt og hafði Thelma Guðmundsdóttir innanhúsarkitekt umsjón með innanhúshönnun. Hverfið í heild, Vetrarmýri, er hannað af Sigurði Einarssyni arkitekt og skipulagshönnuði hjá Batteríinu.
Nánari upplýsingar veita:
Jason Kristinn Ólafsson, í síma 775-1515, tölvupóstur jason@betristofan.is
Guðbjörg Guðmundsdóttir, í síma 899-5533, tölvupóstur gudbjorg@betristofan.is.
Dagrún Davíðsdóttir, í síma 866-1763, tölupóstur dagrun@betristofan.is
Þórhallur Biering Guðjónsson, í síma 896-8232, tölvupóstur thorhallur@betristofan.is
Gjöld sem kaupandi þarf að standa straum af ef að kaupum verður:
1. Stimpilgjald af fasteignamati fasteignar er 0.8%, en 0,4% fyrir fyrstu kaup og 1,6% fyrir lögaðila.
2. Þinglýsingargjald: kaupsamningi, skuldabréfi, veðleyfi, afsali o.s.frv. er kr. 3.800 af hverju skjali.
3. Lántökukostnaður samkvæmt verðskrá viðkomandi lánastofnunar.
4. Umsýslugjald til fasteignasölu skv. gjaldskrá.
Skoðunarskylda kaupanda:
Í lögum um fasteignakaup nr. 40/2002 er kveðið á um ríka skoðunarskyldu kaupenda á fasteignum. Betri Stofan fasteignasala bendir væntanlegum kaupendum á að kynna sér vel ástand fasteigna við skoðun og fyrir tilboðsgerð og ef þurfa þykir að leita til sérfræðinga um nánari ástandsskoðun.