Upplýsingar
Verðsaga
Byggt 2013
131,2 m²
5 herb.
1 baðherb.
3 svefnh.
Þvottahús
Sameiginl. inngangur
Bílastæði
Lyfta
Lýsing
Elka Guðmundsdóttir lgf. s. 863-8813 hjá Fasteignasölunni TORG kynnir:
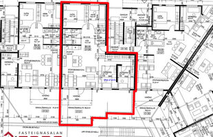
Einstaklega fallega og vel skipulagða 4–5 herbergja íbúð á eftirsóttum stað við Löngulínu 19 í Sjálandshverfi Garðabæjar. Íbúðin er í vönduðu fjölbýli með lyftu og er heildarstærð hennar 131,2 m².
Stór verönd til suðurs, að hluta til yfirbyggð, sem nýtist afar vel allan ársins hring. Íbúðinni fylgir stæði í upphitaðri bílageymslu.
Athugið: Eignin verður ekki sýnd fyrr en á opnu húsi 18. febrúar kl. 17:00.
Nánari lýsing
Íbúðin er björt og rúmgóð með fallegum innréttingum frá Brúnás og vönduðum gólfefnum. Stofa og eldhús mynda fallegt, opið og bjart alrými með útgengi á verönd.
Eldhús: Falleg hvítsprautuð Brúnás-innrétting með flísum á milli skápa, fræstar höldum á skápum og skúffum. góð vinnuaðstaða og eldunareyja. Vönduð eldhústæki, þar á meðal 5 brennara gas helluborð frá Smeg á eyju, ofn og innbyggð uppþvottavél frá Miele. Mikið skápapláss og góð lýsing. Mora blöndunartæki frá Tengi.
Stofa: Mjög rúmgóð og björt með útgengi á stóra suðurverönd. Kährs olíuborið parket frá Birgisson á gólfi í allri íbúð fyrir utan baðherbergi og þvottahús.
Ca 50 fm sólpallur sem snýr í suður sem haldið hefur verið vel við. Glerlokun á hluta sólpalls, upphengdir hitarar í lofti, glerlokun opnanleg að fullu allan hringinn.
Svefnherbergi: Núverandi skipulag býður upp á 3 rúmgóð svefnherbergi með parketi og fataskápum. Samkvæmt teikningum er gert ráð fyrir fjórða svefnherberginu.
Baðherbergi: Rúmgott með innréttingu frá Brúnás með fræstum höldum líkt og í eldhúsi. Vegghengt og innbyggt salerni, handklæðaofn og baðkar með sturtugleri. Steinflísar frá Birgisson á gólfi og veggjum. Mora blöndunartæki frá Tengi.
Þvottaherbergi: Flísalagt með innréttingu og samskonar flísum frá Birgison á gólfi og veggjum og eru á baðherbergi.
Forstofa Með fataskápum.
Íbúðinni fylgir stæði í upphitaðri bílageymslu með rafmagni fyrir hleðslu rafmagnsbíla. 9,3 m² sérgeymsla, auk sameiginlegrar hjóla- og vagnageymslu.
Húsið er byggt af BYGG, sameign er snyrtileg og vel við haldið. Mynddyrasími er í húsinu.
Sjálandshverfið er eitt vinsælasta hverfi Garðabæjar þar sem stutt í leikskóla og Sjálandsskóla. Fallegar gönguleiðir með sjónum
Rólegt og fjölskylduvænt umhverfi
Hér er um að ræða afar vandaða eign á einstökum stað þar sem sameinast rými, gæði og frábær staðsetning.
Nánari upplýsingar veitir Elka í síma 863-8813 // netfangið elka@fstorg.is
Um skoðunar- og aðgæsluskyldu:
Í lögum um fasteignakaup nr. 40/2002 er kveðið á um ríka skoðunarskyldu kaupenda á fasteignum. Væntanlegum kaupendum er bent á að kynna sér vel ástand fasteigna við skoðun og fyrir tilboðsgerð og ef þurfa þykir að leita til sérfræðinga um nánari ástandsskoðun. Almennt getur kaupandi ekki borið fyrir sig að ástand eignar sé annað en það sem hann hefði mátt sjá við slíka skoðun.
Forsendur söluyfirlits:
Söluyfirlit er samið af fasteignasala í samræmi við ákvæði laga nr. 70/2015. Þær upplýsingar sem fram koma í söluyfirliti þessu eru sóttar í opinberar skrár, til seljanda sjálfs og eftir atvikum til húsfélags. Seljandi veitir upplýsingar um eign í samræmi við upplýsingaskyldu laga um fasteignakaup nr. 40/2002, og ábyrgist að þær séu réttar. Fasteignasali sannreynir að þær upplýsingar séu réttar með sjónskoðun á eigninni. Fasteignasali getur ekki fullyrt um ástand og eiginleika þeirra hluta fasteigna sem ekki eru aðgengilegir og sjást ekki berum augum, t.d. lagnir, dren, skólp og þak. Það sama á við um staðhæfingar seljanda eignar um viðhald og einstaka framkvæmdir.
Almennt um fylgifé íbúðarhúsnæðis:
Til fylgifjár íbúðarhúsnæðis teljast varanlegar innréttingar og búnaður sem annaðhvort er skeytt varanlega við fasteignina eða er sérstaklega sniðinn að henni. Þetta á meðal annars við um fastan búnað og lagnir til hitunnar og vatnsmiðlunar, rafmagnsvirki og leiðslur, loftnet og annan móttökubúnað í eigu seljanda, sem fest eru á fasteign, föst gólfteppi og önnur gólfefni sérstaklega tilsniðin, gluggabúnað, bað- og eldhúsinnréttingar og tæki og vélar sem eru sérstaklega felld inn í innréttingarnar og verða hluti af þeim og aðra innbyggða hluta.
Um ástand einstakra eignarhluta:
Efst í söluyfirlitli þessu er að finna dálka um ástand einstakra hluta eignarinnar. Eftirfarandi lykil er til skýringar á þeirri skráningu:
Nýtt - Eignin er nýbygging.
Upprunalegt - Seljandi veit ekki til þess að byggingarhluti hafi verið endurnýjaður.
Endurnýjað - Byggingarhlutinn hefur verið endurnýjaður í heild sinni á einhverjum tímapunkti.
Endurnýjað að hluta - Hluti byggingarhlutans hefur verið endurnýjaður á einhverjum tímapunkti.
Ekki vitað - Seljandi þekkir ekki til ástands og ekki er hægt að leggja mat á það með sjónskoðun.
Gjöld sem kaupandi þarf að standa straum af vegna kaupanna:
Stimpilgjald af kaupsamningi sem er hlutfall af fasteignamati. Stimpilgjald er 0,8% fyrir einstaklinga (0,4% við fyrstu kaup) og 1,6% fyrir lögaðila.
Þinglýsingargjald af kaupsamningi, veðskuldabréfum, veðleyfum o.fl. Þinglýsingargjald er kr. 3.800,- fyrir hvert skjal.
Lántökugjald lánastofnunar. Um lántökugjald vísast í gjaldskrá viðkomandi lánveitanda.
Umsýsluþóknun fasteignasölu skv. gjaldskrá.
Ef um nýbyggingu er að ræða greiðir kaupandi skipulagsgjald, 0,3% af brunabótamáti, þegar það er lagt á.
Einstaklega fallega og vel skipulagða 4–5 herbergja íbúð á eftirsóttum stað við Löngulínu 19 í Sjálandshverfi Garðabæjar. Íbúðin er í vönduðu fjölbýli með lyftu og er heildarstærð hennar 131,2 m².
Stór verönd til suðurs, að hluta til yfirbyggð, sem nýtist afar vel allan ársins hring. Íbúðinni fylgir stæði í upphitaðri bílageymslu.
Athugið: Eignin verður ekki sýnd fyrr en á opnu húsi 18. febrúar kl. 17:00.
Nánari lýsing
Íbúðin er björt og rúmgóð með fallegum innréttingum frá Brúnás og vönduðum gólfefnum. Stofa og eldhús mynda fallegt, opið og bjart alrými með útgengi á verönd.
Eldhús: Falleg hvítsprautuð Brúnás-innrétting með flísum á milli skápa, fræstar höldum á skápum og skúffum. góð vinnuaðstaða og eldunareyja. Vönduð eldhústæki, þar á meðal 5 brennara gas helluborð frá Smeg á eyju, ofn og innbyggð uppþvottavél frá Miele. Mikið skápapláss og góð lýsing. Mora blöndunartæki frá Tengi.
Stofa: Mjög rúmgóð og björt með útgengi á stóra suðurverönd. Kährs olíuborið parket frá Birgisson á gólfi í allri íbúð fyrir utan baðherbergi og þvottahús.
Ca 50 fm sólpallur sem snýr í suður sem haldið hefur verið vel við. Glerlokun á hluta sólpalls, upphengdir hitarar í lofti, glerlokun opnanleg að fullu allan hringinn.
Svefnherbergi: Núverandi skipulag býður upp á 3 rúmgóð svefnherbergi með parketi og fataskápum. Samkvæmt teikningum er gert ráð fyrir fjórða svefnherberginu.
Baðherbergi: Rúmgott með innréttingu frá Brúnás með fræstum höldum líkt og í eldhúsi. Vegghengt og innbyggt salerni, handklæðaofn og baðkar með sturtugleri. Steinflísar frá Birgisson á gólfi og veggjum. Mora blöndunartæki frá Tengi.
Þvottaherbergi: Flísalagt með innréttingu og samskonar flísum frá Birgison á gólfi og veggjum og eru á baðherbergi.
Forstofa Með fataskápum.
Íbúðinni fylgir stæði í upphitaðri bílageymslu með rafmagni fyrir hleðslu rafmagnsbíla. 9,3 m² sérgeymsla, auk sameiginlegrar hjóla- og vagnageymslu.
Húsið er byggt af BYGG, sameign er snyrtileg og vel við haldið. Mynddyrasími er í húsinu.
Sjálandshverfið er eitt vinsælasta hverfi Garðabæjar þar sem stutt í leikskóla og Sjálandsskóla. Fallegar gönguleiðir með sjónum
Rólegt og fjölskylduvænt umhverfi
Hér er um að ræða afar vandaða eign á einstökum stað þar sem sameinast rými, gæði og frábær staðsetning.
Nánari upplýsingar veitir Elka í síma 863-8813 // netfangið elka@fstorg.is
Um skoðunar- og aðgæsluskyldu:
Í lögum um fasteignakaup nr. 40/2002 er kveðið á um ríka skoðunarskyldu kaupenda á fasteignum. Væntanlegum kaupendum er bent á að kynna sér vel ástand fasteigna við skoðun og fyrir tilboðsgerð og ef þurfa þykir að leita til sérfræðinga um nánari ástandsskoðun. Almennt getur kaupandi ekki borið fyrir sig að ástand eignar sé annað en það sem hann hefði mátt sjá við slíka skoðun.
Forsendur söluyfirlits:
Söluyfirlit er samið af fasteignasala í samræmi við ákvæði laga nr. 70/2015. Þær upplýsingar sem fram koma í söluyfirliti þessu eru sóttar í opinberar skrár, til seljanda sjálfs og eftir atvikum til húsfélags. Seljandi veitir upplýsingar um eign í samræmi við upplýsingaskyldu laga um fasteignakaup nr. 40/2002, og ábyrgist að þær séu réttar. Fasteignasali sannreynir að þær upplýsingar séu réttar með sjónskoðun á eigninni. Fasteignasali getur ekki fullyrt um ástand og eiginleika þeirra hluta fasteigna sem ekki eru aðgengilegir og sjást ekki berum augum, t.d. lagnir, dren, skólp og þak. Það sama á við um staðhæfingar seljanda eignar um viðhald og einstaka framkvæmdir.
Almennt um fylgifé íbúðarhúsnæðis:
Til fylgifjár íbúðarhúsnæðis teljast varanlegar innréttingar og búnaður sem annaðhvort er skeytt varanlega við fasteignina eða er sérstaklega sniðinn að henni. Þetta á meðal annars við um fastan búnað og lagnir til hitunnar og vatnsmiðlunar, rafmagnsvirki og leiðslur, loftnet og annan móttökubúnað í eigu seljanda, sem fest eru á fasteign, föst gólfteppi og önnur gólfefni sérstaklega tilsniðin, gluggabúnað, bað- og eldhúsinnréttingar og tæki og vélar sem eru sérstaklega felld inn í innréttingarnar og verða hluti af þeim og aðra innbyggða hluta.
Um ástand einstakra eignarhluta:
Efst í söluyfirlitli þessu er að finna dálka um ástand einstakra hluta eignarinnar. Eftirfarandi lykil er til skýringar á þeirri skráningu:
Nýtt - Eignin er nýbygging.
Upprunalegt - Seljandi veit ekki til þess að byggingarhluti hafi verið endurnýjaður.
Endurnýjað - Byggingarhlutinn hefur verið endurnýjaður í heild sinni á einhverjum tímapunkti.
Endurnýjað að hluta - Hluti byggingarhlutans hefur verið endurnýjaður á einhverjum tímapunkti.
Ekki vitað - Seljandi þekkir ekki til ástands og ekki er hægt að leggja mat á það með sjónskoðun.
Gjöld sem kaupandi þarf að standa straum af vegna kaupanna:
Stimpilgjald af kaupsamningi sem er hlutfall af fasteignamati. Stimpilgjald er 0,8% fyrir einstaklinga (0,4% við fyrstu kaup) og 1,6% fyrir lögaðila.
Þinglýsingargjald af kaupsamningi, veðskuldabréfum, veðleyfum o.fl. Þinglýsingargjald er kr. 3.800,- fyrir hvert skjal.
Lántökugjald lánastofnunar. Um lántökugjald vísast í gjaldskrá viðkomandi lánveitanda.
Umsýsluþóknun fasteignasölu skv. gjaldskrá.
Ef um nýbyggingu er að ræða greiðir kaupandi skipulagsgjald, 0,3% af brunabótamáti, þegar það er lagt á.
Ár
Fasteignamat
Kaupverð
Stærð
Fermetraverð
12. feb. 2013
16.800.000 kr.
42.500.000 kr.
131.2 m²
323.933 kr.
Byggt á upplýsingum úr Þjóðskrá Íslands frá 2006-2026