Löggiltir fasteignasalar innan Félags fasteignasala:
Ástþór Reynir Guðmundsson
Vigdís R. S. Helgadóttir
Guðbjörg Helga Jóhannesdóttir
Gylfi Jens Gylfason
Sigrún Matthea Sigvaldadóttir
Sveinn Gíslason
Páll Guðmundsson
Þórarinn Arnar Sævarsson
Berglind Hólm Birgisdóttir
Þorsteinn Gíslason
Guðrún Lilja Tryggvadóttir
Brynjar Ingólfsson
Guðný Þorsteinsdóttir
Bjarni Blöndal
Þorsteinn Ólafs
Þórdís Björk Davíðsdóttir
Jóhann Kristinn Jóhannesson
Bjarný Björg Arnórsdóttir
Salvör Þóra Davíðsdóttir
Magga Sigríður Gísladóttir
Upplýsingar
Verðsaga
Byggt 2024
76,3 m²
2 herb.
1 baðherb.
1 svefnh.
Sameiginl. inngangur
Lyfta
Opið hús: 24. febrúar 2026
kl. 17:00
til 17:30
Opið hús: Suðurhella 12, 221 Hafnarfjörður, Íbúð merkt: 01 04 03. Eignin verður sýnd þriðjudaginn 24. febrúar 2026 milli kl. 17:00 og kl. 17:30.
Lýsing
RE/MAX og Sigríður Guðnadóttir löggiltur fasteignsali kynna: Einstaklega fallega 2ja herbergja íbúð á 4 hæð í nýlegu fjölbýlishúsi með lyftu.
***SMELLTU HÉR TIL AÐ SKOÐA EIGNINA Í 3D***
Nánari lýsing:
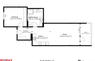
Forstofa með parket á gólfi og rúmgóðum fataskáp.
Stofa og eldhús í opnu rými með parket á gólfi.
Eldhús með fallegri ljósri innréttingu frá Axis með AEG tækjum og t.f. uppþvottavél.
Stofa og borðstofa er rúmgóð með útgengi út á góðar svalir með einstaklega fallegu útsýni í átt til fjalla Krísuvíkur.
Svefnherbergi er rúmgott með parket á gólfi og góðum fataskápum.
Baðherbergi er flísalagt með "walk in" sturtu, upphengdu wc, handklæðaofn, fallegri innréttingu, t.f. þvottavél og þurrkara og auka vaski með góðu vinnuborði.
Sér geymsla er í sameign með opnanlegum glugga og sameiginleg vagna og hjólageymsla.
Gott system air lofræstikerfi er í íbúðinni.
Leiksvæði/ leikvöllur fyrir börnin í garðinum.
Stutt í alla þjónustu, skóla, leikskóla ,verslanir og útvistarsvæði.
Nánari upplýsingar gefur Sigríður lgf. í síma 663 3219 eða sigga@remax.is
Gjöld sem kaupandi þarf að standa straum af vegna kaupanna:
1. Stimpilgjald af kaupsamningi - 0,8%(einstaklingar) 1.6% (lögaðilar) af heildarfasteignamati.
2. Þinglýsingargjald af kaupsamningi, veðskuldabréfi, mögulegu veðleyfi o.fl. - kr. 3.800 af hverju skjali.
3. Lántökugjald lánastofnunar - almennt 45-75 þús.kr. Nánari upplýsingar á heimasíðu lánastofnana.
4. Umsýslugjald til fasteignasölu kr. 69.900 mvsk.
***SMELLTU HÉR TIL AÐ SKOÐA EIGNINA Í 3D***
Nánari lýsing:
Forstofa með parket á gólfi og rúmgóðum fataskáp.
Stofa og eldhús í opnu rými með parket á gólfi.
Eldhús með fallegri ljósri innréttingu frá Axis með AEG tækjum og t.f. uppþvottavél.
Stofa og borðstofa er rúmgóð með útgengi út á góðar svalir með einstaklega fallegu útsýni í átt til fjalla Krísuvíkur.
Svefnherbergi er rúmgott með parket á gólfi og góðum fataskápum.
Baðherbergi er flísalagt með "walk in" sturtu, upphengdu wc, handklæðaofn, fallegri innréttingu, t.f. þvottavél og þurrkara og auka vaski með góðu vinnuborði.
Sér geymsla er í sameign með opnanlegum glugga og sameiginleg vagna og hjólageymsla.
Gott system air lofræstikerfi er í íbúðinni.
Leiksvæði/ leikvöllur fyrir börnin í garðinum.
Stutt í alla þjónustu, skóla, leikskóla ,verslanir og útvistarsvæði.
Nánari upplýsingar gefur Sigríður lgf. í síma 663 3219 eða sigga@remax.is
Gjöld sem kaupandi þarf að standa straum af vegna kaupanna:
1. Stimpilgjald af kaupsamningi - 0,8%(einstaklingar) 1.6% (lögaðilar) af heildarfasteignamati.
2. Þinglýsingargjald af kaupsamningi, veðskuldabréfi, mögulegu veðleyfi o.fl. - kr. 3.800 af hverju skjali.
3. Lántökugjald lánastofnunar - almennt 45-75 þús.kr. Nánari upplýsingar á heimasíðu lánastofnana.
4. Umsýslugjald til fasteignasölu kr. 69.900 mvsk.
Ár
Fasteignamat
Kaupverð
Stærð
Fermetraverð
8. maí. 2025
55.550.000 kr.
58.000.000 kr.
10403 m²
5.575 kr.
19. júl. 2024
4.120.000 kr.
40.000.000 kr.
10403 m²
3.845 kr.
Byggt á upplýsingum úr Þjóðskrá Íslands frá 2006-2026