Upplýsingar
Verðsaga
Byggt 1979
252,1 m²
8 herb.
2 baðherb.
5 svefnh.
Þvottahús
Opið hús: 26. febrúar 2026
kl. 17:00
til 17:30
Opið hús: Hlíðarbyggð 33, 210 Garðabær. Eignin verður sýnd fimmtudaginn 26. febrúar kl. 17 - 17:30.
Lýsing
Mjög mikið endurnýjað, glæsilegt og vel skipulagt 252,1 fm raðhús á tveimur hæðum með aukinni lofthæð í stofu og eldhúsi og innbyggðum bílskúr miðsvæðis í Garðabæ. Fimm svefnherbergi eru í eigninni og hún hentar afar vel fyrir vaxandi fjölskyldu. Á neðri hæð hússins er 3-4 herbergja íbúð sem er leigð út í dag og skilar góðum leigutekjum en því er hægt að breyta og hún getur verið hluti af stóru fjölskylduhúsi. Skjólgóð verönd með köldum og heitum potti er framan við hús sem nýtur sólar frá morgni til kvölds. Fjögur einka bílastæði. Frábær staðsetning þaðan sem stutt er í skóla, leikskóla, íþróttamiðstöðina Ásgarð, Fjölbrautaskóla Garðabæjar og Mýrina ásamt verslun og þjónustu við Garðatorg.
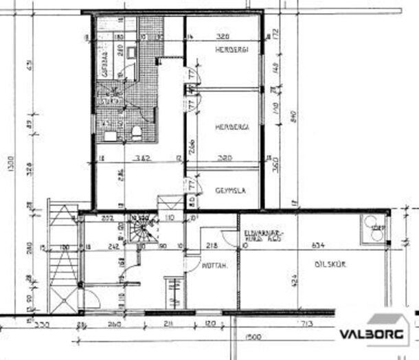
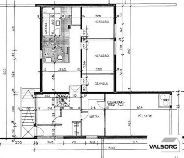
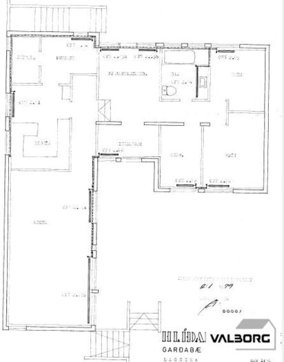
Á aðalhæð er stofa og borðstofa, eldhús, þvottaherbergi/geymsla, vinnrými, sjónvarpshol, þrjú svefnherbergi, baðherbergi og andyri. Á neðri hæð er stofa, eldhús, baðherbergi, 3-4 svefnherbergi, geymsla og andyri.
Nánari lýsing
Aðalhæð: Komið er inn í flísalagða forstofu með hillum og fatahengi en mögulegt er að stækka hana. Gengið inn í sjónvarpshol þaðan sem dyr eru út á verönd. Á herbergjagangi eru hjónaherbergi, tvö barnaherbergi og baðherbergi. Baðherbergið var allt endurnýjað árið 2021 og er með flísalögðu gólfi og veggjum að hluta, vegghengdu salerni, góðri baðinnréttingu, "walk-inn" sturtu með hertu glerskilrúmi og handklæðaofni. Frá sjónvarpsholi er gengið upp þrjú þrep í eldhús. Eldhúsið er opið og rúmgott með fallegri eldhúsinnréttingu. Mjög gott skápa- og borðpláss, ofn er í vinnuhæð og tengi fyrir uppþvottavél. Við eldhús var hringstigi á neðri hæð, þar sem nú er vinnurými. Stiginn er til og fylgir með og hægt að koma honum fyrir að nýju. Úr eldhúsi er gengið inn í þvottaherbergi og þar er einnig rúmgóð geymsla. Stofa og borðstofa eru bjartar og rúmgóðar með glugga á tvo vegu, hljóðdempandi loftdúkur, innfelld lýsing og óbein lýsing yfir gluggatjöldum. Aukin lofthæð er í eldhúsi og stofu/borðstofu með hallandi lofti sem setur fallegan svip á rýmin. Gólfhiti er á allri hæðinni nema svefnherbergjum.
Neðri hæð: Hún skiptist í íbúð og bílskúr og er 125,1 fm en ekki er full lofthæð á hæðinni. Íbúðin skiptist í stofu, eldhús, 3-4 svefnherbergi, baðherbergi, geymslu og andyri. Innangengt er í íbúðina í gegnum bílskúrinn og útgengt út í garð. Bílskúrshurð og gönguhurð við hliðina. Bílskúrinn er skráður 30,2 fm og er í dag nýttur sem geymsla og stór skápur skilur að geymslurými og inngang í íbúðina á neðri hæð. Bílskúrshurðin var færð framar og skúrinn þannig stækkaður um u.þ.b. 5 fm sem eru ekki inn í fermetratölu hússins. Hitalögn er í plani fyrir framan bílskúr og fyrir framan inngang á efri hæð. Möguleiki á mjög góðum leigutekjum.
Útisvæði: Árið 2023 var gert veglegt útisvæði fyrir framan hús. Þar er trépallur og skjólgott og sólríkt svæði sem vísar til suðvesturs með köldum potti, hitaveitupotti með appi og bekkjum. Út frá sjónvarpsholi eru timbursvalir og steyptar tröppur niður í garð. Fjögur einka bílastæði framan við hús og yfirleitt næg bílastæði í götunni. Trépallur út af sólstofu og gróinn garður bak við húsið.
Framkvæmdir og viðhald á undanförnum árum:
2025 - Hljóðdempandi loftdúkur settur í stofu, eldhús og bað með innfelldri lýsingu. Sett ný hurð út í garð á neðri hæð og úr sjónvarpsstofu á efri hæð.
2023 - Smíðaður pallur fyrir fram hús og sett kalt bað og heitur pottur með appstýringu.
2023 - Settir nýjir Velfag gluggar í u.þ.b. helming af gluggum í húsinu. Velfag 3 laga gluggar og sólarvarnargler eru í stofunni.
2022 - Skipt um þakjárn og pappa.
2021- Settir nýjir fataskápar í öll herbergi á efri hæð.
2021 - Baðherbergi á efri hæð endurnýjað og lagðar nýjar neysluvatnslagnir í baðherberginu.
2021 - Sett nýtt gólfefni á alla efri hæðina og nýjar innihurðir.
2021 - Rafmagn á efri hæð endurnýjað að hluta, dregið nýtt í stofu og eldhús.
2021 - Settur hiti í gólf á allri efti hæð fyrir utan svefnherbergin, þar eru ofnar.
2017 - Húsið var múrviðgert og málað að utan.
Eignin Hlíðarbyggð 33 er skráð sem hér segir hjá HMS: Fastanúmer 207-0458, birt stærð 252.1 fm. Áætlað fasteignamat ársins 2026 er 154,3 mkr.
Vinsamlegast hafið samband og bókið skoðun. Nánari upplýsingar veitir Aðalsteinn Steinþórsson Viðskiptafræðingur - löggiltur fasteignasali, í síma 896 5865, tölvupóstur alli@valborgfs.is.
Forsendur söluyfirlits:
Söluyfirlit er samið af fasteignasala í samræmi við ákvæði laga nr. 70/2015. Þær upplýsingar sem fram koma í söluyfirliti þessu eru sóttar í opinberar skrár, til seljanda sjálfs og eftir atvikum til húsfélags. Seljandi veitir upplýsingar um eign í samræmi við upplýsingaskyldu laga um fasteignakaup nr. 40/2002. Fasteignasali sannreynir að þær upplýsingar séu réttar með sjónskoðun á eigninni. Fasteignasali getur ekki fullyrt um ástand og eiginleika þeirra hluta fasteigna sem ekki eru aðgengilegir og sjást ekki berum augum, t.d. lagnir, dren, skólp og þak.
Um skoðunar- og aðgæsluskyldu:
Í lögum um fasteignakaup nr. 40/2002 er kveðið á um ríka skoðunarskyldu kaupenda á fasteignum. Valborg ehf. fasteignasala bendir væntanlegum kaupendum á að kynna sér vel ástand fasteigna við skoðun og fyrir tilboðsgerð og ef þurfa þykir að leita til sérfræðinga um nánari ástandsskoðun.
Gjöld sem kaupandi þarf að standa straum af vegna kaupanna:
1. Stimpilgjald af kaupsamningi sem er hlutfall af fasteignamati. Stimpilgjald er 0,8% fyrir einstaklinga (0,4% við fyrstu kaup) og 1,6% fyrir lögaðila.
2. Þinglýsingargjald af kaupsamningi, veðskuldabréfum, veðleyfum o.fl. Þinglýsingargjald er kr. 3.800,- fyrir hvert skjal.
3. Lántökugjald lánastofnunar. Um lántökugjald vísast í gjaldskrá viðkomandi lánveitanda.
4. Umsýsluþóknun fasteignasölu skv. gjaldskrá.
5. Ef um nýbyggingu er að ræða greiðir kaupandi skipulagsgjald, 0,3% af brunabótamati, þegar það er lagt á.
Á aðalhæð er stofa og borðstofa, eldhús, þvottaherbergi/geymsla, vinnrými, sjónvarpshol, þrjú svefnherbergi, baðherbergi og andyri. Á neðri hæð er stofa, eldhús, baðherbergi, 3-4 svefnherbergi, geymsla og andyri.
Nánari lýsing
Aðalhæð: Komið er inn í flísalagða forstofu með hillum og fatahengi en mögulegt er að stækka hana. Gengið inn í sjónvarpshol þaðan sem dyr eru út á verönd. Á herbergjagangi eru hjónaherbergi, tvö barnaherbergi og baðherbergi. Baðherbergið var allt endurnýjað árið 2021 og er með flísalögðu gólfi og veggjum að hluta, vegghengdu salerni, góðri baðinnréttingu, "walk-inn" sturtu með hertu glerskilrúmi og handklæðaofni. Frá sjónvarpsholi er gengið upp þrjú þrep í eldhús. Eldhúsið er opið og rúmgott með fallegri eldhúsinnréttingu. Mjög gott skápa- og borðpláss, ofn er í vinnuhæð og tengi fyrir uppþvottavél. Við eldhús var hringstigi á neðri hæð, þar sem nú er vinnurými. Stiginn er til og fylgir með og hægt að koma honum fyrir að nýju. Úr eldhúsi er gengið inn í þvottaherbergi og þar er einnig rúmgóð geymsla. Stofa og borðstofa eru bjartar og rúmgóðar með glugga á tvo vegu, hljóðdempandi loftdúkur, innfelld lýsing og óbein lýsing yfir gluggatjöldum. Aukin lofthæð er í eldhúsi og stofu/borðstofu með hallandi lofti sem setur fallegan svip á rýmin. Gólfhiti er á allri hæðinni nema svefnherbergjum.
Neðri hæð: Hún skiptist í íbúð og bílskúr og er 125,1 fm en ekki er full lofthæð á hæðinni. Íbúðin skiptist í stofu, eldhús, 3-4 svefnherbergi, baðherbergi, geymslu og andyri. Innangengt er í íbúðina í gegnum bílskúrinn og útgengt út í garð. Bílskúrshurð og gönguhurð við hliðina. Bílskúrinn er skráður 30,2 fm og er í dag nýttur sem geymsla og stór skápur skilur að geymslurými og inngang í íbúðina á neðri hæð. Bílskúrshurðin var færð framar og skúrinn þannig stækkaður um u.þ.b. 5 fm sem eru ekki inn í fermetratölu hússins. Hitalögn er í plani fyrir framan bílskúr og fyrir framan inngang á efri hæð. Möguleiki á mjög góðum leigutekjum.
Útisvæði: Árið 2023 var gert veglegt útisvæði fyrir framan hús. Þar er trépallur og skjólgott og sólríkt svæði sem vísar til suðvesturs með köldum potti, hitaveitupotti með appi og bekkjum. Út frá sjónvarpsholi eru timbursvalir og steyptar tröppur niður í garð. Fjögur einka bílastæði framan við hús og yfirleitt næg bílastæði í götunni. Trépallur út af sólstofu og gróinn garður bak við húsið.
Framkvæmdir og viðhald á undanförnum árum:
2025 - Hljóðdempandi loftdúkur settur í stofu, eldhús og bað með innfelldri lýsingu. Sett ný hurð út í garð á neðri hæð og úr sjónvarpsstofu á efri hæð.
2023 - Smíðaður pallur fyrir fram hús og sett kalt bað og heitur pottur með appstýringu.
2023 - Settir nýjir Velfag gluggar í u.þ.b. helming af gluggum í húsinu. Velfag 3 laga gluggar og sólarvarnargler eru í stofunni.
2022 - Skipt um þakjárn og pappa.
2021- Settir nýjir fataskápar í öll herbergi á efri hæð.
2021 - Baðherbergi á efri hæð endurnýjað og lagðar nýjar neysluvatnslagnir í baðherberginu.
2021 - Sett nýtt gólfefni á alla efri hæðina og nýjar innihurðir.
2021 - Rafmagn á efri hæð endurnýjað að hluta, dregið nýtt í stofu og eldhús.
2021 - Settur hiti í gólf á allri efti hæð fyrir utan svefnherbergin, þar eru ofnar.
2017 - Húsið var múrviðgert og málað að utan.
Eignin Hlíðarbyggð 33 er skráð sem hér segir hjá HMS: Fastanúmer 207-0458, birt stærð 252.1 fm. Áætlað fasteignamat ársins 2026 er 154,3 mkr.
Vinsamlegast hafið samband og bókið skoðun. Nánari upplýsingar veitir Aðalsteinn Steinþórsson Viðskiptafræðingur - löggiltur fasteignasali, í síma 896 5865, tölvupóstur alli@valborgfs.is.
Forsendur söluyfirlits:
Söluyfirlit er samið af fasteignasala í samræmi við ákvæði laga nr. 70/2015. Þær upplýsingar sem fram koma í söluyfirliti þessu eru sóttar í opinberar skrár, til seljanda sjálfs og eftir atvikum til húsfélags. Seljandi veitir upplýsingar um eign í samræmi við upplýsingaskyldu laga um fasteignakaup nr. 40/2002. Fasteignasali sannreynir að þær upplýsingar séu réttar með sjónskoðun á eigninni. Fasteignasali getur ekki fullyrt um ástand og eiginleika þeirra hluta fasteigna sem ekki eru aðgengilegir og sjást ekki berum augum, t.d. lagnir, dren, skólp og þak.
Um skoðunar- og aðgæsluskyldu:
Í lögum um fasteignakaup nr. 40/2002 er kveðið á um ríka skoðunarskyldu kaupenda á fasteignum. Valborg ehf. fasteignasala bendir væntanlegum kaupendum á að kynna sér vel ástand fasteigna við skoðun og fyrir tilboðsgerð og ef þurfa þykir að leita til sérfræðinga um nánari ástandsskoðun.
Gjöld sem kaupandi þarf að standa straum af vegna kaupanna:
1. Stimpilgjald af kaupsamningi sem er hlutfall af fasteignamati. Stimpilgjald er 0,8% fyrir einstaklinga (0,4% við fyrstu kaup) og 1,6% fyrir lögaðila.
2. Þinglýsingargjald af kaupsamningi, veðskuldabréfum, veðleyfum o.fl. Þinglýsingargjald er kr. 3.800,- fyrir hvert skjal.
3. Lántökugjald lánastofnunar. Um lántökugjald vísast í gjaldskrá viðkomandi lánveitanda.
4. Umsýsluþóknun fasteignasölu skv. gjaldskrá.
5. Ef um nýbyggingu er að ræða greiðir kaupandi skipulagsgjald, 0,3% af brunabótamati, þegar það er lagt á.
Ár
Fasteignamat
Kaupverð
Stærð
Fermetraverð
13. jan. 2021
82.300.000 kr.
95.500.000 kr.
252.1 m²
378.818 kr.
Byggt á upplýsingum úr Þjóðskrá Íslands frá 2006-2026