Löggiltir fasteignasalar innan Félags fasteignasala:
Hannes Steindórsson
Bogi Molby Pétursson
Guðrún Antonsdóttir
Heimir Hallgrímsson
Hrafnkell P. H. Pálmason
Viðar Marinósson
Elías Haraldsson
Kristján Þórir Hauksson
Albert Bjarni Úlfarsson
Ragnar Þorsteinsson
Þórey Ólafsdóttir
Andri Freyr Halldórsson
Upplýsingar
Verðsaga
Byggt 2007
148,4 m²
4 herb.
1 baðherb.
3 svefnh.
Þvottahús
Sérinngangur
Bílastæði
Lyfta
Lýsing
*** EIGNIN ER SELD MEÐ FYRIRVARA ***
Hrafnkell á LIND kynnir fallega og vel skipulagða 5 herbergja íbúð með sérinngangi af jarðhæð.
Mjög stór og skjólgóð verönd sem er 77 fm. og snýr til vesturs. Nýleg 5,6m markísa fylgir og samþykki fyrir svalalokun liggur fyrir.
Vel staðsett extra stórt sérmerkt bílastæði í bílageymslu fylgir eigninni. Staðsett beint við útganginn.
Möguleiki á að bæta við svefnherbergi í stofunni með auðveldum hætti.
Innréttingar, skápar og innihurðir eru frá AXIS, öll eldhústæki og lýsingin er vönduð í íbúðinni.
Stutt í skóla, leikskóla, íþróttasvæði, verslun og þjónustu.
Bókaðu skoðun og fáðu nánari upplýsingar:
Hrafnkell Pálmason Löggiltur fasteignasali / 690 8236 / hrafnkell@fastlind.is
Nánari lýsing:
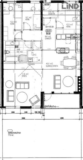
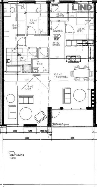
Anddyrið er með flísum á gólfi og góðum fataskápum.
Stofan, borðstofan og eldhúsið mynda opið og gott rými með gólfsíðum gluggum. Falleg sérsmíðuð eldhúsinnrétting frá AXIS með miklu skápaplássi og góðu vinnurými og eldhúseyju. Ofn í góðri vinnuhæð. Útgengt er á veröndina úr stofu. Hægt að útbúa 4. svefnherbergið með einföldum hætti (sjá drög teikningu).
Baðherbergið er rúmgott með baðkari og sturtu. Flísar á gólfi og við sturtu/baðkarið. Góður vaskaskápur með góðu borðplássi og miklu geymslurými.
Hjónaherbergið er með parket á gólfi og góðum fataskápum.
Svefnherbergi 2 er með parket á gólfi og fataskápum.
Svefnherbergi 3 er með parket á gólfi og fataskápum.
- Allir skápar ná upp í loft
Þvottahúsið er með flísum á gólfi, skolvask og rými fyrir þvottavél, þurrkara og frystiskáp.
Veröndin er sérstaklega stór, 77 fm afgirt og snýr í vestur með heitum potti og nýleg 5,6m markísa fylgir.
Geymslan er 7,1 fm. staðsett á geymslugangi.
Hjóla- og vagnageymslan í sameign.
Staðsetningin er einstaklega góð þar sem Kórinn íþróttahús og Hörðuvallaskóli eru í mjög stuttu göngufæri.
Einnig stutt í leikskóla, verslun og fallegar gönguleiðir og útivistasvæði.
Heildarhúsið er klætt að utan með viðhaldsléttri klæðningu.
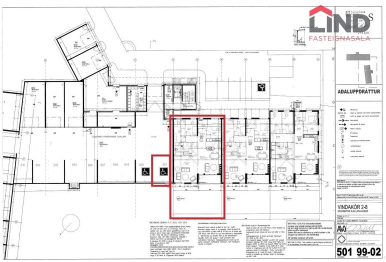
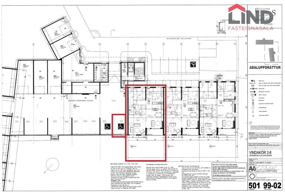
Vindakór 8, 203 Kópavogur, nánar tiltekið eign merkt 00-01, fastanúmer 228-7071 ásamt öllu því sem eigninni fylgir, þar með talið tilheyrandi lóðar og sameignarréttindi.
Eignin Vindakór 8 er skráð sem hér segir hjá FMR: Eign 228-7071, birt stærð 148.4 fm.
Nánari upplýsingar veitir Hrafnkell P. H. Pálmason Löggiltur fasteignasali, í síma 690 8236, tölvupóstur hrafnkell@fastlind.is.
-----------------------------------------------------------------------
Gjöld sem kaupandi þarf að standa straum af vegna kaupanna:
1. Stimpilgjald af kaupsamningi - 0.8% af heildarfasteignamati / 1.6% fyrir lögaðila
Fyrstu kaup - 0,4% af heildarfasteignamati
2. Þinglýsingagjald af kaupsamningi, veðskuldabréfi, veðleyfi o.fl.- kr. 2.500 af hverju skjali.
3. Lántökugjald lánastofnunar
4. Umsýsluþóknun til fasteignasölu, sbr.kauptilboð.
Hrafnkell á LIND kynnir fallega og vel skipulagða 5 herbergja íbúð með sérinngangi af jarðhæð.
Mjög stór og skjólgóð verönd sem er 77 fm. og snýr til vesturs. Nýleg 5,6m markísa fylgir og samþykki fyrir svalalokun liggur fyrir.
Vel staðsett extra stórt sérmerkt bílastæði í bílageymslu fylgir eigninni. Staðsett beint við útganginn.
Möguleiki á að bæta við svefnherbergi í stofunni með auðveldum hætti.
Innréttingar, skápar og innihurðir eru frá AXIS, öll eldhústæki og lýsingin er vönduð í íbúðinni.
Stutt í skóla, leikskóla, íþróttasvæði, verslun og þjónustu.
Bókaðu skoðun og fáðu nánari upplýsingar:
Hrafnkell Pálmason Löggiltur fasteignasali / 690 8236 / hrafnkell@fastlind.is
Nánari lýsing:
Anddyrið er með flísum á gólfi og góðum fataskápum.
Stofan, borðstofan og eldhúsið mynda opið og gott rými með gólfsíðum gluggum. Falleg sérsmíðuð eldhúsinnrétting frá AXIS með miklu skápaplássi og góðu vinnurými og eldhúseyju. Ofn í góðri vinnuhæð. Útgengt er á veröndina úr stofu. Hægt að útbúa 4. svefnherbergið með einföldum hætti (sjá drög teikningu).
Baðherbergið er rúmgott með baðkari og sturtu. Flísar á gólfi og við sturtu/baðkarið. Góður vaskaskápur með góðu borðplássi og miklu geymslurými.
Hjónaherbergið er með parket á gólfi og góðum fataskápum.
Svefnherbergi 2 er með parket á gólfi og fataskápum.
Svefnherbergi 3 er með parket á gólfi og fataskápum.
- Allir skápar ná upp í loft
Þvottahúsið er með flísum á gólfi, skolvask og rými fyrir þvottavél, þurrkara og frystiskáp.
Veröndin er sérstaklega stór, 77 fm afgirt og snýr í vestur með heitum potti og nýleg 5,6m markísa fylgir.
Geymslan er 7,1 fm. staðsett á geymslugangi.
Hjóla- og vagnageymslan í sameign.
Staðsetningin er einstaklega góð þar sem Kórinn íþróttahús og Hörðuvallaskóli eru í mjög stuttu göngufæri.
Einnig stutt í leikskóla, verslun og fallegar gönguleiðir og útivistasvæði.
Heildarhúsið er klætt að utan með viðhaldsléttri klæðningu.
Vindakór 8, 203 Kópavogur, nánar tiltekið eign merkt 00-01, fastanúmer 228-7071 ásamt öllu því sem eigninni fylgir, þar með talið tilheyrandi lóðar og sameignarréttindi.
Eignin Vindakór 8 er skráð sem hér segir hjá FMR: Eign 228-7071, birt stærð 148.4 fm.
Nánari upplýsingar veitir Hrafnkell P. H. Pálmason Löggiltur fasteignasali, í síma 690 8236, tölvupóstur hrafnkell@fastlind.is.
-----------------------------------------------------------------------
Gjöld sem kaupandi þarf að standa straum af vegna kaupanna:
1. Stimpilgjald af kaupsamningi - 0.8% af heildarfasteignamati / 1.6% fyrir lögaðila
Fyrstu kaup - 0,4% af heildarfasteignamati
2. Þinglýsingagjald af kaupsamningi, veðskuldabréfi, veðleyfi o.fl.- kr. 2.500 af hverju skjali.
3. Lántökugjald lánastofnunar
4. Umsýsluþóknun til fasteignasölu, sbr.kauptilboð.
Ár
Fasteignamat
Kaupverð
Stærð
Fermetraverð
14. ágú. 2014
25.000.000 kr.
40.500.000 kr.
148.4 m²
272.911 kr.
4. sep. 2013
20.500.000 kr.
1.060.000.000 kr.
7839.3 m²
135.216 kr.
Byggt á upplýsingum úr Þjóðskrá Íslands frá 2006-2026