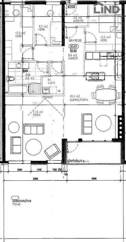
Vindakór, 203 Kópavogur