Upplýsingar
Verðsaga
Byggt 1965
177,1 m²
4 herb.
1 baðherb.
3 svefnh.
Bílskúr
Opið hús: 24. febrúar 2026
kl. 16:15
til 16:45
Opið hús: Þórunnarstræti 125 ibúð 101 , 600 Akureyri. Eignin verður sýnd þriðjudaginn 24. febrúar 2026 milli kl. 16:15 og kl. 16:45.
Lýsing
EIGNAVER 460-6060
Þórunnarstræti 125 neðri hæð. **** OPIÐ HÚS ÞRIÐJUDAGINN 24.FEBRÚAR MILLI KL: 16.15 OG 16.45 ****
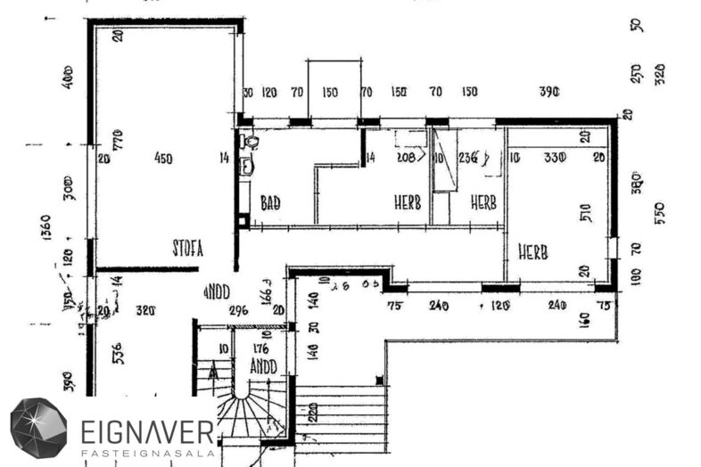
Falleg, björt og mikið endurnýjuð fjögurra herbergja hæð í tvíbýli ásamt bílskúr. Íbúð á hæð er 128,7 fm, bílskúr 29,5 og geymslur 18,9. Samtals er eignin 177,1 fm.
Eignin skiptist með eftirfarandi hætti:
Forstofa, eldhús, stofa, þrjú svefnherbergi, gangur, baðherbergi með þvottaaðstöðu, þrjár sér geymslur í jarðhæð og bílskúr.
Nánari lýsing:
Forstofa er með parketi á gólfi og opnu fatahengi.
Eldhús með rúmgóðri grárri innrétting, innbyggðum ísskáp og uppþvottavél, span helluborð og bakarofn í vinnuhæð. Parket er á gólfi
Stofa/borðstofa þar er vítt til veggja og gluggar til tveggja átta. Parket er á gólfi.
Svefnherbergi eru þrjú talsins og eru öll með parketi á gólfi, góður fataskápur er í hjónaherbergi.
Gangur, þar er gott geymslupláss með innbyggðum skúffueiningum. Parket er á gólfi.
Baðherbergi er með fallegri dökkri innréttingu, spegill með ljósi, upphengt wc og walk in sturtuklefa. Físar eru á gólfi og hluta veggja. Úr baðherbergi er útgengt í bakgarð verönd og er þar möguleiki á að setja upp heitan pott. er niður Í sameign eru þrjár sér geymslur, tveir litlar með hillum og ein stór með glugga.
Bílskúr er með steyptu gólfi og rafdrifinni bílskúrshurð.
Árið 2022 til 2023 var eignin tekin í gegn að innan og var ný eignaskiptayfirlýsing gerð þar sem rými í kjallara voru skilgreind
Annað:
- Ný eldhúsinnrétting og tæki.
- Allar innihurðar eru nýjar.
- Baðherbergi ásamt tækjum endurnýjað.
- Raflagnir og tafla endurnýjuð innan íbúðar sem og í kjallar rýmum.
- Gólfhiti innan íbúðar
- Sér mælir fyrir hvora eign í húsinu.
- Unifi netdiskar uppsettir í bílskúr og á hæð.
- Ljósleiðari kominn inn og tengdur.
- Rafmagnstenglar í herbergjum eru með USB / USB-C tengjum.
- Allar neysluvatnslagnir endurnýjaðar innan íbúðar.
- Varmaskiptir á vatni.
Nánari upplýsingar veita:
Tryggvi s: 862-7919 / tryggvi@eignaver.is
Begga s: 845-0671 /begga@eignaver.is
Arnar s: 898-7011 / arnar@eignaver.is
Þórunnarstræti 125 neðri hæð. **** OPIÐ HÚS ÞRIÐJUDAGINN 24.FEBRÚAR MILLI KL: 16.15 OG 16.45 ****
Falleg, björt og mikið endurnýjuð fjögurra herbergja hæð í tvíbýli ásamt bílskúr. Íbúð á hæð er 128,7 fm, bílskúr 29,5 og geymslur 18,9. Samtals er eignin 177,1 fm.
Eignin skiptist með eftirfarandi hætti:
Forstofa, eldhús, stofa, þrjú svefnherbergi, gangur, baðherbergi með þvottaaðstöðu, þrjár sér geymslur í jarðhæð og bílskúr.
Nánari lýsing:
Forstofa er með parketi á gólfi og opnu fatahengi.
Eldhús með rúmgóðri grárri innrétting, innbyggðum ísskáp og uppþvottavél, span helluborð og bakarofn í vinnuhæð. Parket er á gólfi
Stofa/borðstofa þar er vítt til veggja og gluggar til tveggja átta. Parket er á gólfi.
Svefnherbergi eru þrjú talsins og eru öll með parketi á gólfi, góður fataskápur er í hjónaherbergi.
Gangur, þar er gott geymslupláss með innbyggðum skúffueiningum. Parket er á gólfi.
Baðherbergi er með fallegri dökkri innréttingu, spegill með ljósi, upphengt wc og walk in sturtuklefa. Físar eru á gólfi og hluta veggja. Úr baðherbergi er útgengt í bakgarð verönd og er þar möguleiki á að setja upp heitan pott. er niður Í sameign eru þrjár sér geymslur, tveir litlar með hillum og ein stór með glugga.
Bílskúr er með steyptu gólfi og rafdrifinni bílskúrshurð.
Árið 2022 til 2023 var eignin tekin í gegn að innan og var ný eignaskiptayfirlýsing gerð þar sem rými í kjallara voru skilgreind
Annað:
- Ný eldhúsinnrétting og tæki.
- Allar innihurðar eru nýjar.
- Baðherbergi ásamt tækjum endurnýjað.
- Raflagnir og tafla endurnýjuð innan íbúðar sem og í kjallar rýmum.
- Gólfhiti innan íbúðar
- Sér mælir fyrir hvora eign í húsinu.
- Unifi netdiskar uppsettir í bílskúr og á hæð.
- Ljósleiðari kominn inn og tengdur.
- Rafmagnstenglar í herbergjum eru með USB / USB-C tengjum.
- Allar neysluvatnslagnir endurnýjaðar innan íbúðar.
- Varmaskiptir á vatni.
Nánari upplýsingar veita:
Tryggvi s: 862-7919 / tryggvi@eignaver.is
Begga s: 845-0671 /begga@eignaver.is
Arnar s: 898-7011 / arnar@eignaver.is
Ár
Fasteignamat
Kaupverð
Stærð
Fermetraverð
19. maí. 2022
38.750.000 kr.
55.000.000 kr.
128.7 m²
427.350 kr.
19. jún. 2017
25.350.000 kr.
31.000.000 kr.
128.7 m²
240.870 kr.
Byggt á upplýsingum úr Þjóðskrá Íslands frá 2006-2026