Upplýsingar
Verðsaga
Byggt 2021
118,8 m²
3 herb.
1 baðherb.
2 svefnh.
Þvottahús
Bílskúr
Sérinngangur
Laus strax
Opið hús: 25. febrúar 2026
kl. 17:00
til 17:30
Opið hús: Mardalur 24, 260 Reykjanesbær. Eignin verður sýnd miðvikudaginn 25. febrúar 2026 milli kl. 17:00 og kl. 17:30. Verið velkomin *** Margrét Rós lgf - S: 856-5858 ***
Lýsing
Fasteignasalan TORG og Margrét Rós lgf. kynna í sölu fallegt og vel skipulagt 3 herbergja endaraðhús á einni hæð með innangengum bílskúr og stórri 80 m2 afgirtri timburverönd til suðurs innst í rólegri botnlangagötu, við Mardal 24 í innri Njarðvík. Um er að ræða nýlega og vel staðsetta eign sem skiptist í forstofu, hol, eldhús ásamt stofu og borðstofu í opnu rými, með nýlegri kamínu, tvö svefnherbergi, baðherbergi og sér þvottaherbergi innan íbúðar auk geymslu inn af bílskúr. Koníaksflísar á öllum rýmum íbúðar og all flest rými eru með aukinni lofthæð. Bílskúr er innbyggður og innangengur frá íbúðarrými. Gólfhiti er í öllu húsinu, en rafhitun á vatnshitakerfi er til staðar ef hitaveita bregst. Aðkoma að húsinu er til fyrirmyndar, stétt að framanverðu og bílastæði eru hellulögð og með snjóbræðslu. Allar nánari upplýsingar veitir Margrét Rós lgf. í s. 856-5858 eða margret@fstorg.is.
** FÁ SÖLUYFIRLIT SENT **
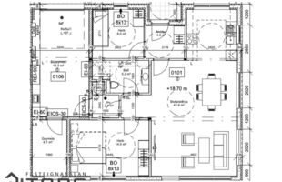
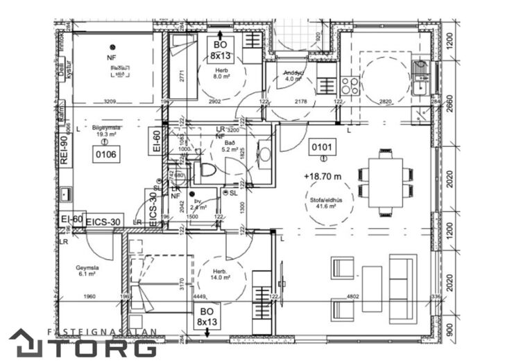
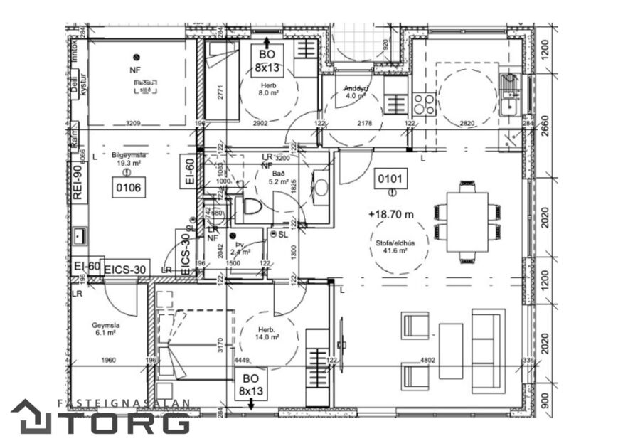
Birt stærð eignar skv. fasteignaskrá HMS er 118,8 m² þar af er bílskúr 22,4 m²
Frábær staðsetning í rólegu og fjölskylduvænu hverfi þar sem öll helsta þjónusta er í næsta nágrenni, m.a. leik- og grunnskóli, sundlaug og íþróttaaðstaða bæði úti og inni. Stutt er í stofnbrautir auk þess sem svæðið er umlukið fallegri náttúru með fallegum göngu- og hjólaleiðum meðfram sjávarlínuna og Reykjarnesið. Um 10 mínútna akstur yfir í flugstöð og miðbæ Reykjanesbæjar þar sem finna má verslanir, þjónustu, sundlaug og margt fleira.
Nánari lýsing eignar:
Forstofa er rúmgóð með stórum fataskáp og flísum á gólfi.
Svefnherbergi er inn af forstofu, með fataskáp og flísum á gólfi.
Eldhús með fallegri innréttingu, mikið skápapláss, stórt helluborð með gufugleypi. Innbyggð uppþvottavél og ísskápur, tveir ofnar í vinnuhæð, svartur vaskur og blöndurtæki. Tveir gluggar.
Borðstofa/Stofa eru samliggjandi í opnu og björtu rými með fallegri kamínu og útgengt á afgirta verönd.
Garður að aftanverðu er afgirtur og lokaður með timburverönd (c.a. 80m2) sem snýr í suður og með grillskýli. Útgengi um læst hlið út á stétt meðfram húsinu.
Hjónaherbergi er rúmgott með stórum fataskápum.
Baðherbergi er flísalagt með walk in sturtu, upphengdu salerni, handklæðaofni og fallegum ljósaspegli.
Þvottahús er innan íbúðar og þaðan er innangengt í bílskúrinn.
Bílskúr er rúmgóður og snyrtilegur með rafdrifinni hurð og rúmgóðu geymslulofti yfir stórum hluta bílskúrs. Stórar gráar flísar á gólfi.
Geymsla inn af bílakúr með stórum flísum á gólfi og geymslulofti. Útgengt þaðan í bakgarðinn.
Bílastæði og stétt framan við hús er hellulögð og með snjóbræðslu. Rúmar auðveldlega þrjá bíla. Tengingar tilbúnar fyrir rafhleðslustöð
** Fallegar Koníaks-parketflísar á öllu íbúðarrými og stórar gráar flísar í bílskúr.
** Tvískipt hitakerfi - Gólfhiti er í öllu húsinu, til staðar er rafhitun á vatnshitakerfi ef hitaveita bregst.
** Útgangar út á sólpall eru tveir, annar frá stofu og hinn frá geymslurými með góðu geymslulofti.
** Nýleg kamína frá Rótor, uppsett af Blikkás Funi blikksmiðju er vel staðsett í stofu.
** Afar sólríkur og skjólgóður 80m2 sólpallur sem snýr til suðurs afgirtur og lokaður með skjólveggjum. Útgengt af palli um læst hlið út á stétt sem er meðfram húsinu.
ERTU Í SÖLUHUGLEIÐINGUM? SMELLTU HÉR
Nánari upplýsingar veita:
Margrét Rós Einarsdóttir - Löggiltur fasteignasali í Félagi fasteignasala / s. 856-5858 / margret@fstorg.is
Aðalsteinn Bjarnason - Löggiltur fasteignasali í Félagi fasteignasala / s. 773-3532 / adalsteinn@fstorg.is
KÍKTU Í HEIMSÓKN TIL MÍN Á FACEBOOK
VILTU VITA HVAÐ VIÐSKIPTAVINIR OKKAR HAFA SEGJA? SMELLTU HÉR
Um skoðunar- og aðgæsluskyldu:
Í lögum um fasteignakaup nr. 40/2002 er kveðið á um ríka skoðunarskyldu kaupenda á fasteignum. Væntanlegum kaupendum er bent á að kynna sér vel ástand fasteigna við skoðun og fyrir tilboðsgerð og ef þurfa þykir að leita til sérfræðinga um nánari ástandsskoðun. Almennt getur kaupandi ekki borið fyrir sig að ástand eignar sé annað en það sem hann hefði mátt sjá við slíka skoðun.
Forsendur söluyfirlits:
Söluyfirlit er samið af fasteignasala í samræmi við ákvæði laga nr. 70/2015. Þær upplýsingar sem fram koma í söluyfirliti þessu eru sóttar í opinberar skrár, til seljanda sjálfs og eftir atvikum til húsfélags. Seljandi veitir upplýsingar um eign í samræmi við upplýsingaskyldu laga um fasteignakaup nr. 40/2002, og ábyrgist að þær séu réttar. Fasteignasali sannreynir að þær upplýsingar séu réttar með sjónskoðun á eigninni. Fasteignasali getur ekki fullyrt um ástand og eiginleika þeirra hluta fasteigna sem ekki eru aðgengilegir og sjást ekki berum augum, t.d. lagnir, dren, skólp og þak. Það sama á við um staðhæfingar seljanda eignar um viðhald og einstaka framkvæmdir.
Gjöld sem kaupandi þarf að standa straum af vegna kaupanna:
Stimpilgjald af kaupsamningi sem er hlutfall af fasteignamati. Stimpilgjald er 0,8% fyrir einstaklinga (0,4% við fyrstu kaup) og 1,6% fyrir lögaðila.
Þinglýsingargjald af kaupsamningi, veðskuldabréfum, veðleyfum o.fl. Þinglýsingargjald er kr. 2.700,- fyrir hvert skjal.
Lántökugjald lánastofnunar. Um lántökugjald vísast í gjaldskrá viðkomandi lánveitanda.
Umsýsluþóknun fasteignasölu skv. gjaldskrá.
Ef um nýbyggingu er að ræða greiðir kaupandi skipulagsgjald, 0,3% af brunabótamáti, þegar það er lagt á.
** FÁ SÖLUYFIRLIT SENT **
Birt stærð eignar skv. fasteignaskrá HMS er 118,8 m² þar af er bílskúr 22,4 m²
Frábær staðsetning í rólegu og fjölskylduvænu hverfi þar sem öll helsta þjónusta er í næsta nágrenni, m.a. leik- og grunnskóli, sundlaug og íþróttaaðstaða bæði úti og inni. Stutt er í stofnbrautir auk þess sem svæðið er umlukið fallegri náttúru með fallegum göngu- og hjólaleiðum meðfram sjávarlínuna og Reykjarnesið. Um 10 mínútna akstur yfir í flugstöð og miðbæ Reykjanesbæjar þar sem finna má verslanir, þjónustu, sundlaug og margt fleira.
Nánari lýsing eignar:
Forstofa er rúmgóð með stórum fataskáp og flísum á gólfi.
Svefnherbergi er inn af forstofu, með fataskáp og flísum á gólfi.
Eldhús með fallegri innréttingu, mikið skápapláss, stórt helluborð með gufugleypi. Innbyggð uppþvottavél og ísskápur, tveir ofnar í vinnuhæð, svartur vaskur og blöndurtæki. Tveir gluggar.
Borðstofa/Stofa eru samliggjandi í opnu og björtu rými með fallegri kamínu og útgengt á afgirta verönd.
Garður að aftanverðu er afgirtur og lokaður með timburverönd (c.a. 80m2) sem snýr í suður og með grillskýli. Útgengi um læst hlið út á stétt meðfram húsinu.
Hjónaherbergi er rúmgott með stórum fataskápum.
Baðherbergi er flísalagt með walk in sturtu, upphengdu salerni, handklæðaofni og fallegum ljósaspegli.
Þvottahús er innan íbúðar og þaðan er innangengt í bílskúrinn.
Bílskúr er rúmgóður og snyrtilegur með rafdrifinni hurð og rúmgóðu geymslulofti yfir stórum hluta bílskúrs. Stórar gráar flísar á gólfi.
Geymsla inn af bílakúr með stórum flísum á gólfi og geymslulofti. Útgengt þaðan í bakgarðinn.
Bílastæði og stétt framan við hús er hellulögð og með snjóbræðslu. Rúmar auðveldlega þrjá bíla. Tengingar tilbúnar fyrir rafhleðslustöð
** Fallegar Koníaks-parketflísar á öllu íbúðarrými og stórar gráar flísar í bílskúr.
** Tvískipt hitakerfi - Gólfhiti er í öllu húsinu, til staðar er rafhitun á vatnshitakerfi ef hitaveita bregst.
** Útgangar út á sólpall eru tveir, annar frá stofu og hinn frá geymslurými með góðu geymslulofti.
** Nýleg kamína frá Rótor, uppsett af Blikkás Funi blikksmiðju er vel staðsett í stofu.
** Afar sólríkur og skjólgóður 80m2 sólpallur sem snýr til suðurs afgirtur og lokaður með skjólveggjum. Útgengt af palli um læst hlið út á stétt sem er meðfram húsinu.
ERTU Í SÖLUHUGLEIÐINGUM? SMELLTU HÉR
Nánari upplýsingar veita:
Margrét Rós Einarsdóttir - Löggiltur fasteignasali í Félagi fasteignasala / s. 856-5858 / margret@fstorg.is
Aðalsteinn Bjarnason - Löggiltur fasteignasali í Félagi fasteignasala / s. 773-3532 / adalsteinn@fstorg.is
KÍKTU Í HEIMSÓKN TIL MÍN Á FACEBOOK
VILTU VITA HVAÐ VIÐSKIPTAVINIR OKKAR HAFA SEGJA? SMELLTU HÉR
Um skoðunar- og aðgæsluskyldu:
Í lögum um fasteignakaup nr. 40/2002 er kveðið á um ríka skoðunarskyldu kaupenda á fasteignum. Væntanlegum kaupendum er bent á að kynna sér vel ástand fasteigna við skoðun og fyrir tilboðsgerð og ef þurfa þykir að leita til sérfræðinga um nánari ástandsskoðun. Almennt getur kaupandi ekki borið fyrir sig að ástand eignar sé annað en það sem hann hefði mátt sjá við slíka skoðun.
Forsendur söluyfirlits:
Söluyfirlit er samið af fasteignasala í samræmi við ákvæði laga nr. 70/2015. Þær upplýsingar sem fram koma í söluyfirliti þessu eru sóttar í opinberar skrár, til seljanda sjálfs og eftir atvikum til húsfélags. Seljandi veitir upplýsingar um eign í samræmi við upplýsingaskyldu laga um fasteignakaup nr. 40/2002, og ábyrgist að þær séu réttar. Fasteignasali sannreynir að þær upplýsingar séu réttar með sjónskoðun á eigninni. Fasteignasali getur ekki fullyrt um ástand og eiginleika þeirra hluta fasteigna sem ekki eru aðgengilegir og sjást ekki berum augum, t.d. lagnir, dren, skólp og þak. Það sama á við um staðhæfingar seljanda eignar um viðhald og einstaka framkvæmdir.
Gjöld sem kaupandi þarf að standa straum af vegna kaupanna:
Stimpilgjald af kaupsamningi sem er hlutfall af fasteignamati. Stimpilgjald er 0,8% fyrir einstaklinga (0,4% við fyrstu kaup) og 1,6% fyrir lögaðila.
Þinglýsingargjald af kaupsamningi, veðskuldabréfum, veðleyfum o.fl. Þinglýsingargjald er kr. 2.700,- fyrir hvert skjal.
Lántökugjald lánastofnunar. Um lántökugjald vísast í gjaldskrá viðkomandi lánveitanda.
Umsýsluþóknun fasteignasölu skv. gjaldskrá.
Ef um nýbyggingu er að ræða greiðir kaupandi skipulagsgjald, 0,3% af brunabótamáti, þegar það er lagt á.
Ár
Fasteignamat
Kaupverð
Stærð
Fermetraverð
15. júl. 2022
29.750.000 kr.
72.500.000 kr.
118.8 m²
610.269 kr.
Byggt á upplýsingum úr Þjóðskrá Íslands frá 2006-2026