Löggiltir fasteignasalar innan Félags fasteignasala:
Páll Þórólfsson
Guðbjörg Guðmundsdóttir
Jason Kristinn Ólafsson
Sverrir Pálmason
Vista
fjölbýlishús

Eiríksgata 19 efri hæð

101 Reykjavík

131.900.000 kr.

1.011.503 þ.kr./m2
Fasteignanúmer

F2008833

Fasteignamat

106.400.000 kr.

Brunabótamat

59.700.000 kr.

Áhvílandi

0 kr.

Arion banki – Reikna lán
Upplýsingar
Verðsaga
svg
Byggt 1934
svg
130,4 m²
svg
4 herb.
svg
2 baðherb.
svg
3 svefnh.
svg
Þvottahús
svg
Sameiginl. inngangur
Opið hús: 3. mars 2026 kl. 18:00 til 18:30

Eiríksgata 19 - allt húsið til sýnis.

Lýsing

Betri Stofan fasteignasala Borgartúni 30 kynnir nýtt í sölu: Mjög mikið endurnýjuð og nýstandsett 3ja herbergja íbúð ásamt auka íbúð / tómstundarými á jarðhæð með sér inngangi og góðum bílastæðum á baklóð við Eiríksgötu 19, 101 Reykjavík. 

Til sölu er einnig allt húsið við Eiríksgötu 19, tvær íbúðir á 1. og 2. hæð og innréttaðar tvær einingar á jarðhæð með sér inngangi. Möguleiki á góðum leigutekjum.


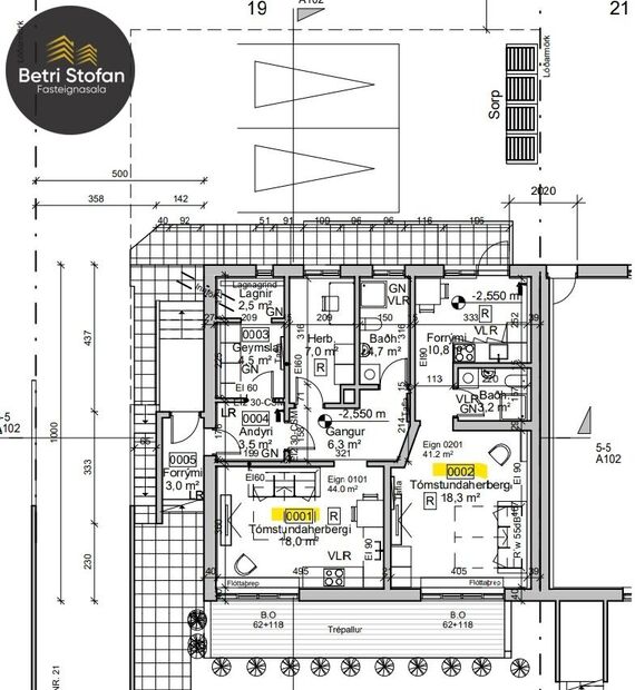
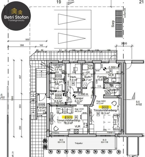
Skráð stærð íbúðarinnar á 2. hæð er 89,2 fm skv. skráningu hjá HMS, að auki fylgir íbúðinni um 41,2 fm ný standsett studió íbúð (skráð tómstundarými) á jarðhæð. Full lofthæð og sér inngangur ásamt Samkvæmt núverandi skipulagi telja þessar tvær íbúðir um 130,4 fm. Á baklóð eru bílastæði sem getur rúmað nokkra bíla.

Endurbætur: Sigrún Einarsdóttir Hönnuður sá um innanhúshönnun og efnisval. Það sem hefur verið endurnýjað má nefna:
Pípulögn, ofnar, skólp og drenlögn út í götu, raflagnir og rafmagnstöflur, innréttingar, öll tæki, hurðar, gólfefni, gler að mestu, þakjárn, rennur ofl. 

Íbúð á 2. hæð:
Forstofa / Hol parket á gólfi og stór fataskápur. 
Stofa / borðstofa, bjart og sjarmerandi rými með parketi á gólfi, opið við eldhús.
Eldhús falleg innrétting með miklu skápa og borðplássi.  Vönduð tæki og innbyggð uppþvottavél, stórir gluggar og parket á gólfi. 
Svefnherbergin tvö eru rúmgóð og fín, stór fataskápur í öðru herberginu og innaf hinu er rými sem getr nýst sem fataherb, vinnuaðstaða osfv sem og svalir að baklóð.
Baðherbergi er mjög glæsilegt með fallegri innréttingu, vegghendu salerni, einhalla sturtu með gleri, hægt að koma fyrir þvottavél og þurrkrar. Hiti í gólfum.
Vandað vínilparket er á íbúðinni með undirlagi.
Háaloft er yfir íbúðinni - innangengt. 

Stúdíóíbúð á jarðhæð (skráð tómstundarými, merkt 0002). Sér inngangur og hiti í gólfum.
Eldhús ný innrétting og innbyggð þottavél.
Stofurými / alrými er fínt og parketlagt.
Baðherbergið er bjart og flísalagt með góðri sturtu, vegghengdu salerni, innréttigu og tengi fyrir þvottavél. 
Íbúðin nýtist vel og er öll nýstandsett.
Raflagnir eru á sér mæli.

Þetta eru fallegar íbúðir í nýstandsettu húsi á eftirsóttum stað - flottir tekjumöguleikar fyrir fjárfesta. 
Allar nánari upplýsingar veitir Atli S. fasteignasali í síma 899-1178 eða atli@betristofan.is


Gjöld sem kaupandi þarf að standa straum af ef að kaupum verður:
1. Stimpilgjald af fasteignamati fasteignar er 0.8%, en 0,4% fyrir fyrstu kaup og 1,6% fyrir lögaðila.  
2. Þinglýsingargjald: kaupsamningi, skuldabréfi, veðleyfi, afsali o.s.frv. er kr. 3.800 af hverju skjali.
3. Lántökukostnaður samkvæmt verðskrá viðkomandi lánastofnunar.
4. Umsýslugjald til fasteignasölu skv. gjaldskrá.

Skoðunarskylda kaupanda:
Í lögum um fasteignakaup nr. 40/2002 er kveðið á um ríka skoðunarskyldu kaupenda á fasteignum. Betri Stofan fasteignasala bendir væntanlegum kaupendum á að kynna sér vel ástand fasteigna við skoðun og fyrir tilboðsgerð og ef þurfa þykir að leita til sérfræðinga um nánari ástandsskoðun.

Betri Stofan Fasteignasala

Betri Stofan Fasteignasala

Borgartúni 30, 105 Reykjavík
phone
Ár
Fasteignamat
Kaupverð
Stærð
Fermetraverð
7. des. 2023
72.200.000 kr.
108.250.000 kr.
181.8 m²
595.435 kr.
Byggt á upplýsingum úr Þjóðskrá Íslands frá 2006-2026
Betri Stofan Fasteignasala

Betri Stofan Fasteignasala

Borgartúni 30, 105 Reykjavík
phone