Upplýsingar
Verðsaga
Byggt 2016
91,9 m²
3 herb.
1 baðherb.
2 svefnh.
Sameiginl. inngangur
Lyfta
Lýsing
Valhöll fasteignasala og Heiðar Friðjónsson lögg. fast. kynna í einkasölu glæsilega 3ja herb. 92,0 fm útsýnisíbúð á 4- hæð, með frábæru útsýni og suður svölum í lyftu húsi við Skyggnisbraut 26-28 í Úlfarsárdal Reykjavík.
Nánari lýsing:
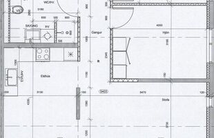
Hol með skáp, úr holinu er hurð inn í geymslu. Eldhús með fallegri innréttingu, góðum borðkrók og harðparketi á gólfum. Rúmgóð og björt stofa með harðparketi á gólfi, úr stofu er útgengi út á suður svalir, af þeim er glæsilegt útsýni til Reykjavíkur. Baðherbergi með sturtu, flísum á veggjum og gólfi, innrétting og innrétting fyrir þvottarvél og þurrkara. Tvö herbergi bæði rúmgóð með skápum og harðparketi á gólfi. Í kjallara er sameiginleg vagna og hjólageymsla. Allar innréttingar og hurðir eru frá Parka og eru CPL-Laminate. Eignin er laus við kaupsamning. Pantið skoðun hjá Heiðari s. 693-3356 eða á heidar@valholl.is
Skyggnisbraut 26-28 er á góðum stað í hverfinu í húsi sem tekið var í notkun 2017.
Úlfarsárdalur er eitt nýjasta hverfi borgarinnar. Eitt af einkennum hverfisins er mikil nánd við náttúruna og í göngufæri við hverfið eru náttúruperlur eins og Úlfarsfellið, Reynisvatn, Hafravatn og Hólmsheiðin.
Hverfið státar einnig af metnaðarfullu starfi, leikskóla, grunnskóla, frístundaheimili, öflugri félagsmiðstöð og íþróttafélaginu Fram.
Um er að ræða íbúð 04-03 skráð 92 fm skv. fmr.
Allar frekari uppl. um eignina veitir:
Heiðar Friðjónsson lögg. fast í s. 693-3356 eða á heidar@valholl.is
Nánari lýsing:
Hol með skáp, úr holinu er hurð inn í geymslu. Eldhús með fallegri innréttingu, góðum borðkrók og harðparketi á gólfum. Rúmgóð og björt stofa með harðparketi á gólfi, úr stofu er útgengi út á suður svalir, af þeim er glæsilegt útsýni til Reykjavíkur. Baðherbergi með sturtu, flísum á veggjum og gólfi, innrétting og innrétting fyrir þvottarvél og þurrkara. Tvö herbergi bæði rúmgóð með skápum og harðparketi á gólfi. Í kjallara er sameiginleg vagna og hjólageymsla. Allar innréttingar og hurðir eru frá Parka og eru CPL-Laminate. Eignin er laus við kaupsamning. Pantið skoðun hjá Heiðari s. 693-3356 eða á heidar@valholl.is
Skyggnisbraut 26-28 er á góðum stað í hverfinu í húsi sem tekið var í notkun 2017.
Úlfarsárdalur er eitt nýjasta hverfi borgarinnar. Eitt af einkennum hverfisins er mikil nánd við náttúruna og í göngufæri við hverfið eru náttúruperlur eins og Úlfarsfellið, Reynisvatn, Hafravatn og Hólmsheiðin.
Hverfið státar einnig af metnaðarfullu starfi, leikskóla, grunnskóla, frístundaheimili, öflugri félagsmiðstöð og íþróttafélaginu Fram.
Um er að ræða íbúð 04-03 skráð 92 fm skv. fmr.
Allar frekari uppl. um eignina veitir:
Heiðar Friðjónsson lögg. fast í s. 693-3356 eða á heidar@valholl.is
Ár
Fasteignamat
Kaupverð
Stærð
Fermetraverð
24. okt. 2016
14.200.000 kr.
1.000.000 kr.
168.8 m²
5.924 kr.
Byggt á upplýsingum úr Þjóðskrá Íslands frá 2006-2026