Löggiltir fasteignasalar innan Félags fasteignasala:
Sverrir Kristinsson
Kjartan Hallgeirsson
Guðlaugur Ingi Guðlaugsson
Daði Hafþórsson
Gunnar Helgi Einarsson
Gunnar Bergmann Jónsson
Jenný Sandra Gunnarsdóttir
Vista
fjölbýlishús

Sólvangsvegur 1

220 Hafnarfjörður

48.500.000 kr.

971.944 þ.kr./m2
Fasteignanúmer

F2079238

Fasteignamat

44.850.000 kr.

Brunabótamat

29.600.000 kr.

Áhvílandi

0 kr.

Arion banki – Reikna lán
Upplýsingar
Verðsaga
svg
Byggt 1992
svg
49,9 m²
svg
1 herb.
svg
1 baðherb.
svg
Sameiginl. inngangur
svg
Lyfta

Lýsing

Eignamiðlun kynnir:

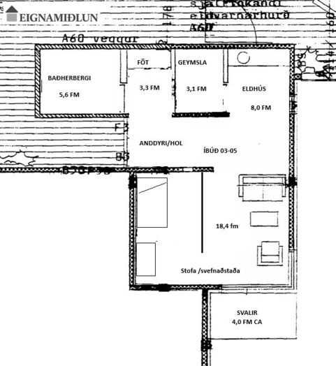
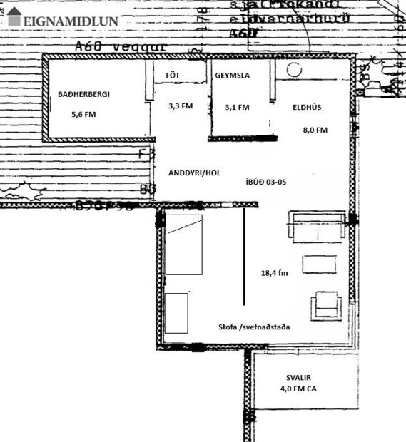
Sólvangsvegur 1, 220 Hafnarfirði.   49.9 fm íbúð, eign merkt 03-05. Hús fyrir 60 ára og eldri, mjög góð sameign með matsal á 1 hæð þar sem hægt er að fá mat sé þess óskað. Íbúðin er til afhendingar við kaupsamning. Eignin er skráð 1 herbergja en búið að stúka svefnaðstöðu af alrými. Góðar innréttingar. Sérgeymsla innan íbúðarinnar. Mjög gott útsýni til vesturs yfir lækinn. Svalir til suðvesturs. Bókið skoðun hjá Þórarni lögg fasteignasala í síma 899-1882
Smelltu hér til að sækja söluyfirlit.
Eignin er skráð sem hér segir hjá Þjóðskrá: Fastanr. 207-9238, nánar tiltekið eign merkt 03-05, birt heildarstærð 49.9 fm og er sérgeymsla innan íbúðarinnar hluti af fermetratölu. Svalir eru til suðvesturs og eru skráðar 4 fm. 

Eignin skiptist í:Forstofu/hol, stofu með afstúkaðri svefnaðstöðu. eldhús, sérgeymsu og baðherb. Sameiginleg geymsla á hæðinni.

Nánari lýsing eignarinnar:
FORSTOFA/HOL. Rúmgóð forstofa með linoleum dúk og skápum. 
BAÐHERBERGI: Baðherbergið er með linoleum dúk, sturta, tengi fyrir þvottavél og þurkara. 
ELDHÚS: Eldhúsið er með góðri hvítri innréttingu og linoleum dúk, eyja skilur að eldhús og stofurými með góðu skúffu og borðaðstöðu. 
STOFA/SVEFNAÐSTAÐA: Ágætlega rúmgott alrými með nýlegu harðparketi, búið að stúka af svefnaðstöðu. Gengið út á suðvestur svalir með mjög góðu útsýni. Gerfiarinn/rafmagns fylgir. 
GEYMSLA: Sérgeymsla innaf eldhúsi. 
SAMEIGINLEG GEYMSLA: Sameiginleg geymsla á hæðinni þar sem íbúðin á aðstöðu. 
SAMEIGN: Sameiginleg setustofa á hæðinni. Matsalur á 1 hæð með möguleika að kaupa sér mat ef vill. Sameiginlegur salur á efstu hæð. 
Húsið er frábærlega vel staðsett og er heilsugæsla í næsta nágrenni. 
ÍBÚÐIN ER NÝLEGA MÁLUÐ OG ER TIL AFHENDINGAR VIÐ KAUPSAMNING.

 
Nánari upplýsingar veitir Þórarinn M. Friðgeirsson Löggiltur fasteignasali, í síma 899-1882, tölvupóstur thorarinn@eignamidlun.is eða skrifstofa Eignamiðlunar í síma 588-9090

***
Ábyrg þjónusta í áratugi. Eignamiðlun var stofnuð 1957 og er elsta starfandi fasteignasala á Íslandi. Reynsla, heiðarleiki og þekking á fasteignamarkaðnum eru grunnur að farsælum viðskiptum. 

Eignamiðlun Grensásvegi 11, 108 Reykjavík - Opið frá kl. 9-17 mánudaga til fimmtudaga og 9-16 á föstudögum.

Heimasíða Eignamiðlunar

Eignamiðlun á Facebook

Eignamiðlun

Eignamiðlun

Grensásvegi 11, 108 Reykjavík
Ár
Fasteignamat
Kaupverð
Stærð
Fermetraverð
29. apr. 2021
27.950.000 kr.
38.000.000 kr.
49.9 m²
761.523 kr.
20. des. 2018
22.850.000 kr.
27.500.000 kr.
49.9 m²
551.102 kr.
Byggt á upplýsingum úr Þjóðskrá Íslands frá 2006-2026
Eignamiðlun

Eignamiðlun

Grensásvegi 11, 108 Reykjavík