Löggiltir fasteignasalar innan Félags fasteignasala:
Sverrir Kristinsson
Kjartan Hallgeirsson
Guðlaugur Ingi Guðlaugsson
Daði Hafþórsson
Gunnar Helgi Einarsson
Gunnar Bergmann Jónsson
Lilja Guðmundsdóttir
Jenný Sandra Gunnarsdóttir
Kári Sighvatsson
Vista
svg

1456

svg

1168  Skoðendur

svg

Skráð  3. feb. 2026

fjölbýlishús

Dísaborgir 9

112 Reykjavík

69.900.000 kr.

815.636 þ.kr./m2
Fasteignanúmer

F2235512

Fasteignamat

64.200.000 kr.

Brunabótamat

44.350.000 kr.

Áhvílandi

0 kr.

Arion banki – Reikna lán
Upplýsingar
Verðsaga
svg
Byggt 1997
svg
85,7 m²
svg
3 herb.
svg
1 baðherb.
svg
2 svefnh.
svg
Sérinngangur
Opið hús: 8. febrúar 2026 kl. 15:00 til 15:30

Opið hús: Dísaborgir 9, 112 Reykjavík, Íbúð merkt: 01 01 02. Eignin verður sýnd sunnudaginn 8. febrúar 2026 milli kl. 15:00 og kl. 15:30.

Lýsing

Eignamiðlun kynnir:

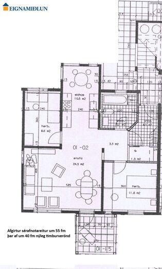
Dísaborgir 9,  85.7 fm 3 herb. endaíbúð á jarðhæð með sérinngangi í góðu velstaðsettu fjölbýli. Sérinngangur og sérbílastæði með hleðslustöð. Stór afgirtur (ca 55 fm) sérafnotaréttur með ca 40 fm nýlegri timburverönd. Endurnýjað eldhús, baðherbergi , gólfefni , gler, yfirfarið rafmagn, rofar endurnýjaðir og fleira. Húsið var múrviðgert og málað 2023

Eignin er skráð sem hér segir hjá Þjóðskrá: Fastanr. 223-5512, nánar tiltekið eign merkt 01-02, birt heildarstærð 85.7 fm. Þar af er íbúðin skráðir 83,3 fm og sérgeymsla í sameign merkt 01-04 er skráð 2,4 fm. Sérverönd er út frá stofu með 40 fm nýlegri afgirtri timburverönd. Í heild er afgirti sérafnotarétturinn um 55 fm. 
Eignin skiptist í: Forstofu, hol, 2 svefnherbergi, stofu, eldhús og baðherbergi með tengi fyrir þvottavél og þurrkara. 

Smelltu hér til að sækja söluyfirlit.
Nánari lýsing eignarinnar: 
SÉRINNGANGUR: Forstofa með flísum og góðum skápum. (geymsluskápur að auki) 
HOL: Parketlagt hol. 
ELDHÚS: Eldhúsið er endurnýjað með hvítlakkaðri innréttingu, borðkrókur við glugga. 
STOFA: Stofan er parketlögð rúmgóð og úr stofu er gengið út á afgirtan ca 55 fm sérafnotarétt og þar af er timburveröndin ca 40 fm.
HERBERGI I: Rúmgott hjónaherbergi með parketi og góðum nýlegum skápum. 
HERBERGI II: Rúmgott barnaherbergi með parketi og góðum skápum. 
BAÐHERBERGI: Flísalagt baðherbergi með nýlegri innréttingu, baðkari, tengi er fyrir þvottavél á baði. Gluggi er á baðherbergi. 
SAMEIGN: Við hliðina á íbúðinni er inngangur í sameign þar sem er sameiginleg hjóla og vagnageymsla og sérgeymsla íbúðarinnar.
SÉRBÍLASTÆÐI: Sérbílastæði íbúðarinnar er framan við húsið með hleðslustöð. 
FRAMKVÆMDIR: 2021 var pallur og skjólveggur byggður ásamt ca 40 fm sólpalli, lagt var fyrir lýsingu í skjólvegginn, 2022 sett hleðslustöð fyrir einkabílastæði. 2023 voru múrviðgerðir og málun á húsi, glerskipti, þakskegg lagað og fl. 2024 gluggar að innan málaðir og skipt um bað og blöndunartæki á baði. 2025, rafmagnstafla yfirfarin og endurnýjuð. Skipt um lekaliða og alla rofa og ofnar yfirfarnir, nýtt spanhelluborð. Endurnýjað gler að mestu 2026. 

Öll helsta þjónusta er í næsta nágrenni í Spönginni eins og verslanir, veitingahús, apótek, strætó og margt fleira. Grunn og leikskólar í göngufæri og góðir göngu og hjólastígar í næsta nágrenni. 
Nánari upplýsingar veitir Þórarinn M. Friðgeirsson Löggiltur fasteignasali, í síma 899-1882, tölvupóstur thorarinn@eignamidlun.is eða skrifstofa Eignamiðlunar í síma 588-9090

***
Ábyrg þjónusta í áratugi. Eignamiðlun var stofnuð 1957 og er elsta starfandi fasteignasala á Íslandi. Reynsla, heiðarleiki og þekking á fasteignamarkaðnum eru grunnur að farsælum viðskiptum. 

Eignamiðlun Grensásvegi 11, 108 Reykjavík - Opið frá kl. 9-17 mánudaga til fimmtudaga og 9-16 á föstudögum.

Heimasíða Eignamiðlunar

Eignamiðlun á Facebook

Eignamiðlun

Eignamiðlun

Grensásvegi 11, 108 Reykjavík
Ár
Fasteignamat
Kaupverð
Stærð
Fermetraverð
18. sep. 2020
37.900.000 kr.
44.000.000 kr.
85.7 m²
513.419 kr.
4. ágú. 2016
24.450.000 kr.
29.900.000 kr.
85.7 m²
348.891 kr.
Byggt á upplýsingum úr Þjóðskrá Íslands frá 2006-2026
Eignamiðlun

Eignamiðlun

Grensásvegi 11, 108 Reykjavík