Löggiltir fasteignasalar innan Félags fasteignasala:
Björn Guðmundsson
Berglind Jónasardóttir
Greta Huld Mellado
Vista
fjölbýlishús

Þórunnarstræti 133 eh

600 Akureyri

79.900.000 kr.

422.528 þ.kr./m2
Fasteignanúmer

F2152002

Fasteignamat

75.650.000 kr.

Brunabótamat

83.550.000 kr.

Áhvílandi

0 kr.

Arion banki – Reikna lán
Upplýsingar
Verðsaga
svg
Byggt 1967
svg
189,1 m²
svg
5 herb.
svg
1 baðherb.
svg
4 svefnh.
svg
Útsýni
svg
Laus strax

Lýsing

    

Fasteignasalan Byggð 464-9955 - Einkasala 

Þórunnarstræti 133 - 201

**Seld með fyrirvara**


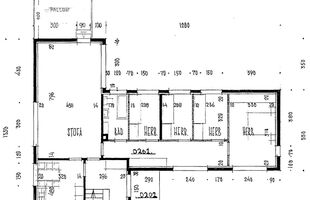
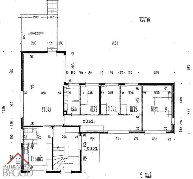
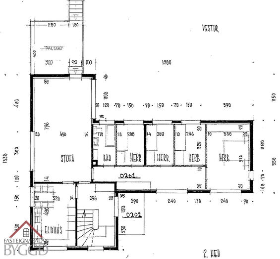
Mikið endurnýjuð og rúmgóð fimm herbergja efri sérhæð í tvíbýlishúsi með sérinngangi, ásamt bílskúr. Timburverönd til vesturs. 

Eignin samanstendur af anddyri, stigauppgöngu holi/forstofu, eldhúsi, stofu, baðherbergi, fjórum svefnherbergjum, sameiginlegu þvottahúsi í sameign, sérgeymslu og bílskúr. 

Anddyri/stigauppgangur er flísalagður með flísum á gófli. Stór gluggi á stigauppgöngu sem gefur góða birtu. Komið er upp á stigapall þar sem er hol/forstofa þar er skápur og opið fatahengi, útgengi á norður svalir þaðan sem er frábært útsýni.
Eldhús er uppgert. Þar er góð IKEA innrétting með innbyggðum ísskáp og uppþvottavél og bakaraofn í vinnuhæð. Mjög gott skápapláss í innréttingu og góð vinnuaðstaða. Borðkrókur og gluggar til tveggja átta.
Stofa er mjög rúmgóð. Parket á gólfi og stórir gluggar til tveggja átta og útgengi á timburverönd til vestur sem er um 20 fm. 
Svefnherbergi eru fjögur á gangi inn af stofu. Hjónaherbergi er rúmgott með góðum skápum og einnig er skápur í einu af barnaherbergjunum. Plast parket á gólfum. 
Baðherbergi með flísum á gólfi og veggjum að hluta. Baðkar með sturtutækjum og glervæng, innrétting við vask ásamt speglaskáp og uppgengt wc. Opnanlegur gluggi og tengi fyrir þvottavél en á jarðhæð er mjög gott sameiginlegt þvottahús. 
Í sameign á neðstu hæð er sameiginlegur inngangur og sameiginleg snyrting og geymsla. Rúmgóð sér geymsla fylgir íbúðinni. 
Þvottahús er sameiginlegt. Þar er nýlega búið að flisaleggja gólf og mála, mjög snyrtilegt rými. 
 
Bílskúr er með flísum á gólfi og rafdrifin innkeyrsluhurð. Ekki er innangengt í bílskúrinn. 

Annað:
-Frábært útsýni
-Ljósleiðari í íbúð
-Hitaþráður í þakrennum vestan við hús
-Rafmagnstafla er endurnýjuð og búið að draga í nýtt rafmagn og rafmagnstenglar endurnýjaðir 2019
-Húsið múrviðgert 2021/2022 
-Húsið málað að utan 2023
-Parket á íbúð 2020 

Gjöld sem kaupandi þarf að standa straum af vegna kaupanna:  
1. Stimpilgjald af kaupsamningi - 0.8% af heildarfasteignamati / 1.6% fyrir lögaðila.    (0.4% við fyrstu kaup einstaklinga m.v. að lágmarki 50% eignarhlut).
2. Þinglýsingagjald af kaupsamningi, veðskuldabréfi, veðleyfi o.fl.- kr. 2.700 af hverju skjali.
3. Lántökugjald lánastofnunar -almennt 0,5-1,0% af höfuðstól skuldabréfs (nánari upplýsingar m.a. á heimasíðum lánastofnanna).
4. Umsýsluþóknun til fasteignasölu, sbr.kauptilboð. 

Frekari upplýsingar:
bjorn@byggd.is
greta@byggd.is
olafur@byggd.is

Skipagötu 16 á 2. hæð.
S:464 9955 


 

Byggð fasteignasala

Byggð fasteignasala

Skipagata 16, 600 Akureyri
phone
Ár
Fasteignamat
Kaupverð
Stærð
Fermetraverð
9. sep. 2020
43.550.000 kr.
45.500.000 kr.
189.1 m²
240.613 kr.
13. apr. 2018
33.200.000 kr.
39.500.000 kr.
189.1 m²
208.884 kr.
24. nóv. 2015
27.500.000 kr.
27.500.000 kr.
189.1 m²
145.426 kr.
Byggt á upplýsingum úr Þjóðskrá Íslands frá 2006-2025
Byggð fasteignasala

Byggð fasteignasala

Skipagata 16, 600 Akureyri
phone