Upplýsingar
Verðsaga
Byggt 2022
105,2 m²
5 herb.
1 baðherb.
4 svefnh.
Sérinngangur
Opið hús: 29. október 2025
kl. 16:30
til 17:15
Lýsing
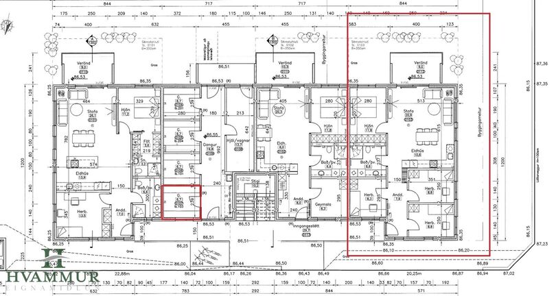
Halldóruhagi 2a íbúð 103 - Glæsileg 5 herbergja íbúð með sér inngangi á neðri hæð í vestur enda í litlu fjölbýlishúsi í Hagahverfi - stærð 105,2 m²
Eignin skiptist í forstofu, eldhús og stofu í opnu rými, fjögur svefnherbergi, baðherbergi með þvottaaðstöðu og geymslu í sameign.
Forstofa er með opnu fatahengi og sérsmíðuðum fataskáp. Flísar á gólfi
Eldhús er með dökkri innréttingu frá GKS með innbyggðum ísskáp og uppþvottavél. Bakarofn er í vinnuhæð. Harðparket er á gólfi
Stofa er í opnu rými með eldhúsi, þaðan er gengið út á steypta verönd er snýr til suðurs. Harðparket er á gólfi.
Svefnherbergi eru fjögur, öll með góðum fataskápum og harðparketi á gólfi.
Baðherbergi er með dökkri innréttingu. Stæði er í innréttingu fyrir þvottavél og þurrkara. Wc er upphengt og walk-in sturta. Flísar eru gólfi og hluta veggja.
Geymsla, 8,1 m² er í sameign.
Annað:
- Gólfhiti er í öllum rýmum.
- Hljóðvistarplötur í loftum.
- Stutt er í útivistarsvæði og Kjarnaskóg
- Stéttar að utan eru með snjóbræðslu í að hluta.
Um skoðunar- og aðgæsluskyldu:
Í lögum um fasteignakaup nr. 40/2002 er kveðið á um ríka skoðunarskyldu kaupenda á fasteignum. Fasteignasalan Hvammur skorar því á væntanlega kaupendur að kynna sér vel ástand fasteigna fyrir kauptilboðsgerð og leita til þar til bærra sérfræðinga um nánari skoðun ef með þarf.
Forsendur söluyfirlits:
Söluyfirlit er samið af fasteignasala í samræmi við ákvæði laga nr. 70/2015. Þær upplýsingar sem fram koma í söluyfirliti þessu eru sóttar í opinberar skrár, til seljanda sjálfs og eftir atvikum til húsfélags. Seljandi veitir upplýsingar um eign í samræmi við upplýsingaskyldu laga um fasteignakaup nr. 40/2002. Fasteignasali sannreynir að þær upplýsingar séu réttar með sjónskoðun á eigninni.
Fasteignasali getur ekki fullyrt um ástand og eiginleika þeirra hluta fasteigna sem ekki eru aðgengilegir og sjást ekki berum augum, t.d. lagnir, dren, skólp og þak.
Eignin skiptist í forstofu, eldhús og stofu í opnu rými, fjögur svefnherbergi, baðherbergi með þvottaaðstöðu og geymslu í sameign.
Forstofa er með opnu fatahengi og sérsmíðuðum fataskáp. Flísar á gólfi
Eldhús er með dökkri innréttingu frá GKS með innbyggðum ísskáp og uppþvottavél. Bakarofn er í vinnuhæð. Harðparket er á gólfi
Stofa er í opnu rými með eldhúsi, þaðan er gengið út á steypta verönd er snýr til suðurs. Harðparket er á gólfi.
Svefnherbergi eru fjögur, öll með góðum fataskápum og harðparketi á gólfi.
Baðherbergi er með dökkri innréttingu. Stæði er í innréttingu fyrir þvottavél og þurrkara. Wc er upphengt og walk-in sturta. Flísar eru gólfi og hluta veggja.
Geymsla, 8,1 m² er í sameign.
Annað:
- Gólfhiti er í öllum rýmum.
- Hljóðvistarplötur í loftum.
- Stutt er í útivistarsvæði og Kjarnaskóg
- Stéttar að utan eru með snjóbræðslu í að hluta.
Um skoðunar- og aðgæsluskyldu:
Í lögum um fasteignakaup nr. 40/2002 er kveðið á um ríka skoðunarskyldu kaupenda á fasteignum. Fasteignasalan Hvammur skorar því á væntanlega kaupendur að kynna sér vel ástand fasteigna fyrir kauptilboðsgerð og leita til þar til bærra sérfræðinga um nánari skoðun ef með þarf.
Forsendur söluyfirlits:
Söluyfirlit er samið af fasteignasala í samræmi við ákvæði laga nr. 70/2015. Þær upplýsingar sem fram koma í söluyfirliti þessu eru sóttar í opinberar skrár, til seljanda sjálfs og eftir atvikum til húsfélags. Seljandi veitir upplýsingar um eign í samræmi við upplýsingaskyldu laga um fasteignakaup nr. 40/2002. Fasteignasali sannreynir að þær upplýsingar séu réttar með sjónskoðun á eigninni.
Fasteignasali getur ekki fullyrt um ástand og eiginleika þeirra hluta fasteigna sem ekki eru aðgengilegir og sjást ekki berum augum, t.d. lagnir, dren, skólp og þak.
Ár
Fasteignamat
Kaupverð
Stærð
Fermetraverð
17. okt. 2022
19.150.000 kr.
66.900.000 kr.
105.2 m²
635.932 kr.
Byggt á upplýsingum úr Þjóðskrá Íslands frá 2006-2025