Upplýsingar
Verðsaga
Byggt 1946
53,2 m²
2 herb.
1 baðherb.
1 svefnh.
Sameiginl. inngangur
Laus strax
Lýsing
Fasteignasalan Hvammur – 466-1600 – gunnar@kaupa.is
Hafnarstræti 100 íbúð 204 – vel skipulögð 2ja herbergja íbúð á 2. hæð í góðu fjöleignarhúsi í miðbæ Akureyrar – stærð 53,5 m²
**Íbúðin er í dag í skammtímaleigu og býður eignin upp á góða tekjumöguleika vegna staðsetningar í miðbæ Akureyrar**
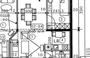
Eignin skiptist í anddyri, stofu, eldhúskrók, svefnherbergi, baðherbergi og sérgeymslu í kjallara.
Nánari lýsing:
- Anddyri er með flísum á gólfi.
- Eldhúsið er með snyrtilegri L-laga innréttingu og parketi á gólfi sem flæðir inn í anddyri og stofu.
- Stofan er björt með parketi á gólfi og gluggum til austurs.
- Svefnherbergið er með parketi á gólfi og þreföldum fataskáp.
- Baðherbergið er með flísum á gólfi og hvítmáluðum þiljum á veggjum, nýrri hvítri innréttingu, wc, sturtu og tengi fyrir þvottavél.
- Sérgeymsla er í kjallara, skráð 5,1 m² að stærð.
Annað:
- Vel skipulögð íbúð í hjarta Akureyrar
- Eignin hefur verið í skammtímaleigu
- Getur selst með húsgögnum
- Nýr ofn og helluborð árið 2024
- Öll máluð að innan árið 2022
- Nýtt parket árið 2022
- Tilvalin til áframhaldandi útleigu eða eigin nota
- Snyrtileg sameign
Nánari upplýsingar veitir:
Gunnar Aðalgeir Arason í síma 618-7325 eða á gunnar@kaupa.is
Um skoðunar- og aðgæsluskyldu:
Í lögum um fasteignakaup nr. 40/2002 er kveðið á um ríka skoðunarskyldu kaupenda á fasteignum. Fasteignasalan Hvammur skorar því á væntanlega kaupendur að kynna sér vel ástand fasteigna fyrir kauptilboðsgerð og leita til þar til bærra sérfræðinga um nánari skoðun ef með þarf.
Forsendur söluyfirlits:
Söluyfirlit er samið af fasteignasala í samræmi við ákvæði laga nr. 70/2015. Þær upplýsingar sem fram koma í söluyfirliti þessu eru sóttar í opinberar skrár, til seljanda sjálfs og eftir atvikum til húsfélags. Seljandi veitir upplýsingar um eign í samræmi við upplýsingaskyldu laga um fasteignakaup nr. 40/2002. Fasteignasali sannreynir að þær upplýsingar séu réttar með sjónskoðun á eigninni.
Fasteignasali getur ekki fullyrt um ástand og eiginleika þeirra hluta fasteigna sem ekki eru aðgengilegir og sjást ekki berum augum, t.d. lagnir, dren, skólp og þak.
Hafnarstræti 100 íbúð 204 – vel skipulögð 2ja herbergja íbúð á 2. hæð í góðu fjöleignarhúsi í miðbæ Akureyrar – stærð 53,5 m²
**Íbúðin er í dag í skammtímaleigu og býður eignin upp á góða tekjumöguleika vegna staðsetningar í miðbæ Akureyrar**
Eignin skiptist í anddyri, stofu, eldhúskrók, svefnherbergi, baðherbergi og sérgeymslu í kjallara.
Nánari lýsing:
- Anddyri er með flísum á gólfi.
- Eldhúsið er með snyrtilegri L-laga innréttingu og parketi á gólfi sem flæðir inn í anddyri og stofu.
- Stofan er björt með parketi á gólfi og gluggum til austurs.
- Svefnherbergið er með parketi á gólfi og þreföldum fataskáp.
- Baðherbergið er með flísum á gólfi og hvítmáluðum þiljum á veggjum, nýrri hvítri innréttingu, wc, sturtu og tengi fyrir þvottavél.
- Sérgeymsla er í kjallara, skráð 5,1 m² að stærð.
Annað:
- Vel skipulögð íbúð í hjarta Akureyrar
- Eignin hefur verið í skammtímaleigu
- Getur selst með húsgögnum
- Nýr ofn og helluborð árið 2024
- Öll máluð að innan árið 2022
- Nýtt parket árið 2022
- Tilvalin til áframhaldandi útleigu eða eigin nota
- Snyrtileg sameign
Nánari upplýsingar veitir:
Gunnar Aðalgeir Arason í síma 618-7325 eða á gunnar@kaupa.is
Um skoðunar- og aðgæsluskyldu:
Í lögum um fasteignakaup nr. 40/2002 er kveðið á um ríka skoðunarskyldu kaupenda á fasteignum. Fasteignasalan Hvammur skorar því á væntanlega kaupendur að kynna sér vel ástand fasteigna fyrir kauptilboðsgerð og leita til þar til bærra sérfræðinga um nánari skoðun ef með þarf.
Forsendur söluyfirlits:
Söluyfirlit er samið af fasteignasala í samræmi við ákvæði laga nr. 70/2015. Þær upplýsingar sem fram koma í söluyfirliti þessu eru sóttar í opinberar skrár, til seljanda sjálfs og eftir atvikum til húsfélags. Seljandi veitir upplýsingar um eign í samræmi við upplýsingaskyldu laga um fasteignakaup nr. 40/2002. Fasteignasali sannreynir að þær upplýsingar séu réttar með sjónskoðun á eigninni.
Fasteignasali getur ekki fullyrt um ástand og eiginleika þeirra hluta fasteigna sem ekki eru aðgengilegir og sjást ekki berum augum, t.d. lagnir, dren, skólp og þak.
Ár
Fasteignamat
Kaupverð
Stærð
Fermetraverð
18. des. 2024
26.500.000 kr.
35.500.000 kr.
10204 m²
3.479 kr.
21. mar. 2022
17.050.000 kr.
24.500.000 kr.
53.2 m²
460.526 kr.
28. júl. 2017
11.650.000 kr.
23.000.000 kr.
53.2 m²
432.331 kr.
25. júl. 2014
9.470.000 kr.
11.000.000 kr.
53.2 m²
206.767 kr.
19. des. 2006
7.497.000 kr.
9.700.000 kr.
53.2 m²
182.331 kr.
Byggt á upplýsingum úr Þjóðskrá Íslands frá 2006-2026